福島県福島市御倉町(福島駅)の中古マンション・新築マンション・分譲マンション:物件詳細
交通 所在地 |
駅徒歩 |
価格 |
構造 階建/階 |
間取り 専有面積 |
物件種目 築年月 |
|
JR東北本線/福島
福島県福島市御倉町
|
15分
|
410万円
|
SRC
12階建 / 4階
|
1K
27.08m²
|
中古マンション
1991年3月(築34年10ヶ月)
|
|
管理人日勤
|
|
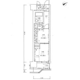
間取図
|
外観
|
その他の画像
|
| 交通 | JR東北本線 福島駅 徒歩15分 |
| 所在地 |
福島県福島市御倉町
|
| 物件種目 |
中古マンション |
| 価格 |
410万円 |
平米単価 |
15.15万円 |
| 管理費等 |
4,600円 |
修繕積立金 |
5,220円 |
| 借地期間・地代(月額) |
- |
権利金 |
- |
| 敷金または保証金 |
- / - |
維持費等 |
- |
| その他一時金 |
- |
|
|
| 間取り |
1K(洋 5.2 K 4.3) |
専有面積 |
27.08m²(内法) |
| 階建 / 階 |
12階建 / 4階 |
バルコニー |
4.39m² |
| 築年月 |
1991年3月(築34年10ヶ月)
|
建物構造 |
SRC |
| 駐車場 |
- |
総戸数 |
- |
| 駐輪場 |
- |
バイク置き場 |
- |
| ペット |
-
|
|
|
| 土地権利 |
所有権 |
敷地面積 |
- |
| 管理形態/管理員の勤務形態 |
一部委託/日勤 |
国土法届出 |
- |
| 建物名・部屋番号 |
ライオンズマンション御倉町 405 |
| リフォーム履歴 |
- |
| リノベーション履歴 |
- |
| 瑕疵保証 |
- |
| 瑕疵保険 |
- |
| 評価・証明書 |
- |
| 備考 |
主要採光面:東向き
用途地域:商業地域
|
| エネルギー消費性能 |
- |
| 断熱性能 |
- |
| 目安光熱費 |
- |
| バス・トイレ |
浴室乾燥機 |
| キッチン |
システムキッチン |
| 設備・サービス |
室内洗濯機置場、クローゼット、オートロック、給湯、都市ガス、エアコン、照明器具 |
| その他 |
エレベーター |
| 条件等 |
- |
現況 |
空家 |
| 引渡可能時期 |
相談 |
物件番号 |
6986177382 |
| 情報公開日 |
2025年5月2日 |
次回更新予定日 |
2025年12月8日 |
| ケータイ用バーコード |
- スマートフォンでこの物件を見る
- スマートフォンからもこの物件をご覧になれます。
|
※「-」と表示されている項目については、情報提供会社にご確認ください。
ここから簡単にお問い合わせをすることができます。
(SSLでの暗号化での送信を希望されるお客さまは
こちら
よりお問い合わせください)
お問い合わせを行う前に
「個人情報の取り扱いについて」を必ずお読みください。
「個人情報の取り扱いについて」に同意いただいた場合は「上記にご同意の上 確認画面へ進む」のボタンをクリックしてください。
個人情報の取り扱いについて
皆さまが送付された個人情報はアットホーム(株)のサーバを経由し、お問い合わせ先の不動産会社にメールまたはFAXにて転送されるためアットホーム(株)にも保管されます。アットホーム(株)で保管された個人情報の取り扱いについては、【こちら】をご覧ください。
また、本画面でご記入いただいた個人情報は、お問い合わせ先の不動産会社でも保管します。 お問い合わせ先の不動産会社が保管する個人情報の取り扱いについては、不動産会社に直接お問い合わせください。
福島県知事免許(13)第10166号 |
|---|
- 交通:
- JR東北本線/福島駅 徒歩7分
- 福島県福島市太田町24-15
- TEL:
- 024-525-1211
- FAX:
- 024-525-1311
- 所属団体:
- (公社)福島県宅地建物取引業協会会員東北地区不動産公正取引協議会加盟
取引態様:専任媒介  - 20002704
|
- スマートフォンで
この不動産会社を見る

|
- 提携サイト等より掲載されている物件情報につきましては、不動産会社詳細情報にリンクされていないものがあります。
- 物件に関するお問合せは、物件詳細ページの「情報提供会社」に表示されている不動産会社へ直接お願いいたします。
- 間取図は、現況を優先させていただきます。
- 映像は物件の一部を撮影したものです。物件の契約にあたっての最終判断はご自身の判断に基づいて行ってください。
- 仲介手数料について

アットホームは物件情報の適正化に努めております。
内容に誤りがある場合にはこちらへご連絡ください。