東京都江東区有明1丁目(有明テニスの森駅)の中古マンション・新築マンション・分譲マンション:物件詳細
交通 所在地 |
駅徒歩 |
価格 |
構造 階建/階 |
間取り 専有面積 |
物件種目 築年月 |
|
新交通ゆりかもめ/有明テニスの森
東京都江東区有明1丁目
|
5分
|
15,980万円
|
RC
地上33階地下1階建 / 30階
|
3SLDK
76.33m²
|
中古マンション
2008年12月(築17年1ヶ月)
|
|
ペット相談、楽器相談、フロントサービス、常時ゴミ出し可能、駐車場2台分、事務所使用可、24時間セキュリティー、二重床・二重天井、24時間換気システム、外観タイル張り、区画整理地内、隣接建物距離2m以上、管理人日勤
|
|
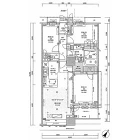
間取図
|
外観
|
<
その他の画像
>
|
| 交通 | 新交通ゆりかもめ 有明テニスの森駅 徒歩5分 |
|---|
| その他の交通 | りんかい線 国際展示場駅 徒歩7分 新交通ゆりかもめ お台場海浜公園駅 徒歩11分 |
| 所在地 |
東京都江東区有明1丁目
|
| 物件種目 |
中古マンション |
| 価格 |
15,980万円 |
平米単価 |
209.36万円 |
| 管理費等 |
23,900円 |
修繕積立金 |
23,200円 |
| 借地期間・地代(月額) |
- |
権利金 |
- |
| 敷金または保証金 |
- / - |
維持費等 |
インターネット使用料:1,100円/月 |
| その他一時金 |
なし |
|
|
| 間取り |
3SLDK(洋 7・5.4・4.5 LDK 17.1 S 1) |
専有面積 |
76.33m²(壁芯) |
| 階建 / 階 |
地上33階地下1階建 / 30階 |
バルコニー |
5.01m² |
| 築年月 |
2008年12月(築17年1ヶ月)
|
建物構造 |
RC |
| 駐車場 |
有 15,800円/月 |
総戸数 |
1,085戸 |
| 駐輪場 |
有 100円/月 |
バイク置き場 |
有 2,852円/月 |
| ペット |
相談 |
|
|
| 土地権利 |
所有権 |
敷地面積 |
- |
| 管理形態/管理員の勤務形態 |
全部委託/日勤(東京建物アメニティサポート) |
国土法届出 |
- |
| 建物名・部屋番号 |
Brillia Mare 有明 TOWAR & GARDEN |
| リフォーム履歴 |
■内装:2012年9月 全室クロス張替え ※実施年月は最も古い履歴を表示 |
| リノベーション履歴 |
- |
| 瑕疵保証 |
- |
| 瑕疵保険 |
- |
| 評価・証明書 |
- |
| 備考 |
主要採光面:南東向き
施工会社:三井住友建設
用途地域:準工業
★内覧は現地直接待合せにて対応致します★
★室内オプション仕様:玄関・廊下・脱衣所床大理石★LD・各洋室エコカラット★二重窓LOW・Eガラス★ダウンライト増設★
★共用施設:プール★大浴場★キッチンスタジオ★ラウンジ★コンシェルジュサービス★宿泊ルーム等充実★
|
| エネルギー消費性能 |
- |
| 断熱性能 |
- |
| 目安光熱費 |
- |
| バス・トイレ |
浴室暖房、浴室乾燥機、オートバス、追焚機能、温水洗浄便座 |
| キッチン |
カウンターキッチン、システムキッチン、食器洗浄乾燥機、浄水器、ディスポーザー、3口以上コンロ、グリル |
| 設備・サービス |
モニター付オートロック、全居室収納、ウォークインクローゼット、エアコン2台以上、床暖房、バイク置き場、収納スペース、室内洗濯機置場、トランクルーム、シューズインクローゼット、クローゼット、オートロック、モニター付インターホン、非接触型ICカードキー、カードキー、ディンプルキー、ダブルロックドア、防犯カメラ、給湯、全居室フローリング、都市ガス、エアコン、ルーフバルコニー、駐輪場、間接照明、照明器具、火災警報器(報知機)、インターネット対応、光ファイバー、ケーブルTV、CS、BS端子 |
| その他 |
宅配BOX、キッズルーム、共用シアタールーム、エレベーター2基以上、共用ゲストルーム、エレベーター |
| 条件等 |
- |
現況 |
所有者居住中 |
| 引渡可能時期 |
相談 |
物件番号 |
6986264511 |
| 情報公開日 |
2025年5月11日 |
次回更新予定日 |
2025年12月15日 |
| ケータイ用バーコード |
- スマートフォンでこの物件を見る
- スマートフォンからもこの物件をご覧になれます。
|
※「-」と表示されている項目については、情報提供会社にご確認ください。
| 周辺施設 |
デイリーヤマザキブリリアマーレ有明店 |
| 距離 |
12m |
| 周辺施設 |
セブンイレブンTOC有明店 |
| 距離 |
1044m |
| 周辺施設 |
ドトールコーヒーショップ国際展示場駅店 |
| 距離 |
819m |
| 周辺施設 |
社会福祉法人ひまわり福祉会ひまわりキッズガーデン有明 |
| 距離 |
119m |
ここから簡単にお問い合わせをすることができます。
(SSLでの暗号化での送信を希望されるお客さまは
こちら
よりお問い合わせください)
お問い合わせを行う前に
「個人情報の取り扱いについて」を必ずお読みください。
「個人情報の取り扱いについて」に同意いただいた場合は「上記にご同意の上 確認画面へ進む」のボタンをクリックしてください。
個人情報の取り扱いについて
皆さまが送付された個人情報はアットホーム(株)のサーバを経由し、お問い合わせ先の不動産会社にメールまたはFAXにて転送されるためアットホーム(株)にも保管されます。アットホーム(株)で保管された個人情報の取り扱いについては、【こちら】をご覧ください。
また、本画面でご記入いただいた個人情報は、お問い合わせ先の不動産会社でも保管します。 お問い合わせ先の不動産会社が保管する個人情報の取り扱いについては、不動産会社に直接お問い合わせください。
(株)クリアシティ東京都知事免許(4)第87014号 |
|---|
- 交通:
- JR山手線/池袋駅 徒歩5分
- 東京都豊島区池袋2丁目23番4号 池袋見真ビル1階
- TEL:
- 03-6907-9666
- FAX:
- 03-6907-9667
- 所属団体:
- (公社)全日本不動産協会会員(公社)首都圏不動産公正取引協議会加盟
取引態様:専属専任媒介 |
- 提携サイト等より掲載されている物件情報につきましては、不動産会社詳細情報にリンクされていないものがあります。
- 物件に関するお問合せは、物件詳細ページの「情報提供会社」に表示されている不動産会社へ直接お願いいたします。
- 間取図は、現況を優先させていただきます。
- 映像は物件の一部を撮影したものです。物件の契約にあたっての最終判断はご自身の判断に基づいて行ってください。
- 仲介手数料について

アットホームは物件情報の適正化に努めております。
内容に誤りがある場合にはこちらへご連絡ください。