岩手県盛岡市住吉町の中古マンション・新築マンション・分譲マンション:物件詳細
交通 所在地 |
駅徒歩 |
価格 |
構造 階建/階 |
間取り 専有面積 |
物件種目 築年月 |
|
【バス】天満宮前 停歩4分
岩手県盛岡市住吉町
|
-
|
3,480万円
|
SRC
14階建 / 13階
|
4LDK
110.89m²
|
中古マンション
2003年10月(築22年3ヶ月)
|
|
角部屋、南向き、バス1坪以上、2面採光、管理人日勤
|
|
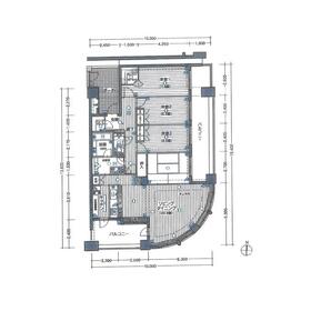
間取図
|
|
<
その他の画像
>
|
|
|
| 交通 | 【バス】 天満宮前 停歩4分 |
| 所在地 |
岩手県盛岡市住吉町
|
| 物件種目 |
中古マンション |
| 価格 |
3,480万円 |
平米単価 |
31.39万円 |
| 管理費等 |
15,520円 |
修繕積立金 |
16,630円 |
| 借地期間・地代(月額) |
- |
権利金 |
- |
| 敷金または保証金 |
- / - |
維持費等 |
- |
| その他一時金 |
- |
|
|
| 間取り |
4LDK(和 6 洋 7.9・6・6 LDK 24.9) |
専有面積 |
110.89m²(壁芯) |
| 階建 / 階 |
14階建 / 13階 |
バルコニー |
29.28m² |
| 築年月 |
2003年10月(築22年3ヶ月)
|
建物構造 |
SRC |
| 駐車場 |
有 6,500円/月 |
総戸数 |
- |
| 駐輪場 |
有 無料 |
バイク置き場 |
無 |
| ペット |
-
|
|
|
| 土地権利 |
所有権 |
敷地面積 |
6,701.03m² |
| 管理形態/管理員の勤務形態 |
全部委託/日勤(株式会社 寿広) |
国土法届出 |
- |
| アピールポイント |
広々とした延床面積110.89㎡で居住スペースにゆとり充分。また南向の住居で、その上大事な電動自転車には欠かせない駐輪場付だから、自転車がぱっと使えて楽ちんです。家族みんなのワガママにも応える4LDK。是非見学にお越しください。 |
| 建物名・部屋番号 |
クレア住吉 1301 |
| リフォーム履歴 |
■共用部の大規模修繕工事:2025年2月 大規模修繕工事 ※実施年月は最も古い履歴を表示 |
| リノベーション履歴 |
- |
| 瑕疵保証 |
- |
| 瑕疵保険 |
- |
| 評価・証明書 |
- |
| 備考 |
主要採光面:南向き
施工会社:西松建設株式会社東北支店
用途地域:1種住居
延べ面積:2,138.16m²
・機械式駐車場利用の場合は、車両のサイズ要確認
|
| エネルギー消費性能 |
- |
| 断熱性能 |
- |
| 目安光熱費 |
- |
| バス・トイレ |
オートバス、追焚機能、シャワー付洗面化粧台、温水洗浄便座 |
| キッチン |
カウンターキッチン、システムキッチン、3WAYキッチン、3口以上コンロ |
| 設備・サービス |
モニター付オートロック、全居室収納、ウォークインクローゼット、床暖房、収納スペース、室内洗濯機置場、トランクルーム、シューズインクローゼット、クローゼット、オートロック、ディンプルキー、防犯カメラ、給湯、出窓、アルコーブ、都市ガス、二面バルコニー、駐輪場、火災警報器(報知機)、インターネット対応、光ファイバー、マルチメディアコンセント |
| その他 |
宅配BOX、エレベーター2基以上 |
| 条件等 |
- |
現況 |
空家 |
| 引渡可能時期 |
即時 |
物件番号 |
6986322289 |
| 仲介手数料 |
121.44万円 |
|
|
| 情報公開日 |
2025年12月11日 |
次回更新予定日 |
2025年12月25日 |
| ケータイ用バーコード |
- スマートフォンでこの物件を見る
- スマートフォンからもこの物件をご覧になれます。
|
※「-」と表示されている項目については、情報提供会社にご確認ください。
| 周辺施設 |
岩手大学教育学部附属小学校 |
| 距離 |
656m |
ここから簡単にお問い合わせをすることができます。
(SSLでの暗号化での送信を希望されるお客さまは
こちら
よりお問い合わせください)
お問い合わせを行う前に
「個人情報の取り扱いについて」を必ずお読みください。
「個人情報の取り扱いについて」に同意いただいた場合は「上記にご同意の上 確認画面へ進む」のボタンをクリックしてください。
個人情報の取り扱いについて
皆さまが送付された個人情報はアットホーム(株)のサーバを経由し、お問い合わせ先の不動産会社にメールまたはFAXにて転送されるためアットホーム(株)にも保管されます。アットホーム(株)で保管された個人情報の取り扱いについては、【こちら】をご覧ください。
また、本画面でご記入いただいた個人情報は、お問い合わせ先の不動産会社でも保管します。 お問い合わせ先の不動産会社が保管する個人情報の取り扱いについては、不動産会社に直接お問い合わせください。
岩手県知事免許(9)第1675号 |
|---|
- 交通:
- JR東北本線/盛岡駅 徒歩20分
- 岩手県盛岡市南大通2丁目8-1
- TEL:
- 019-624-0044
- FAX:
- 019-624-3200
- 所属団体:
- (一社)岩手県宅地建物取引業協会会員東北地区不動産公正取引協議会加盟
取引態様:一般媒介  - 20002560
|
- スマートフォンで
この不動産会社を見る

|
- 提携サイト等より掲載されている物件情報につきましては、不動産会社詳細情報にリンクされていないものがあります。
- 物件に関するお問合せは、物件詳細ページの「情報提供会社」に表示されている不動産会社へ直接お願いいたします。
- 間取図は、現況を優先させていただきます。
- 映像は物件の一部を撮影したものです。物件の契約にあたっての最終判断はご自身の判断に基づいて行ってください。
- 仲介手数料について

アットホームは物件情報の適正化に努めております。
内容に誤りがある場合にはこちらへご連絡ください。