東京都豊島区池袋本町3丁目(下板橋駅)の中古マンション・新築マンション・分譲マンション:物件詳細
交通 所在地 |
駅徒歩 |
価格 |
構造 階建/階 |
間取り 専有面積 |
物件種目 築年月 |
|
東武東上線/下板橋
東京都豊島区池袋本町3丁目
|
5分
|
8,192万円
|
RC
7階建 / 7階
|
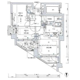
2LDK
54.48m²
|
中古マンション
2023年1月(築2年10ヶ月)
|
|
ペット相談、常時ゴミ出し可能、角部屋、最上階、振分、2面採光、外観タイル張り、管理人巡回
|
|
間取図
|
外観
|
その他の画像
|
| 交通 | 東武東上線 下板橋駅 徒歩5分 |
|---|
| その他の交通 | JR埼京線 板橋駅 徒歩12分 JR山手線 池袋駅 徒歩20分 |
| 所在地 |
東京都豊島区池袋本町3丁目
|
| 物件種目 |
中古マンション |
| 価格 |
8,192万円 |
平米単価 |
150.37万円 |
| 管理費等 |
13,500円 |
修繕積立金 |
7,090円 |
| 借地期間・地代(月額) |
- |
権利金 |
- |
| 敷金または保証金 |
- / - |
維持費等 |
- |
| その他一時金 |
インターネットサービス料:627円、災害時支援サービス料:193円 |
|
|
| 間取り |
2LDK(洋 6.5・4.5 LDK 12.4) |
専有面積 |
54.48m²(壁芯) |
| 階建 / 階 |
7階建 / 7階 |
バルコニー |
8.19m² |
| 築年月 |
2023年1月(築2年10ヶ月)
|
建物構造 |
RC |
| 駐車場 |
空無 |
総戸数 |
88戸 |
| 駐輪場 |
有 500円/月 |
バイク置き場 |
有 2,000円/月 |
| ペット |
規約細則あり |
|
|
| 土地権利 |
所有権 |
敷地面積 |
- |
| 管理形態/管理員の勤務形態 |
全部委託/巡回((株)ワールドライフパートナー) |
国土法届出 |
- |
| アピールポイント |
アクセスのいい下板橋駅徒歩5分だから、日用品の買い出しが楽チン。また留守番いらずの宅配BOX付で、その上お出かけの多い人も助かる常時ゴミ出し可の住戸だから、季節外れの大掃除でもゴミを出しにいけます。ちなみに一度に複数のおかず作りを同時進行できるコンロ3口以上付です。お探しの方には嬉しいペット相談可。家族の安心拠点になる2LDK。是非見学にお越しください。 |
| 建物名・部屋番号 |
レジデンシャル池袋本町 |
| リフォーム履歴 |
- |
| リノベーション履歴 |
- |
| 瑕疵保証 |
- |
| 瑕疵保険 |
- |
| 評価・証明書 |
- |
| 備考 |
主要採光面:北東向き
施工会社:山田建設(株)
|
| エネルギー消費性能 |
- |
| 断熱性能 |
- |
| 目安光熱費 |
- |
| バス・トイレ |
浴室乾燥機、追焚機能、温水洗浄便座 |
| キッチン |
浄水器、3口以上コンロ |
| 設備・サービス |
モニター付オートロック、床暖房、バイク置き場、収納スペース、室内洗濯機置場、クローゼット、オートロック、モニター付インターホン、防犯カメラ、給湯、全居室フローリング、都市ガス、駐輪場、光ファイバー、ケーブルTV、BS端子 |
| その他 |
宅配BOX、エレベーター |
| 条件等 |
- |
現況 |
所有者居住中 |
| 引渡可能時期 |
相談 |
物件番号 |
6986330647 |
| 仲介手数料 |
売買代金の1.5%+3万円 |
|
|
| 情報公開日 |
2025年5月16日 |
次回更新予定日 |
2025年11月3日 |
| ケータイ用バーコード |
- スマートフォンでこの物件を見る
- スマートフォンからもこの物件をご覧になれます。
|
※「-」と表示されている項目については、情報提供会社にご確認ください。
ここから簡単にお問い合わせをすることができます。
(SSLでの暗号化での送信を希望されるお客さまは
こちら
よりお問い合わせください)
お問い合わせを行う前に
「個人情報の取り扱いについて」を必ずお読みください。
「個人情報の取り扱いについて」に同意いただいた場合は「上記にご同意の上 確認画面へ進む」のボタンをクリックしてください。
個人情報の取り扱いについて
皆さまが送付された個人情報はアットホーム(株)のサーバを経由し、お問い合わせ先の不動産会社にメールまたはFAXにて転送されるためアットホーム(株)にも保管されます。アットホーム(株)で保管された個人情報の取り扱いについては、【こちら】をご覧ください。
また、本画面でご記入いただいた個人情報は、お問い合わせ先の不動産会社でも保管します。 お問い合わせ先の不動産会社が保管する個人情報の取り扱いについては、不動産会社に直接お問い合わせください。
東京都知事免許(5)第82777号 |
|---|
- 交通:
- JR山手線/池袋駅 徒歩10分
- 東京都豊島区池袋1丁目16番18号 オレンジパレス1階
- TEL:
- 03-5950-1611
- FAX:
- 03-5950-1617
- 所属団体:
- (公社)全日本不動産協会会員(公社)首都圏不動産公正取引協議会加盟
取引態様:専任媒介  - 00223765
|
- スマートフォンで
この不動産会社を見る

|
- 提携サイト等より掲載されている物件情報につきましては、不動産会社詳細情報にリンクされていないものがあります。
- 物件に関するお問合せは、物件詳細ページの「情報提供会社」に表示されている不動産会社へ直接お願いいたします。
- 間取図は、現況を優先させていただきます。
- 映像は物件の一部を撮影したものです。物件の契約にあたっての最終判断はご自身の判断に基づいて行ってください。
- 仲介手数料について

アットホームは物件情報の適正化に努めております。
内容に誤りがある場合にはこちらへご連絡ください。