東京都豊島区高田2丁目(雑司が谷駅)の中古マンション・新築マンション・分譲マンション:物件詳細
交通 所在地 |
駅徒歩 |
価格 |
構造 階建/階 |
間取り 専有面積 |
物件種目 築年月 |
|
東京メトロ副都心線/雑司が谷
東京都豊島区高田2丁目
|
7分
|
4,180万円
|
RC
8階建 / 2階
|
1LDK
34.69m²
|
中古マンション
2008年2月(築17年9ヶ月)
|
|
ペット相談、南向き、事務所使用可、管理人巡回
|
|
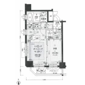
間取図
南向き 角部屋 1LDK 34.69㎡
|
外観
雑司ヶ谷の駅から徒歩6分・高田馬場駅から11分と通勤・通学に便利な立地です
|
<
その他の画像
>
|
| 交通 | 東京メトロ副都心線 雑司が谷駅 徒歩7分 |
|---|
| その他の交通 | 東京メトロ東西線 高田馬場駅 徒歩11分 |
| 所在地 |
東京都豊島区高田2丁目
|
| 物件種目 |
中古マンション |
| 価格 |
4,180万円 |
平米単価 |
120.50万円 |
| 管理費等 |
15,330円 |
修繕積立金 |
9,890円 |
| 借地期間・地代(月額) |
- |
権利金 |
- |
| 敷金または保証金 |
- / - |
維持費等 |
- |
| その他一時金 |
- |
|
|
| 間取り |
1LDK(洋 4.8) |
専有面積 |
34.69m²(壁芯) |
| 階建 / 階 |
8階建 / 2階 |
バルコニー |
4.92m² |
| 築年月 |
2008年2月(築17年9ヶ月)
|
建物構造 |
RC |
| 駐車場 |
有 23,000円/月 |
総戸数 |
35戸 |
| 駐輪場 |
有 100円/月 |
バイク置き場 |
有 2,000円/月 |
| ペット |
小型犬可・ 猫可・ 2頭以内(体長50cm以内) |
|
|
| 土地権利 |
所有権 |
敷地面積 |
- |
| 管理形態/管理員の勤務形態 |
全部委託/巡回 |
国土法届出 |
- |
| アピールポイント |
〇雑司ヶ谷・高田馬場と2駅使用可能だから通勤・通学にとっても便利です!
〇売主様が綺麗に使用されていたので室内も大変綺麗です!
〇給湯器は去年新しいものに替えています
〇水回りや全体のリフォームなどを希望の方は是非ご相談ください
〇角部屋でお風呂・キッチン・各お部屋に窓があるのでとても明るい印象です
〇弊社では保護ネコのご紹介もしていますので、ペットを飼いたい方などはご相談ください。
こちらのお部屋は2匹まで飼うことができますので2匹までご紹介できます!
〇住宅ローンのことやどんな物件を購入したらいいか?などのご相談も承っていますので、お気軽にお問い合わせください
内見等お問い合わせはこちらまで 090-5194-6986 (担当 三木) |
| 建物名・部屋番号 |
ダイナシティ高田馬場 |
| リフォーム履歴 |
- |
| リノベーション履歴 |
- |
| 瑕疵保証 |
- |
| 瑕疵保険 |
- |
| 評価・証明書 |
- |
| 備考 |
主要採光面:南向き
|
| エネルギー消費性能 |
- |
| 断熱性能 |
- |
| 目安光熱費 |
- |
| バス・トイレ |
浴室乾燥機、オートバス、追焚機能 |
| キッチン |
カウンターキッチン、独立型キッチン、2口コンロ |
| 設備・サービス |
バイク置き場、収納スペース、オートロック、駐輪場 |
| その他 |
宅配BOX、エレベーター |
| 条件等 |
- |
現況 |
空家 |
| 引渡可能時期 |
相談 |
物件番号 |
6986424993 |
| 情報公開日 |
2025年9月1日 |
次回更新予定日 |
2025年10月30日 |
| ケータイ用バーコード |
- スマートフォンでこの物件を見る
- スマートフォンからもこの物件をご覧になれます。
|
※「-」と表示されている項目については、情報提供会社にご確認ください。
| 周辺施設 |
まいばすけっと西早稲田3丁目店 |
| 距離 |
611m |
| 周辺施設 |
ファミリーマート新宿戸塚警察署前店 |
| 距離 |
314m |
| 周辺施設 |
キッチンオリジン目白高田店 |
| 距離 |
556m |
| 周辺施設 |
タリーズコーヒー学習院大学店 |
| 距離 |
596m |
| 周辺施設 |
ココカラファイン目白高田店 |
| 距離 |
168m |
| 周辺施設 |
医療法人社団瑞雲会高田馬場病院 |
| 距離 |
664m |
ここから簡単にお問い合わせをすることができます。
(SSLでの暗号化での送信を希望されるお客さまは
こちら
よりお問い合わせください)
お問い合わせを行う前に
「個人情報の取り扱いについて」を必ずお読みください。
「個人情報の取り扱いについて」に同意いただいた場合は「上記にご同意の上 確認画面へ進む」のボタンをクリックしてください。
個人情報の取り扱いについて
皆さまが送付された個人情報はアットホーム(株)のサーバを経由し、お問い合わせ先の不動産会社にメールまたはFAXにて転送されるためアットホーム(株)にも保管されます。アットホーム(株)で保管された個人情報の取り扱いについては、【こちら】をご覧ください。
また、本画面でご記入いただいた個人情報は、お問い合わせ先の不動産会社でも保管します。 お問い合わせ先の不動産会社が保管する個人情報の取り扱いについては、不動産会社に直接お問い合わせください。
東京都知事免許(3)第97936号 |
|---|
- 交通:
- 東京メトロ副都心線/雑司が谷駅 徒歩3分
- 東京都豊島区南池袋4丁目8-4 de-Zay 001
- TEL:
- 03-3951-4080
- 所属団体:
- (公社)全日本不動産協会会員(公社)首都圏不動産公正取引協議会加盟
取引態様:一般媒介  - 00278214
|
- スマートフォンで
この不動産会社を見る

|
- 提携サイト等より掲載されている物件情報につきましては、不動産会社詳細情報にリンクされていないものがあります。
- 物件に関するお問合せは、物件詳細ページの「情報提供会社」に表示されている不動産会社へ直接お願いいたします。
- 間取図は、現況を優先させていただきます。
- 映像は物件の一部を撮影したものです。物件の契約にあたっての最終判断はご自身の判断に基づいて行ってください。
- 仲介手数料について

アットホームは物件情報の適正化に努めております。
内容に誤りがある場合にはこちらへご連絡ください。