福岡県北九州市八幡西区御開1丁目(本城駅)の中古マンション・新築マンション・分譲マンション:物件詳細
交通 所在地 |
駅徒歩 |
価格 |
構造 階建/階 |
間取り 専有面積 |
物件種目 築年月 |
|
JR筑豊本線/本城
福岡県北九州市八幡西区御開1丁目
|
22分
|
950万円
|
RC
9階建 / 4階
|
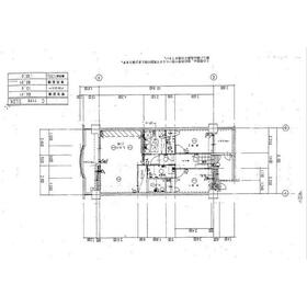
2LDK
63.72m²
|
中古マンション
1994年2月(築32年4ヶ月)
|
|
閑静な住宅街、管理人巡回
|
|
間取図
|
外観
1台分の専用駐車場があります。
|
<
その他の画像
>
|
| 交通 | JR筑豊本線 本城駅 徒歩22分 |
| 所在地 |
福岡県北九州市八幡西区御開1丁目
|
| 物件種目 |
中古マンション |
| 価格 |
950万円 |
平米単価 |
14.91万円 |
| 管理費等 |
2,990円 |
修繕積立金 |
8,540円 |
| 借地期間・地代(月額) |
- |
権利金 |
- |
| 敷金または保証金 |
- / - |
維持費等 |
- |
| その他一時金 |
- |
|
|
| 間取り |
2LDK |
専有面積 |
63.72m²(壁芯) |
| 階建 / 階 |
9階建 / 4階 |
バルコニー |
- |
| 築年月 |
1994年2月(築32年4ヶ月)
|
建物構造 |
RC |
| 駐車場 |
- |
総戸数 |
- |
| 駐輪場 |
- |
バイク置き場 |
- |
| ペット |
-
|
|
|
| 土地権利 |
所有権 |
敷地面積 |
- |
| 管理形態/管理員の勤務形態 |
全部委託/巡回(ランドメンテナンス) |
国土法届出 |
- |
| アピールポイント |
3LDKの和室部分をリフォームして、約20畳の広いリビングのある2LDKになりました。
1フロアに2所帯のみとなっており、専用庭付きなので、戸建てのような生活をしていただけます。 |
| 建物名・部屋番号 |
リヴィエール本城台 403 |
| リフォーム履歴 |
- |
| リノベーション履歴 |
- |
| 瑕疵保証 |
- |
| 瑕疵保険 |
- |
| 評価・証明書 |
- |
| 備考 |
-
|
| エネルギー消費性能 |
- |
| 断熱性能 |
- |
| 目安光熱費 |
- |
| バス・トイレ |
シャワー付洗面化粧台 |
| キッチン |
- |
| 設備・サービス |
全居室収納、室内洗濯機置場、クローゼット、出窓、全居室フローリング、都市ガス、エアコン、専用庭、照明器具 |
| その他 |
エレベーター |
| 条件等 |
- |
現況 |
空家 |
| 引渡可能時期 |
即時 |
物件番号 |
6986533255 |
| 情報公開日 |
2025年8月1日 |
次回更新予定日 |
2026年5月15日 |
| ケータイ用バーコード |
- スマートフォンでこの物件を見る
- スマートフォンからもこの物件をご覧になれます。
|
※「-」と表示されている項目については、情報提供会社にご確認ください。
| 周辺施設 |
業務スーパー八幡本城店 |
| 距離 |
1164m |
| 周辺施設 |
セブンイレブン八幡本城1丁目店 |
| 距離 |
683m |
ここから簡単にお問い合わせをすることができます。
(SSLでの暗号化での送信を希望されるお客さまは
こちら
よりお問い合わせください)
お問い合わせを行う前に
「個人情報の取り扱いについて」を必ずお読みください。
「個人情報の取り扱いについて」に同意いただいた場合は「上記にご同意の上 確認画面へ進む」のボタンをクリックしてください。
個人情報の取り扱いについて
皆さまが送付された個人情報はアットホーム(株)のサーバを経由し、お問い合わせ先の不動産会社にメールまたはFAXにて転送されるためアットホーム(株)にも保管されます。アットホーム(株)で保管された個人情報の取り扱いについては、【こちら】をご覧ください。
また、本画面でご記入いただいた個人情報は、お問い合わせ先の不動産会社でも保管します。 お問い合わせ先の不動産会社が保管する個人情報の取り扱いについては、不動産会社に直接お問い合わせください。
福岡県知事免許(6)第13974号 |
|---|
- 交通:
- JR鹿児島本線/黒崎駅 徒歩5分
- 福岡県北九州市八幡西区黒崎5丁目1-10 ノーブル黒崎
- TEL:
- 093-621-1177
- FAX:
- 093-621-1577
- 所属団体:
- (公社)福岡県宅地建物取引業協会会員(一社)九州不動産公正取引協議会加盟
取引態様:専属専任媒介  - 80502856
|
- スマートフォンで
この不動産会社を見る

|
- 提携サイト等より掲載されている物件情報につきましては、不動産会社詳細情報にリンクされていないものがあります。
- 物件に関するお問合せは、物件詳細ページの「情報提供会社」に表示されている不動産会社へ直接お願いいたします。
- 間取図は、現況を優先させていただきます。
- 映像は物件の一部を撮影したものです。物件の契約にあたっての最終判断はご自身の判断に基づいて行ってください。
- 仲介手数料について

アットホームは物件情報の適正化に努めております。
内容に誤りがある場合にはこちらへご連絡ください。