宮城県仙台市青葉区通町1丁目(北仙台駅)の中古マンション・新築マンション・分譲マンション:物件詳細
交通 所在地 |
駅徒歩 |
価格 |
構造 階建/階 |
間取り 専有面積 |
物件種目 築年月 |
|
仙台市南北線/北仙台
宮城県仙台市青葉区通町1丁目
|
11分
|
3,900万円
|
RC
地上6階地下1階建 / 2階
|
4LDK
95.62m²
|
中古マンション
2001年7月(築24年9ヶ月)
|
|
角部屋、南向き、2面採光、外観タイル張り、管理人巡回
|
|
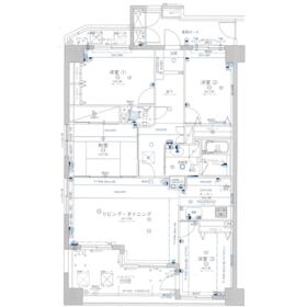
間取図
|
外観
|
その他の画像
|
| 交通 | 仙台市南北線 北仙台駅 徒歩11分 |
|---|
| その他の交通 | 仙台市南北線 北四番丁駅 徒歩13分 |
| 所在地 |
宮城県仙台市青葉区通町1丁目
|
| 物件種目 |
中古マンション |
| 価格 |
3,900万円 |
平米単価 |
40.79万円 |
| 管理費等 |
14,600円 |
修繕積立金 |
13,580円 |
| 借地期間・地代(月額) |
- |
権利金 |
- |
| 敷金または保証金 |
- / - |
維持費等 |
- |
| その他一時金 |
- |
|
|
| 間取り |
4LDK(和 6 洋 6・6.2・6.8) |
専有面積 |
95.62m²(壁芯) |
| 階建 / 階 |
地上6階地下1階建 / 2階 |
バルコニー |
16.21m² |
| 築年月 |
2001年7月(築24年9ヶ月)
|
建物構造 |
RC |
| 駐車場 |
- |
総戸数 |
61戸 |
| 駐輪場 |
有 |
バイク置き場 |
有 |
| ペット |
-
|
|
|
| 土地権利 |
所有権 |
敷地面積 |
3,027.13m² |
| 管理形態/管理員の勤務形態 |
全部委託/巡回(株式会社大京アステージ) |
国土法届出 |
- |
| アピールポイント |
旧モデルルーム延床面積95.62㎡の4LDK。広々としたスペースでストレスなく洗濯物を干せるワイドバルコニー付。南西角部屋で陽当たり通風良好!
キッチンはお料理に集中できる独立型。不在時の受け取りも楽々の宅配BOX付なので、ネット通販大好き派にはお勧めです。実際の空間をご自身で体感ください。 |
| 建物名・部屋番号 |
|
| リフォーム履歴 |
- |
| リノベーション履歴 |
- |
| 瑕疵保証 |
- |
| 瑕疵保険 |
- |
| 評価・証明書 |
- |
| 備考 |
主要採光面:南向き
施工会社:株式会社大林組
用途地域:2種住居、近隣商業
延べ面積:5,898.78m²
駐車場空き要確認
|
| エネルギー消費性能 |
- |
| 断熱性能 |
- |
| 目安光熱費 |
- |
| バス・トイレ |
追焚機能、シャワー付洗面化粧台、温水洗浄便座 |
| キッチン |
システムキッチン、独立型キッチン、浄水器、3口以上コンロ |
| 設備・サービス |
モニター付オートロック、全居室収納、エアコン2台以上、バイク置き場、室内洗濯機置場、クローゼット、防犯カメラ、都市ガス、ワイドバルコニー、駐輪場、照明器具、火災警報器(報知機)、インターネット対応、CS |
| その他 |
宅配BOX、エレベーター |
| 条件等 |
- |
現況 |
空家 |
| 引渡可能時期 |
即時 |
物件番号 |
6986544506 |
| 情報公開日 |
2026年1月30日 |
次回更新予定日 |
2026年3月27日 |
| ケータイ用バーコード |
- スマートフォンでこの物件を見る
- スマートフォンからもこの物件をご覧になれます。
|
※「-」と表示されている項目については、情報提供会社にご確認ください。
| 周辺施設 |
ツルハドラッグ仙台通町店 |
| 距離 |
165m |
| 周辺施設 |
セブンイレブン仙台通町2丁目店 |
| 距離 |
372m |
ここから簡単にお問い合わせをすることができます。
(SSLでの暗号化での送信を希望されるお客さまは
こちら
よりお問い合わせください)
お問い合わせを行う前に
「個人情報の取り扱いについて」を必ずお読みください。
「個人情報の取り扱いについて」に同意いただいた場合は「上記にご同意の上 確認画面へ進む」のボタンをクリックしてください。
個人情報の取り扱いについて
皆さまが送付された個人情報はアットホーム(株)のサーバを経由し、お問い合わせ先の不動産会社にメールまたはFAXにて転送されるためアットホーム(株)にも保管されます。アットホーム(株)で保管された個人情報の取り扱いについては、【こちら】をご覧ください。
また、本画面でご記入いただいた個人情報は、お問い合わせ先の不動産会社でも保管します。 お問い合わせ先の不動産会社が保管する個人情報の取り扱いについては、不動産会社に直接お問い合わせください。
宮城県知事免許(4)第5486号 |
|---|
- 交通:
- JR仙石線/本塩釜駅 徒歩10分
- 宮城県塩竈市旭町16-8
- TEL:
- 022-364-8353
- FAX:
- 022-766-9264
- 所属団体:
- (公社)宮城県宅地建物取引業協会会員東北地区不動産公正取引協議会加盟
取引態様:専任媒介  - 20005877
|
- スマートフォンで
この不動産会社を見る

|
- 提携サイト等より掲載されている物件情報につきましては、不動産会社詳細情報にリンクされていないものがあります。
- 物件に関するお問合せは、物件詳細ページの「情報提供会社」に表示されている不動産会社へ直接お願いいたします。
- 間取図は、現況を優先させていただきます。
- 映像は物件の一部を撮影したものです。物件の契約にあたっての最終判断はご自身の判断に基づいて行ってください。
- 仲介手数料について

アットホームは物件情報の適正化に努めております。
内容に誤りがある場合にはこちらへご連絡ください。