神奈川県横須賀市追浜町1丁目(追浜駅)の中古マンション・新築マンション・分譲マンション:物件詳細
交通 所在地 |
駅徒歩 |
価格 |
構造 階建/階 |
間取り 専有面積 |
物件種目 築年月 |
|
京急本線/追浜
神奈川県横須賀市追浜町1丁目
|
12分
|
2,100万円
|
SRC
地上14階地下1階建 / 11階
|
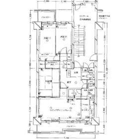
3LDK
65.53m²
|
中古マンション
オーナーチェンジ
1988年11月(築37年1ヶ月)
|
|
駐車場2台分、駐車場3台分以上、2面採光、管理人日勤
|
|
間取図
|
|
<
その他の画像
>
|
| 交通 | 京急本線 追浜駅 徒歩12分 |
|---|
| その他の交通 | 京急本線 京急田浦駅 徒歩14分 |
| 所在地 |
神奈川県横須賀市追浜町1丁目
|
| 物件種目 |
中古マンション |
| 価格 |
2,100万円 |
平米単価 |
32.05万円 |
| 管理費等 |
- |
修繕積立金 |
なし |
| 借地期間・地代(月額) |
- |
権利金 |
- |
| 敷金または保証金 |
- / - |
維持費等 |
- |
| その他一時金 |
- |
|
|
| 間取り |
3LDK(和 6 洋 6・6 LDK 12) |
専有面積 |
65.53m²(内法) |
| 階建 / 階 |
地上14階地下1階建 / 11階 |
バルコニー |
5.00m² |
| 築年月 |
1988年11月(築37年1ヶ月)
|
建物構造 |
SRC |
| 駐車場 |
- |
総戸数 |
- |
| 駐輪場 |
- |
バイク置き場 |
- |
| ペット |
-
|
|
|
| 土地権利 |
所有権 |
敷地面積 |
- |
| 管理形態/管理員の勤務形態 |
全部委託/日勤(日本ハウズイング株式会社) |
国土法届出 |
- |
| アピールポイント |
部屋の換気もしやすい2面採光、更にお手入れ楽ちんなシステムキッチンはトータルで設計されているのでバランスの良さが魅力です。また気軽にお客を呼べる来客用駐車場付で、その上朝のエレベーター渋滞を緩和するエレベーター2基以上は実の所共用施設の重要マターです。ちなみに空調の購入や設置の手間が減るエアコン2台以上設置済です。自然に団らんが生まれる3LDK。是非見学にお越しください。 |
| 建物名・部屋番号 |
クリオ湘南・追浜サニークレスト |
| リフォーム履歴 |
- |
| リノベーション履歴 |
- |
| 瑕疵保証 |
- |
| 瑕疵保険 |
- |
| 評価・証明書 |
- |
| 備考 |
主要採光面:南西向き
用途地域:近隣商業、1種中高
|
| エネルギー消費性能 |
- |
| 断熱性能 |
- |
| 目安光熱費 |
- |
| バス・トイレ |
追焚機能 |
| キッチン |
システムキッチン、2口コンロ |
| 設備・サービス |
エアコン2台以上、収納スペース、室内洗濯機置場、シューズインクローゼット、クローゼット、給湯、都市ガス、エアコン、インターネット対応、光ファイバー |
| その他 |
エレベーター2基以上、来客用駐車場、エレベーター |
| 条件等 |
オーナーチェンジ |
現況 |
賃貸中 |
| 引渡可能時期 |
即時 |
物件番号 |
6986565217 |
| 仲介手数料 |
売買代金の3%+6万円 |
|
|
| 情報公開日 |
2025年6月4日 |
次回更新予定日 |
2025年11月11日 |
| ケータイ用バーコード |
- スマートフォンでこの物件を見る
- スマートフォンからもこの物件をご覧になれます。
|
※「-」と表示されている項目については、情報提供会社にご確認ください。
| 周辺施設 |
ローソン横須賀追浜町一丁目店 |
| 距離 |
263m |
| 周辺施設 |
セブンイレブン横須賀追浜町店 |
| 距離 |
619m |
| 周辺施設 |
ローソンストア100追浜駅前店 |
| 距離 |
726m |
| 周辺施設 |
セブンイレブン京急ST追浜店 |
| 距離 |
910m |
| 周辺施設 |
ドラッグサカイヤ追浜駅前店 |
| 距離 |
911m |
ここから簡単にお問い合わせをすることができます。
(SSLでの暗号化での送信を希望されるお客さまは
こちら
よりお問い合わせください)
お問い合わせを行う前に
「個人情報の取り扱いについて」を必ずお読みください。
「個人情報の取り扱いについて」に同意いただいた場合は「上記にご同意の上 確認画面へ進む」のボタンをクリックしてください。
個人情報の取り扱いについて
皆さまが送付された個人情報はアットホーム(株)のサーバを経由し、お問い合わせ先の不動産会社にメールまたはFAXにて転送されるためアットホーム(株)にも保管されます。アットホーム(株)で保管された個人情報の取り扱いについては、【こちら】をご覧ください。
また、本画面でご記入いただいた個人情報は、お問い合わせ先の不動産会社でも保管します。 お問い合わせ先の不動産会社が保管する個人情報の取り扱いについては、不動産会社に直接お問い合わせください。
東京都知事免許(4)第88965号 |
|---|
- 交通:
- JR山手線/渋谷駅 徒歩5分
- 東京都渋谷区桜丘町22-20 シャトーポレール渋谷203号
- TEL:
- 03-5456-5755
- FAX:
- 03-5456-5756
- 所属団体:
- (公社)全日本不動産協会会員(公社)首都圏不動産公正取引協議会加盟
取引態様:専属専任媒介  - 00018862
|
- スマートフォンで
この不動産会社を見る

|
- 提携サイト等より掲載されている物件情報につきましては、不動産会社詳細情報にリンクされていないものがあります。
- 物件に関するお問合せは、物件詳細ページの「情報提供会社」に表示されている不動産会社へ直接お願いいたします。
- 間取図は、現況を優先させていただきます。
- 映像は物件の一部を撮影したものです。物件の契約にあたっての最終判断はご自身の判断に基づいて行ってください。
- 仲介手数料について

アットホームは物件情報の適正化に努めております。
内容に誤りがある場合にはこちらへご連絡ください。