埼玉県越谷市瓦曽根2丁目(南越谷駅)の中古マンション・新築マンション・分譲マンション:物件詳細
交通 所在地 |
駅徒歩 |
価格 |
構造 階建/階 |
間取り 専有面積 |
物件種目 築年月 |
JR武蔵野線/南越谷
埼玉県越谷市瓦曽根2丁目
|
10分
|
2,480万円
|
RC
7階建 / 2階
|
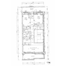
3LDK
60.32m²
|
中古マンション
1996年7月(築29年4ヶ月)
|
管理人日勤
|
間取図
|
|
<
その他の画像
>
|
交通 | JR武蔵野線 南越谷駅 徒歩10分 |
---|
その他の交通 | 東武伊勢崎線 新越谷駅 徒歩12分 東武伊勢崎線 越谷駅 徒歩14分 |
所在地 |
埼玉県越谷市瓦曽根2丁目
|
物件種目 |
中古マンション |
価格 |
2,480万円 |
平米単価 |
41.12万円 |
管理費等 |
10,600円 |
修繕積立金 |
15,900円 |
借地期間・地代(月額) |
- |
権利金 |
- |
敷金または保証金 |
- / - |
維持費等 |
- |
その他一時金 |
- |
|
|
間取り |
3LDK |
専有面積 |
60.32m²(壁芯) |
階建 / 階 |
7階建 / 2階 |
バルコニー |
- |
築年月 |
1996年7月(築29年4ヶ月)
|
建物構造 |
RC |
駐車場 |
- |
総戸数 |
- |
駐輪場 |
- |
バイク置き場 |
- |
ペット |
-
|
|
|
土地権利 |
所有権 |
敷地面積 |
- |
管理形態/管理員の勤務形態 |
全部委託/日勤 |
国土法届出 |
- |
アピールポイント |
家族の安心拠点になる3LDK。ご案内いたしますのでお気軽にご連絡ください。 |
建物名・部屋番号 |
|
リフォーム履歴 |
- |
リノベーション履歴 |
- |
瑕疵保証 |
- |
瑕疵保険 |
- |
評価・証明書 |
- |
備考 |
用途地域:準工業
|
エネルギー消費性能 |
- |
断熱性能 |
- |
目安光熱費 |
- |
バス・トイレ |
追焚機能、温水洗浄便座 |
キッチン |
3口以上コンロ |
設備・サービス |
収納スペース |
その他 |
宅配BOX、エレベーター |
条件等 |
- |
現況 |
空家 |
引渡可能時期 |
即時 |
物件番号 |
6986637861 |
仲介手数料 |
売買代金の3%+6万円 |
|
|
情報公開日 |
2025年8月8日 |
次回更新予定日 |
2025年10月31日 |
ケータイ用バーコード |
- スマートフォンでこの物件を見る
- スマートフォンからもこの物件をご覧になれます。
|
※「-」と表示されている項目については、情報提供会社にご確認ください。
周辺施設 |
ファミリーマート越谷西方店 |
距離 |
439m |
周辺施設 |
セブンイレブン越谷西方店 |
距離 |
474m |
ここから簡単にお問い合わせをすることができます。
(SSLでの暗号化での送信を希望されるお客さまは
こちら
よりお問い合わせください)
お問い合わせを行う前に
「個人情報の取り扱いについて」を必ずお読みください。
「個人情報の取り扱いについて」に同意いただいた場合は「上記にご同意の上 確認画面へ進む」のボタンをクリックしてください。
個人情報の取り扱いについて
皆さまが送付された個人情報はアットホーム(株)のサーバを経由し、お問い合わせ先の不動産会社にメールまたはFAXにて転送されるためアットホーム(株)にも保管されます。アットホーム(株)で保管された個人情報の取り扱いについては、【こちら】をご覧ください。
また、本画面でご記入いただいた個人情報は、お問い合わせ先の不動産会社でも保管します。 お問い合わせ先の不動産会社が保管する個人情報の取り扱いについては、不動産会社に直接お問い合わせください。
千葉県知事免許(2)第17256号 |
---|
- 交通:
- JR総武本線/船橋駅 徒歩8分
- 千葉県船橋市海神1丁目29-30-113 マリンメゾン
- TEL:
- 047-404-1731
- FAX:
- 047-404-1732
- 所属団体:
- (一社)千葉県宅地建物取引業協会会員(公社)首都圏不動産公正取引協議会加盟
取引態様:専任媒介  - 00263864
|
- スマートフォンで
この不動産会社を見る

|
- 提携サイト等より掲載されている物件情報につきましては、不動産会社詳細情報にリンクされていないものがあります。
- 物件に関するお問合せは、物件詳細ページの「情報提供会社」に表示されている不動産会社へ直接お願いいたします。
- 間取図は、現況を優先させていただきます。
- 映像は物件の一部を撮影したものです。物件の契約にあたっての最終判断はご自身の判断に基づいて行ってください。
- 仲介手数料について

アットホームは物件情報の適正化に努めております。
内容に誤りがある場合にはこちらへご連絡ください。