山口県山口市小郡明治2丁目(新山口駅)の中古マンション・新築マンション・分譲マンション:物件詳細
交通 所在地 |
駅徒歩 |
価格 |
構造 階建/階 |
間取り 専有面積 |
物件種目 築年月 |
JR山陽本線/新山口
山口県山口市小郡明治2丁目
|
2分
|
5,390万円
|
RC
13階建 / 12階
|
4LDK
86.22m²
|
新築マンション
2025年9月
|
ペット相談、角部屋、24時間セキュリティー、二重床・二重天井、ノンホルムアルデヒド、バス1坪以上、3面採光、24時間換気システム、バリアフリー、外観タイル張り、設計住宅性能評価書あり、建設住宅性能評価書あり、前面棟無、管理人日勤、IT重説対応物件
|
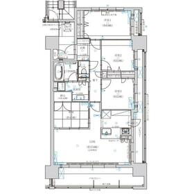
間取図
|
|
その他の画像
|
交通 | JR山陽本線 新山口駅 徒歩2分 |
所在地 |
山口県山口市小郡明治2丁目
|
物件種目 |
新築マンション |
価格 |
5,390万円 |
平米単価 |
62.52万円 |
管理費等 |
14,400円 |
修繕積立金 |
6,900円 |
借地期間・地代(月額) |
- |
権利金 |
- |
敷金または保証金 |
- / - |
維持費等 |
- |
その他一時金 |
- |
|
|
間取り |
4LDK(和 4.5 洋 6.8・5・5 LDK 17.6) |
専有面積 |
86.22m²(壁芯) |
階建 / 階 |
13階建 / 12階 |
バルコニー |
23.67m² |
築年月 |
2025年9月
|
建物構造 |
RC |
駐車場 |
有 無料 |
総戸数 |
82戸 |
駐輪場 |
無 |
バイク置き場 |
有 無料 |
ペット |
小型犬可・ 2匹まで |
|
|
土地権利 |
所有権 |
敷地面積 |
- |
管理形態/管理員の勤務形態 |
全部委託/日勤(株式会社 トラストコミュニテ) |
国土法届出 |
- |
アピールポイント |
広々としたお部屋の空間と開放感のある眺望が魅力の高層階4LDK角部屋住戸です♪ |
建物名・部屋番号 |
|
リフォーム履歴 |
- |
リノベーション履歴 |
- |
瑕疵保証 |
- |
瑕疵保険 |
- |
評価・証明書 |
- |
備考 |
主要採光面:南西向き
施工会社:株式会社長野工務店
用途地域:商業地域
IT重説対応物件
|
エネルギー消費性能 |
- |
断熱性能 |
- |
目安光熱費 |
- |
バス・トイレ |
浴室暖房、浴室乾燥機、オートバス、温水洗浄便座、浴室に窓あり |
キッチン |
カウンターキッチン、オープンキッチン、システムキッチン、食器洗浄乾燥機、浄水器、3口以上コンロ、グリル |
設備・サービス |
モニター付オートロック、全居室収納、バイク置き場、室内洗濯機置場、オートロック、ディンプルキー、ダブルロックドア、防犯カメラ、省エネ給湯器、都市ガス、ワイドバルコニー、二面バルコニー、人感センサー付照明、ダウンライト、火災警報器(報知機)、インターネット対応、ケーブルTV、CS、BS端子、マルチメディアコンセント、複層ガラス |
その他 |
宅配BOX、敷地内AED有、エレベーター2基以上 |
条件等 |
- |
現況 |
未完成 |
引渡可能時期 |
相談 |
物件番号 |
6986665522 |
仲介手数料 |
売買代金の3%+6万円 |
|
|
情報公開日 |
2025年9月11日 |
次回更新予定日 |
2025年10月23日 |
ケータイ用バーコード |
- スマートフォンでこの物件を見る
- スマートフォンからもこの物件をご覧になれます。
|
※「-」と表示されている項目については、情報提供会社にご確認ください。
周辺施設 |
セブンイレブン新山口駅前店 |
距離 |
65m |
ここから簡単にお問い合わせをすることができます。
(SSLでの暗号化での送信を希望されるお客さまは
こちら
よりお問い合わせください)
お問い合わせを行う前に
「個人情報の取り扱いについて」を必ずお読みください。
「個人情報の取り扱いについて」に同意いただいた場合は「上記にご同意の上 確認画面へ進む」のボタンをクリックしてください。
個人情報の取り扱いについて
皆さまが送付された個人情報はアットホーム(株)のサーバを経由し、お問い合わせ先の不動産会社にメールまたはFAXにて転送されるためアットホーム(株)にも保管されます。アットホーム(株)で保管された個人情報の取り扱いについては、【こちら】をご覧ください。
また、本画面でご記入いただいた個人情報は、お問い合わせ先の不動産会社でも保管します。 お問い合わせ先の不動産会社が保管する個人情報の取り扱いについては、不動産会社に直接お問い合わせください。
山口県知事免許(1)第3769号 |
---|
- 交通:
- JR山陽本線/下関駅 徒歩5分
- 山口県下関市竹崎町4丁目1-22 エストラストビル1階
- TEL:
- 083-250-8484
- FAX:
- 083-250-8486
- 所属団体:
- (公社)山口県宅地建物取引業協会会員中国地区不動産公正取引協議会加盟
取引態様:専属専任媒介  - 80506117
|
- スマートフォンで
この不動産会社を見る

|
- 提携サイト等より掲載されている物件情報につきましては、不動産会社詳細情報にリンクされていないものがあります。
- 物件に関するお問合せは、物件詳細ページの「情報提供会社」に表示されている不動産会社へ直接お願いいたします。
- 間取図は、現況を優先させていただきます。
- 映像は物件の一部を撮影したものです。物件の契約にあたっての最終判断はご自身の判断に基づいて行ってください。
- 仲介手数料について

アットホームは物件情報の適正化に努めております。
内容に誤りがある場合にはこちらへご連絡ください。