東京都東村山市栄町1丁目(久米川駅)の中古マンション・新築マンション・分譲マンション:物件詳細
交通 所在地 |
駅徒歩 |
価格 |
構造 階建/階 |
間取り 専有面積 |
物件種目 築年月 |
|
西武新宿線/久米川
東京都東村山市栄町1丁目
|
7分
|
3,480万円
|
RC
4階建 / 3階
|
3LDK
75.58m²
|
中古マンション
2003年3月(築22年9ヶ月)
|
|
ペット相談、閑静な住宅街、前面棟無、隣接建物距離2m以上、管理人日勤
|
|
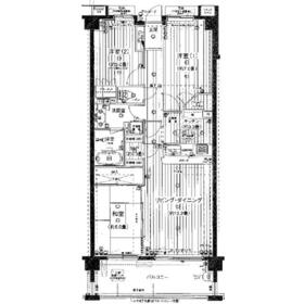
間取図
|
外観
|
その他の画像
|
| 交通 | 西武新宿線 久米川駅 徒歩7分 |
|---|
| その他の交通 | 西武多摩湖線 八坂駅 徒歩17分 西武新宿線 東村山駅 徒歩23分 |
| 所在地 |
東京都東村山市栄町1丁目
|
| 物件種目 |
中古マンション |
| 価格 |
3,480万円 |
平米単価 |
46.05万円 |
| 管理費等 |
9,980円 |
修繕積立金 |
7,940円 |
| 借地期間・地代(月額) |
- |
権利金 |
- |
| 敷金または保証金 |
- / - |
維持費等 |
- |
| その他一時金 |
- |
|
|
| 間取り |
3LDK(和 6 洋 5・7 LDK 15.5) |
専有面積 |
75.58m²(壁芯) |
| 階建 / 階 |
4階建 / 3階 |
バルコニー |
12.40m² |
| 築年月 |
2003年3月(築22年9ヶ月)
|
建物構造 |
RC |
| 駐車場 |
有 5,000円/月 |
総戸数 |
63戸 |
| 駐輪場 |
有 300円/月 |
バイク置き場 |
有 500円/月 |
| ペット |
小型犬可・ 猫可 |
|
|
| 土地権利 |
所有権 |
敷地面積 |
- |
| 管理形態/管理員の勤務形態 |
全部委託/日勤(株式会社合人社計画研究所) |
国土法届出 |
- |
| アピールポイント |
お探しの方には嬉しいペット(小型犬)相談可。広々とした延床面積75.58㎡の居室空間、更に遮る壁がなくスペースが広々と感じられるオープンキッチン仕様なので、家族やお客さんとおしゃべりしながら料理できます。また閑静な住宅街の住戸で、その上お鍋とフライパンを使いながらヤカンもおけるコンロ3口以上の仕様なので、晩ごはんの支度と翌日の弁当準備ができます。ちなみにカビの発生を防ぎお手入れが楽になる浴室暖房付です。自然に団らんが生まれる3LDK。是非見学にお越しください。 |
| 建物名・部屋番号 |
ハイセレサ久米川ルネサンスフィールド |
| リフォーム履歴 |
- |
| リノベーション履歴 |
- |
| 瑕疵保証 |
- |
| 瑕疵保険 |
- |
| 評価・証明書 |
- |
| 備考 |
主要採光面:南東向き
用途地域:2種中高、1種低層
|
| エネルギー消費性能 |
- |
| 断熱性能 |
- |
| 目安光熱費 |
- |
| バス・トイレ |
浴室暖房、浴室乾燥機、オートバス、追焚機能、温水洗浄便座 |
| キッチン |
オープンキッチン、システムキッチン、3口以上コンロ |
| 設備・サービス |
モニター付オートロック、バイク置き場、収納スペース、室内洗濯機置場、クローゼット、オートロック、モニター付インターホン、給湯、駐輪場 |
| その他 |
エレベーター |
| 条件等 |
- |
現況 |
所有者居住中 |
| 引渡可能時期 |
相談 |
物件番号 |
6986681851 |
| 仲介手数料 |
売買代金の3%+6万円 |
|
|
| 情報公開日 |
2025年6月14日 |
次回更新予定日 |
2025年11月15日 |
| ケータイ用バーコード |
- スマートフォンでこの物件を見る
- スマートフォンからもこの物件をご覧になれます。
|
※「-」と表示されている項目については、情報提供会社にご確認ください。
| 周辺施設 |
ロンドゴルフプラザフォレスト |
| 距離 |
168m |
| 周辺施設 |
セブンイレブン東村山恩多町3丁目店 |
| 距離 |
229m |
| 周辺施設 |
ジャパンミート卸売市場東村山店 |
| 距離 |
459m |
ここから簡単にお問い合わせをすることができます。
(SSLでの暗号化での送信を希望されるお客さまは
こちら
よりお問い合わせください)
お問い合わせを行う前に
「個人情報の取り扱いについて」を必ずお読みください。
「個人情報の取り扱いについて」に同意いただいた場合は「上記にご同意の上 確認画面へ進む」のボタンをクリックしてください。
個人情報の取り扱いについて
皆さまが送付された個人情報はアットホーム(株)のサーバを経由し、お問い合わせ先の不動産会社にメールまたはFAXにて転送されるためアットホーム(株)にも保管されます。アットホーム(株)で保管された個人情報の取り扱いについては、【こちら】をご覧ください。
また、本画面でご記入いただいた個人情報は、お問い合わせ先の不動産会社でも保管します。 お問い合わせ先の不動産会社が保管する個人情報の取り扱いについては、不動産会社に直接お問い合わせください。
東京都知事免許(8)第63267号 |
|---|
- 交通:
- JR中央線/東小金井駅 徒歩8分
- 東京都小金井市東町4丁目17-1 柳ビル
- TEL:
- 042-388-2461
- FAX:
- 042-388-2462
- 所属団体:
- (公社)東京都宅地建物取引業協会会員(公社)首都圏不動産公正取引協議会加盟
取引態様:専任媒介  - 00710786
|
- スマートフォンで
この不動産会社を見る

|
- 提携サイト等より掲載されている物件情報につきましては、不動産会社詳細情報にリンクされていないものがあります。
- 物件に関するお問合せは、物件詳細ページの「情報提供会社」に表示されている不動産会社へ直接お願いいたします。
- 間取図は、現況を優先させていただきます。
- 映像は物件の一部を撮影したものです。物件の契約にあたっての最終判断はご自身の判断に基づいて行ってください。
- 仲介手数料について

アットホームは物件情報の適正化に努めております。
内容に誤りがある場合にはこちらへご連絡ください。