愛知県豊田市豊栄町3丁目(末野原駅)の中古マンション・新築マンション・分譲マンション:物件詳細
交通 所在地 |
駅徒歩 |
価格 |
構造 階建/階 |
間取り 専有面積 |
物件種目 築年月 |
|
愛知環状鉄道/末野原
愛知県豊田市豊栄町3丁目
|
15分
|
3,450万円
|
RC
19階建 / 19階
|
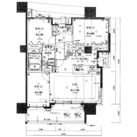
3LDK
79.01m²
|
中古マンション
2014年3月(築12年3ヶ月)
|
|
ペット相談、駐車場2台分、最上階、2面採光、管理人日勤
|
|
間取図
|
外観
|
<
その他の画像
>
|
| 交通 | 愛知環状鉄道 末野原駅 徒歩15分 |
|---|
| その他の交通 | 愛知環状鉄道 三河豊田駅 徒歩18分 |
| 所在地 |
愛知県豊田市豊栄町3丁目
|
| 物件種目 |
中古マンション |
| 価格 |
3,450万円 |
平米単価 |
43.67万円 |
| 管理費等 |
11,100円 |
修繕積立金 |
15,900円 |
| 借地期間・地代(月額) |
- |
権利金 |
- |
| 敷金または保証金 |
- / - |
維持費等 |
- |
| その他一時金 |
- |
|
|
| 間取り |
3LDK(洋 6.9・6・5.2 LDK 17.7) |
専有面積 |
79.01m²(壁芯) |
| 階建 / 階 |
19階建 / 19階 |
バルコニー |
13.83m² |
| 築年月 |
2014年3月(築12年3ヶ月)
|
建物構造 |
RC |
| 駐車場 |
有 9,500円/月 |
総戸数 |
108戸 |
| 駐輪場 |
- |
バイク置き場 |
有 |
| ペット |
(規約有) |
|
|
| 土地権利 |
所有権 |
敷地面積 |
- |
| 管理形態/管理員の勤務形態 |
全部委託/日勤(トヨタすまいるライフ(株)) |
国土法届出 |
- |
| アピールポイント |
★2027年度大規模修繕工事実地予定★19階建最上階角部屋!開放感があり眺望も良く、夏にはおいでんまつりや岡崎の花火も観賞できます★夜景もキレイ♪まずはお気軽にお問い合わせください♪写真は随時追加していきます!【内覧は予約をお願いします(土日祝可)】東南角部屋、全居室収納有、ペット可(規約有り)、玄関前可燃ゴミ回収サービス有、駐車場2台有(2台で9,500円)、来客用駐車場有★即日入居可能★ |
| 建物名・部屋番号 |
Tステージ豊栄町スカイレジデンス |
| リフォーム履歴 |
- |
| リノベーション履歴 |
- |
| 瑕疵保証 |
- |
| 瑕疵保険 |
- |
| 評価・証明書 |
- |
| 備考 |
用途地域:1種住居
・トランクルーム面積0.42㎡(※専有面積に含む)
・アルコーブ面積1.09㎡
・駐車場料金は2台分(専用使用権につき継承)
・2027年度大規模修繕工事実地予定
・2028年7月より修繕積立金18,200円へ増額予定
|
| エネルギー消費性能 |
- |
| 断熱性能 |
- |
| 目安光熱費 |
- |
| バス・トイレ |
浴室暖房、浴室乾燥機、追焚機能、シャワー付洗面化粧台、温水洗浄便座 |
| キッチン |
カウンターキッチン、オープンキッチン、システムキッチン、食器洗浄乾燥機、3口以上コンロ |
| 設備・サービス |
全居室収納、バイク置き場、トランクルーム、給湯、全居室フローリング、アルコーブ、都市ガス |
| その他 |
エレベーター |
| 条件等 |
- |
現況 |
空家 |
| 引渡可能時期 |
即時 |
物件番号 |
6986714054 |
| 情報公開日 |
2025年6月20日 |
次回更新予定日 |
2026年5月21日 |
| ケータイ用バーコード |
- スマートフォンでこの物件を見る
- スマートフォンからもこの物件をご覧になれます。
|
※「-」と表示されている項目については、情報提供会社にご確認ください。
| 周辺施設 |
ローソン豊田豊栄町五丁目店 |
| 距離 |
337m |
ここから簡単にお問い合わせをすることができます。
(SSLでの暗号化での送信を希望されるお客さまは
こちら
よりお問い合わせください)
お問い合わせを行う前に
「個人情報の取り扱いについて」を必ずお読みください。
「個人情報の取り扱いについて」に同意いただいた場合は「上記にご同意の上 確認画面へ進む」のボタンをクリックしてください。
個人情報の取り扱いについて
皆さまが送付された個人情報はアットホーム(株)のサーバを経由し、お問い合わせ先の不動産会社にメールまたはFAXにて転送されるためアットホーム(株)にも保管されます。アットホーム(株)で保管された個人情報の取り扱いについては、【こちら】をご覧ください。
また、本画面でご記入いただいた個人情報は、お問い合わせ先の不動産会社でも保管します。 お問い合わせ先の不動産会社が保管する個人情報の取り扱いについては、不動産会社に直接お問い合わせください。
愛知県知事免許(1)第25360号 |
|---|
- 交通:
- JR中央線/神領駅
- 愛知県春日井市篠木町8丁目2968-1
- TEL:
- 0568-41-8795
- 所属団体:
- (公社)全日本不動産協会会員東海不動産公正取引協議会加盟
取引態様:一般媒介  - 40411486
|
- スマートフォンで
この不動産会社を見る

|
- 提携サイト等より掲載されている物件情報につきましては、不動産会社詳細情報にリンクされていないものがあります。
- 物件に関するお問合せは、物件詳細ページの「情報提供会社」に表示されている不動産会社へ直接お願いいたします。
- 間取図は、現況を優先させていただきます。
- 映像は物件の一部を撮影したものです。物件の契約にあたっての最終判断はご自身の判断に基づいて行ってください。
- 仲介手数料について

アットホームは物件情報の適正化に努めております。
内容に誤りがある場合にはこちらへご連絡ください。