兵庫県神戸市中央区港島中町8丁目(南公園駅)の中古マンション・新築マンション・分譲マンション:物件詳細
交通 所在地 |
駅徒歩 |
価格 |
構造 階建/階 |
間取り 専有面積 |
物件種目 築年月 |
ポートアイランド線/南公園
兵庫県神戸市中央区港島中町8丁目
|
3分
|
4,580万円
|
RC
15階建 / 15階
|
3LDK
70.29m²
|
中古マンション
2018年7月(築7年4ヶ月)
|
ペット相談、フロントサービス、最上階、閑静な住宅街、隣接建物距離2m以上、管理人日勤
|
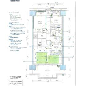
間取図
|
外観
|
その他の画像
|
交通 | ポートアイランド線 南公園駅 徒歩3分 |
所在地 |
兵庫県神戸市中央区港島中町8丁目
|
物件種目 |
中古マンション |
価格 |
4,580万円 |
平米単価 |
65.16万円 |
管理費等 |
12,800円 |
修繕積立金 |
23,100円 |
借地期間・地代(月額) |
- |
権利金 |
- |
敷金または保証金 |
- / - |
維持費等 |
インターネット:880円/月、ホームセキュリティ:198円/月、ゲートキー:200円/月 |
その他一時金 |
- |
|
|
間取り |
3LDK(和 4.5 洋 6.6・5) |
専有面積 |
70.29m²(壁芯) |
階建 / 階 |
15階建 / 15階 |
バルコニー |
14.95m² |
築年月 |
2018年7月(築7年4ヶ月)
|
建物構造 |
RC |
駐車場 |
有 1,100円/月 |
総戸数 |
166戸 |
駐輪場 |
有 100円/月 |
バイク置き場 |
- |
ペット |
規制有 |
|
|
土地権利 |
所有権 |
敷地面積 |
6,295.10m² |
管理形態/管理員の勤務形態 |
全部委託/日勤(伊藤忠アーバンコミュニティ) |
国土法届出 |
- |
アピールポイント |
海側眺望よい/広いバルコニー/ポートライナー駅まで専用通路あり/クローゼット充実/浴室冷暖乾燥機/メールボックス/和室 押入あり/オープンキッチン |
建物名・部屋番号 |
クレヴィア神戸ポートアイランド 15階部分 |
リフォーム履歴 |
- |
リノベーション履歴 |
- |
瑕疵保証 |
- |
瑕疵保険 |
- |
評価・証明書 |
- |
備考 |
他所在地:クレヴィア神戸ポートアイランド
施工会社:株式会社長谷工コーポレーション
用途地域:準工業
海側眺望よい/広いバルコニー/ポートライナー駅まで専用通路あり/クローゼット充実/浴室冷暖乾燥機/メールボックス/和室 押入あり/オープンキッチン
|
エネルギー消費性能 |
- |
断熱性能 |
- |
目安光熱費 |
- |
バス・トイレ |
- |
キッチン |
オープンキッチン |
設備・サービス |
全居室収納、室内洗濯機置場、ワイドバルコニー、駐輪場 |
その他 |
宅配BOX、エレベーター2基以上 |
条件等 |
- |
現況 |
空家 |
引渡可能時期 |
相談 |
物件番号 |
6986726292 |
仲介手数料 |
売買代金の3%+6万円 |
|
|
情報公開日 |
2025年10月9日 |
次回更新予定日 |
2025年11月4日 |
ケータイ用バーコード |
- スマートフォンでこの物件を見る
- スマートフォンからもこの物件をご覧になれます。
|
※「-」と表示されている項目については、情報提供会社にご確認ください。
周辺施設 |
ファミリーマート神戸ポートピアホテル店 |
距離 |
821m |
周辺施設 |
神戸パークシティ内郵便局 |
距離 |
869m |
ここから簡単にお問い合わせをすることができます。
(SSLでの暗号化での送信を希望されるお客さまは
こちら
よりお問い合わせください)
お問い合わせを行う前に
「個人情報の取り扱いについて」を必ずお読みください。
「個人情報の取り扱いについて」に同意いただいた場合は「上記にご同意の上 確認画面へ進む」のボタンをクリックしてください。
個人情報の取り扱いについて
皆さまが送付された個人情報はアットホーム(株)のサーバを経由し、お問い合わせ先の不動産会社にメールまたはFAXにて転送されるためアットホーム(株)にも保管されます。アットホーム(株)で保管された個人情報の取り扱いについては、【こちら】をご覧ください。
また、本画面でご記入いただいた個人情報は、お問い合わせ先の不動産会社でも保管します。 お問い合わせ先の不動産会社が保管する個人情報の取り扱いについては、不動産会社に直接お問い合わせください。
和歌山県知事免許(1)第3960号 |
---|
- 交通:
- JR阪和線/和歌山駅 【バス】 和歌山バス 雑賀道 停歩2分
- 和歌山県和歌山市広瀬中ノ丁1丁目6番地
- TEL:
- 073-488-4980
- 所属団体:
- (公社)和歌山県宅地建物取引業協会会員(公社)近畿地区不動産公正取引協議会加盟
取引態様:専任媒介  - 50111094
|
- スマートフォンで
この不動産会社を見る

|
- 提携サイト等より掲載されている物件情報につきましては、不動産会社詳細情報にリンクされていないものがあります。
- 物件に関するお問合せは、物件詳細ページの「情報提供会社」に表示されている不動産会社へ直接お願いいたします。
- 間取図は、現況を優先させていただきます。
- 映像は物件の一部を撮影したものです。物件の契約にあたっての最終判断はご自身の判断に基づいて行ってください。
- 仲介手数料について

アットホームは物件情報の適正化に努めております。
内容に誤りがある場合にはこちらへご連絡ください。