群馬県桐生市本町5丁目(桐生駅)の中古マンション・新築マンション・分譲マンション:物件詳細
交通 所在地 |
駅徒歩 |
価格 |
構造 階建/階 |
間取り 専有面積 |
物件種目 築年月 |
|
JR両毛線/桐生
群馬県桐生市本町5丁目
|
7分
|
1,850万円
|
RC
地上14階地下1階建 / 9階
|
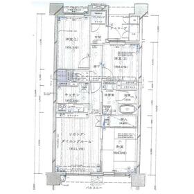
3LDK
70.19m²
|
中古マンション
2008年3月(築17年9ヶ月)
|
|
南向き、バス1坪以上、24時間換気システム、オール電化、管理人日勤
|
|
間取図
|
|
<
その他の画像
>
|
| 交通 | JR両毛線 桐生駅 徒歩7分 |
| 所在地 |
群馬県桐生市本町5丁目
|
| 物件種目 |
中古マンション |
| 価格 |
1,850万円 |
平米単価 |
26.36万円 |
| 管理費等 |
12,040円 |
修繕積立金 |
9,970円 |
| 借地期間・地代(月額) |
- |
権利金 |
- |
| 敷金または保証金 |
- / - |
維持費等 |
インターネット利用料:1,680円/月、自治会費:600円/月 |
| その他一時金 |
- |
|
|
| 間取り |
3LDK(和 6 洋 6.5・5 LDK 11.1) |
専有面積 |
70.19m²(壁芯) |
| 階建 / 階 |
地上14階地下1階建 / 9階 |
バルコニー |
12.60m² |
| 築年月 |
2008年3月(築17年9ヶ月)
|
建物構造 |
RC |
| 駐車場 |
有 4,000円/月 |
総戸数 |
84戸 |
| 駐輪場 |
- |
バイク置き場 |
- |
| ペット |
-
|
|
|
| 土地権利 |
所有権 |
敷地面積 |
1,669.64m² |
| 管理形態/管理員の勤務形態 |
全部委託/日勤(株式会社ライフポート西洋) |
国土法届出 |
- |
| アピールポイント |
使い方を考えるだけでも楽しくなるルーフバルコニー付、更に陽光に面する南向で日照時間が長く、冬でも暖かく暮らせます。オール電化で床暖があるのも魅力的です。桐生駅徒歩約7分で窓から見える桐生の街や山の景色も要チェク! |
| 建物名・部屋番号 |
シーズガーデン桐生本町 905 |
| リフォーム履歴 |
- |
| リノベーション履歴 |
- |
| 瑕疵保証 |
- |
| 瑕疵保険 |
- |
| 評価・証明書 |
- |
| 備考 |
主要採光面:南向き
用途地域:商業地域
延べ面積:7,107.46m²
|
| エネルギー消費性能 |
- |
| 断熱性能 |
- |
| 目安光熱費 |
- |
| バス・トイレ |
浴室暖房、浴室乾燥機、追焚機能、シャワー付洗面化粧台、温水洗浄便座 |
| キッチン |
システムキッチン、IHクッキングヒーター |
| 設備・サービス |
全居室収納、ウォークインクローゼット、床暖房、室内洗濯機置場、クローゼット、モニター付インターホン、ディンプルキー、防犯カメラ、給湯、ワイドバルコニー、照明器具、火災警報器(報知機)、インターネット対応 |
| その他 |
宅配BOX、エレベーター |
| 条件等 |
- |
現況 |
空家 |
| 引渡可能時期 |
相談 |
物件番号 |
6986741824 |
| 情報公開日 |
2025年6月20日 |
次回更新予定日 |
2025年11月15日 |
| ケータイ用バーコード |
- スマートフォンでこの物件を見る
- スマートフォンからもこの物件をご覧になれます。
|
※「-」と表示されている項目については、情報提供会社にご確認ください。
| 周辺施設 |
ファミリーマート桐生末広町店 |
| 距離 |
311m |
ここから簡単にお問い合わせをすることができます。
(SSLでの暗号化での送信を希望されるお客さまは
こちら
よりお問い合わせください)
お問い合わせを行う前に
「個人情報の取り扱いについて」を必ずお読みください。
「個人情報の取り扱いについて」に同意いただいた場合は「上記にご同意の上 確認画面へ進む」のボタンをクリックしてください。
個人情報の取り扱いについて
皆さまが送付された個人情報はアットホーム(株)のサーバを経由し、お問い合わせ先の不動産会社にメールまたはFAXにて転送されるためアットホーム(株)にも保管されます。アットホーム(株)で保管された個人情報の取り扱いについては、【こちら】をご覧ください。
また、本画面でご記入いただいた個人情報は、お問い合わせ先の不動産会社でも保管します。 お問い合わせ先の不動産会社が保管する個人情報の取り扱いについては、不動産会社に直接お問い合わせください。
群馬県知事免許(1)第7863号 |
|---|
- 交通:
- 東武小泉線/竜舞駅 徒歩30分
- 群馬県太田市飯塚町1083番地1
- TEL:
- 0276-60-4644
- FAX:
- 0276-60-4645
- 所属団体:
- (公社)全日本不動産協会会員(公社)首都圏不動産公正取引協議会加盟
取引態様:専任媒介  - 00274112
|
- スマートフォンで
この不動産会社を見る

|
- 提携サイト等より掲載されている物件情報につきましては、不動産会社詳細情報にリンクされていないものがあります。
- 物件に関するお問合せは、物件詳細ページの「情報提供会社」に表示されている不動産会社へ直接お願いいたします。
- 間取図は、現況を優先させていただきます。
- 映像は物件の一部を撮影したものです。物件の契約にあたっての最終判断はご自身の判断に基づいて行ってください。
- 仲介手数料について

アットホームは物件情報の適正化に努めております。
内容に誤りがある場合にはこちらへご連絡ください。