福岡県福岡市西区大字徳永(周船寺駅)の中古マンション・新築マンション・分譲マンション:物件詳細
交通 所在地 |
駅徒歩 |
価格 |
構造 階建/階 |
間取り 専有面積 |
物件種目 築年月 |
|
JR筑肥線/周船寺
福岡県福岡市西区大字徳永
|
27分
|
1,380万円
|
RC
7階建 / 7階
|
3LDK
113.17m²
|
中古マンション
1980年8月(築45年3ヶ月)
|
|
ペット相談、最上階、閑静な住宅街、管理人巡回、高台
|
|
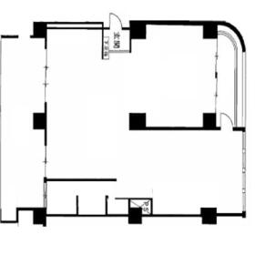
間取図
|
|
<
その他の画像
>
|
| 交通 | JR筑肥線 周船寺駅 徒歩27分 |
|---|
| その他の交通 | JR筑肥線 九大学研都市駅 徒歩20分 |
| 所在地 |
福岡県福岡市西区大字徳永
|
| 物件種目 |
中古マンション |
| 価格 |
1,380万円 |
平米単価 |
12.20万円 |
| 管理費等 |
11,025円 |
修繕積立金 |
27,160円 |
| 借地期間・地代(月額) |
- |
権利金 |
- |
| 敷金または保証金 |
- / - |
維持費等 |
- |
| その他一時金 |
- |
|
|
| 間取り |
3LDK |
専有面積 |
113.17m²(壁芯) |
| 階建 / 階 |
7階建 / 7階 |
バルコニー |
34.08m² |
| 築年月 |
1980年8月(築45年3ヶ月)
|
建物構造 |
RC |
| 駐車場 |
- |
総戸数 |
- |
| 駐輪場 |
- |
バイク置き場 |
- |
| ペット |
小型犬可・ 猫可・ 管理組合の承認必須 |
|
|
| 土地権利 |
所有権 |
敷地面積 |
- |
| 管理形態/管理員の勤務形態 |
全部委託/巡回 |
国土法届出 |
- |
| アピールポイント |
■固定資産税85,340円(令和6年度分)
■ペット飼育可能
■地下水を汲み上げているので蛇口から天然水が♪
■2023年給水ポンプ交換実施
●JR筑肥線「九大学研都市」駅 徒歩で【18分】
●天神まで車で【15分】博多まで車で【20分】
●スーパー【イオンモール】徒歩【15分】
●※【西都小学校】 ※【元岡中学校】
●管理費【11,025円】修繕費【27,160円】
●借入金額【1480万円】金利【0.725%】
返済期間【35年】※月々返済【39,908円】
返済期間【40年】※月々返済【35,529円】
●住宅ローン●資金計画●税金関係●購入の流れを
全て分かりやすくご説明いたします |
| 建物名・部屋番号 |
|
| リフォーム履歴 |
■内装:2025年2月 スケルトン ※実施年月は最も古い履歴を表示 |
| リノベーション履歴 |
- |
| 瑕疵保証 |
- |
| 瑕疵保険 |
- |
| 評価・証明書 |
- |
| 備考 |
主要採光面:南西向き
|
| エネルギー消費性能 |
- |
| 断熱性能 |
- |
| 目安光熱費 |
- |
| バス・トイレ |
- |
| キッチン |
- |
| 設備・サービス |
オートロック、二面バルコニー |
| その他 |
エレベーター |
| 条件等 |
- |
現況 |
空家 |
| 引渡可能時期 |
即時 |
物件番号 |
6986745575 |
| 情報公開日 |
2025年9月19日 |
次回更新予定日 |
2025年11月3日 |
| ケータイ用バーコード |
- スマートフォンでこの物件を見る
- スマートフォンからもこの物件をご覧になれます。
|
※「-」と表示されている項目については、情報提供会社にご確認ください。
| 周辺施設 |
イオン福岡伊都店 |
| 距離 |
1359m |
写真を見る |
| 周辺施設 |
ローソン福岡周船寺二丁目店 |
| 距離 |
2029m |
写真を見る |
| 周辺施設 |
福岡市立元岡中学校 |
| 距離 |
2483m |
写真を見る |
| 周辺施設 |
福岡市立西都小学校 |
| 距離 |
1575m |
写真を見る |
| 周辺施設 |
ゆきぞの幼稚園 |
| 距離 |
159m |
写真を見る |
| 周辺施設 |
医療法人光陽会伊都の丘病院 |
| 距離 |
1153m |
写真を見る |
| 周辺施設 |
周船寺郵便局 |
| 距離 |
2020m |
写真を見る |
| 周辺施設 |
JA福岡市周船寺支店 |
| 距離 |
2227m |
写真を見る |
ここから簡単にお問い合わせをすることができます。
(SSLでの暗号化での送信を希望されるお客さまは
こちら
よりお問い合わせください)
お問い合わせを行う前に
「個人情報の取り扱いについて」を必ずお読みください。
「個人情報の取り扱いについて」に同意いただいた場合は「上記にご同意の上 確認画面へ進む」のボタンをクリックしてください。
個人情報の取り扱いについて
皆さまが送付された個人情報はアットホーム(株)のサーバを経由し、お問い合わせ先の不動産会社にメールまたはFAXにて転送されるためアットホーム(株)にも保管されます。アットホーム(株)で保管された個人情報の取り扱いについては、【こちら】をご覧ください。
また、本画面でご記入いただいた個人情報は、お問い合わせ先の不動産会社でも保管します。 お問い合わせ先の不動産会社が保管する個人情報の取り扱いについては、不動産会社に直接お問い合わせください。
福岡県知事免許(1)第19909号 |
|---|
- 交通:
- 西鉄天神大牟田線/井尻駅 徒歩12分
- 福岡県福岡市南区横手3丁目19-16
- TEL:
- 092-210-9957
- FAX:
- 092-210-9958
- 所属団体:
- (公社)福岡県宅地建物取引業協会会員(一社)九州不動産公正取引協議会加盟
取引態様:一般媒介  - 80502946
|
- スマートフォンで
この不動産会社を見る

|
- 提携サイト等より掲載されている物件情報につきましては、不動産会社詳細情報にリンクされていないものがあります。
- 物件に関するお問合せは、物件詳細ページの「情報提供会社」に表示されている不動産会社へ直接お願いいたします。
- 間取図は、現況を優先させていただきます。
- 映像は物件の一部を撮影したものです。物件の契約にあたっての最終判断はご自身の判断に基づいて行ってください。
- 仲介手数料について

アットホームは物件情報の適正化に努めております。
内容に誤りがある場合にはこちらへご連絡ください。