神奈川県横浜市鶴見区上の宮1丁目(菊名駅)の中古マンション・新築マンション・分譲マンション:物件詳細
交通 所在地 |
駅徒歩 |
価格 |
構造 階建/階 |
間取り 専有面積 |
物件種目 築年月 |
|
東急東横線/菊名
神奈川県横浜市鶴見区上の宮1丁目
|
13分
|
5,980万円
|
RC
8階建 / 2階
|
3LDK
72.13m²
|
中古マンション
2016年3月(築9年8ヶ月)
|
|
ペット相談、24時間換気システム、管理人日勤
|
|
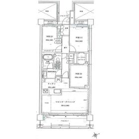
間取図
|
外観
|
<
その他の画像
>
|
| 交通 | 東急東横線 菊名駅 徒歩13分 |
|---|
| その他の交通 | JR京浜東北線 鶴見駅 【バス】 26分 上の宮1丁目 停歩2分 |
| 所在地 |
神奈川県横浜市鶴見区上の宮1丁目
|
| 物件種目 |
中古マンション |
| 価格 |
5,980万円 |
平米単価 |
82.91万円 |
| 管理費等 |
16,000円 |
修繕積立金 |
11,339円 |
| 借地期間・地代(月額) |
- |
権利金 |
- |
| 敷金または保証金 |
- / - |
維持費等 |
- |
| その他一時金 |
ネットワーク関連:1,650円、テレビ保守点検費:110円、その他:550円 |
|
|
| 間取り |
3LDK(洋 6・5・5) |
専有面積 |
72.13m²(壁芯) |
| 階建 / 階 |
8階建 / 2階 |
バルコニー |
9.95m² |
| 築年月 |
2016年3月(築9年8ヶ月)
|
建物構造 |
RC |
| 駐車場 |
有 30,000円/月 |
総戸数 |
83戸 |
| 駐輪場 |
有 300円/月 |
バイク置き場 |
有 2,000円/月 |
| ペット |
小型犬可・ 猫可 |
|
|
| 土地権利 |
所有権 |
敷地面積 |
- |
| 管理形態/管理員の勤務形態 |
全部委託/日勤(大和ライフネクスト株式会社) |
国土法届出 |
- |
| アピールポイント |
お探しの方には嬉しいペット(小型犬)相談可。広々とした延床面積72.13㎡の居室空間、更にドア開閉スペースを確保し住人の通行を妨げないアルコーブ型玄関口の住戸だから、ドア周りのゆとりがモノの出し入れにも便利です。また不在時の受け取りも楽々の宅配BOX付で、その上食後お皿を下げるのもスムーズなカウンターキッチン仕様なので、食後の片付けも楽ちんです。ちなみにお鍋とフライパンを使いながらヤカンもおけるコンロ3口以上付です。家族の安心拠点になる3LDK。是非その目でお確かめください。 |
| 建物名・部屋番号 |
プレミスト菊名 211 |
| リフォーム履歴 |
■水回り:2025年6月 キッチン ■内装:2025年6月 全室クロス張替え CF交換・ソフト巾木交換(トイレ・洗面所) ■その他:2025年6月 ガスコンロ交換、キッチンフード交換、洗濯機パン交換、浴室鏡・水栓交換、ルームクリーニング ※実施年月は最も古い履歴を表示 |
| リノベーション履歴 |
- |
| 瑕疵保証 |
- |
| 瑕疵保険 |
- |
| 評価・証明書 |
- |
| 備考 |
主要採光面:南東向き
施工会社:竹中工務店
用途地域:1種低層
|
| エネルギー消費性能 |
- |
| 断熱性能 |
- |
| 目安光熱費 |
- |
| バス・トイレ |
浴室暖房、追焚機能、シャワー付洗面化粧台、温水洗浄便座 |
| キッチン |
カウンターキッチン、浄水器、3口以上コンロ、2口コンロ、グリル |
| 設備・サービス |
モニター付オートロック、ウォークインクローゼット、床暖房、バイク置き場、収納スペース、室内洗濯機置場、クローゼット、オートロック、モニター付インターホン、ダブルロックドア、洗濯機置場、給湯、全居室フローリング、室内物干し、アルコーブ、クッションフロア、都市ガス、駐輪場、照明器具、火災警報器(報知機)、インターネット対応、ケーブルTV、CS、BS端子 |
| その他 |
宅配BOX、エレベーター2基以上、内廊下、エレベーター |
| 条件等 |
- |
現況 |
空家 |
| 引渡可能時期 |
相談 |
物件番号 |
6986805123 |
| 情報公開日 |
2025年7月8日 |
次回更新予定日 |
2025年10月30日 |
| ケータイ用バーコード |
- スマートフォンでこの物件を見る
- スマートフォンからもこの物件をご覧になれます。
|
※「-」と表示されている項目については、情報提供会社にご確認ください。
ここから簡単にお問い合わせをすることができます。
(SSLでの暗号化での送信を希望されるお客さまは
こちら
よりお問い合わせください)
お問い合わせを行う前に
「個人情報の取り扱いについて」を必ずお読みください。
「個人情報の取り扱いについて」に同意いただいた場合は「上記にご同意の上 確認画面へ進む」のボタンをクリックしてください。
個人情報の取り扱いについて
皆さまが送付された個人情報はアットホーム(株)のサーバを経由し、お問い合わせ先の不動産会社にメールまたはFAXにて転送されるためアットホーム(株)にも保管されます。アットホーム(株)で保管された個人情報の取り扱いについては、【こちら】をご覧ください。
また、本画面でご記入いただいた個人情報は、お問い合わせ先の不動産会社でも保管します。 お問い合わせ先の不動産会社が保管する個人情報の取り扱いについては、不動産会社に直接お問い合わせください。
東京都知事免許(4)第89881号 |
|---|
- 交通:
- JR山手線/池袋駅 徒歩3分
- 東京都豊島区西池袋3丁目22-14
- TEL:
- 03-6914-3245
- FAX:
- 03-6914-3244
- 所属団体:
- (公社)東京都宅地建物取引業協会会員(公社)首都圏不動産公正取引協議会加盟
取引態様:売主  - 00100200
|
- スマートフォンで
この不動産会社を見る

|
- 提携サイト等より掲載されている物件情報につきましては、不動産会社詳細情報にリンクされていないものがあります。
- 物件に関するお問合せは、物件詳細ページの「情報提供会社」に表示されている不動産会社へ直接お願いいたします。
- 間取図は、現況を優先させていただきます。
- 映像は物件の一部を撮影したものです。物件の契約にあたっての最終判断はご自身の判断に基づいて行ってください。
- 仲介手数料について

アットホームは物件情報の適正化に努めております。
内容に誤りがある場合にはこちらへご連絡ください。