愛知県岡崎市東大友町字筆屋(矢作橋駅)の中古マンション・新築マンション・分譲マンション:物件詳細
交通 所在地 |
駅徒歩 |
価格 |
構造 階建/階 |
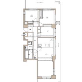
間取り 専有面積 |
物件種目 築年月 |
|
名鉄名古屋本線/矢作橋
愛知県岡崎市東大友町字筆屋
|
23分
|
2,090万円
|
RC
6階建 / 5階
|
3SLDK
77.78m²
|
中古マンション
1993年2月(築32年11ヶ月)
|
|
駐車場2台分、角部屋、南向き、3面採光、閑静な住宅街、前面棟無、管理人巡回
|
|
間取図
|
キッチン
|
<
その他の画像
>
|
| 交通 | 名鉄名古屋本線 矢作橋駅 徒歩23分 |
| 所在地 |
愛知県岡崎市東大友町字筆屋
|
| 物件種目 |
中古マンション |
| 価格 |
2,090万円 |
平米単価 |
26.88万円 |
| 管理費等 |
9,000円 |
修繕積立金 |
10,600円 |
| 借地期間・地代(月額) |
- |
権利金 |
- |
| 敷金または保証金 |
- / - |
維持費等 |
町内会費:770円/月、引落手数料:108円/月、積立保険料:1,200円/月 |
| その他一時金 |
- |
|
|
| 間取り |
3SLDK(洋 6.5・5.2・6) |
専有面積 |
77.78m²(内法) |
| 階建 / 階 |
6階建 / 5階 |
バルコニー |
46.00m² |
| 築年月 |
1993年2月(築32年11ヶ月)
|
建物構造 |
RC |
| 駐車場 |
有 14,300円/月 |
総戸数 |
47戸 |
| 駐輪場 |
有 無料 |
バイク置き場 |
有 無料 |
| ペット |
-
|
|
|
| 土地権利 |
所有権 |
敷地面積 |
1,976.85m² |
| 管理形態/管理員の勤務形態 |
全部委託/巡回(合人社計画研究所) |
国土法届出 |
- |
| アピールポイント |
ルーフバルコニーから岡崎の花火も見れます!
いつでも内覧可能!お気軽にお問い合わせください。
リフォーム箇所(キッチン・風呂・トイレ・洗面交換、天井壁床張り替え等) |
| 建物名・部屋番号 |
ガーデンヒルズ東大友 |
| リフォーム履歴 |
■水回り:2025年7月 キッチン、浴室、トイレ、洗面所、給排水管、給湯器 ■内装:2025年7月 内装全面(床・壁・天井・建具) ※実施年月は最も古い履歴を表示 |
| リノベーション履歴 |
2025年7月 キッチン・風呂・トイレ・洗面交換、天井壁床張り替え等 ※実施年月は最も古い履歴を表示 |
| 瑕疵保証 |
- |
| 瑕疵保険 |
- |
| 評価・証明書 |
- |
| 備考 |
主要採光面:南向き
工事完了予定日:2025年7月
用途地域:1種住居
延べ面積:3,869.01m²
2025年7月リフォーム完了。
敷地外駐車場2台引継可能。2026年2月1日より1台9,300円、2台18,600円に変更となります。
|
| エネルギー消費性能 |
- |
| 断熱性能 |
- |
| 目安光熱費 |
- |
| バス・トイレ |
オートバス、追焚機能 |
| キッチン |
食器洗浄乾燥機、3口以上コンロ |
| 設備・サービス |
全居室収納、バイク置き場、三面バルコニー、駐輪場 |
| その他 |
エレベーター |
| 条件等 |
- |
現況 |
空家 |
| 引渡可能時期 |
相談 |
物件番号 |
6986844713 |
| 情報公開日 |
2025年6月30日 |
次回更新予定日 |
2025年12月7日 |
| ケータイ用バーコード |
- スマートフォンでこの物件を見る
- スマートフォンからもこの物件をご覧になれます。
|
※「-」と表示されている項目については、情報提供会社にご確認ください。
ここから簡単にお問い合わせをすることができます。
(SSLでの暗号化での送信を希望されるお客さまは
こちら
よりお問い合わせください)
お問い合わせを行う前に
「個人情報の取り扱いについて」を必ずお読みください。
「個人情報の取り扱いについて」に同意いただいた場合は「上記にご同意の上 確認画面へ進む」のボタンをクリックしてください。
個人情報の取り扱いについて
皆さまが送付された個人情報はアットホーム(株)のサーバを経由し、お問い合わせ先の不動産会社にメールまたはFAXにて転送されるためアットホーム(株)にも保管されます。アットホーム(株)で保管された個人情報の取り扱いについては、【こちら】をご覧ください。
また、本画面でご記入いただいた個人情報は、お問い合わせ先の不動産会社でも保管します。 お問い合わせ先の不動産会社が保管する個人情報の取り扱いについては、不動産会社に直接お問い合わせください。
愛知県知事免許(1)第25197号 |
|---|
- 交通:
- 名鉄名古屋本線/男川駅 徒歩3分
- 愛知県岡崎市竜美新町39番地1 アリア三二レジデンス506
- TEL:
- 0564-47-7571
- FAX:
- 0564-47-7572
- 所属団体:
- (公社)愛知県宅地建物取引業協会会員東海不動産公正取引協議会加盟
取引態様:専任媒介  - 40410172
|
- スマートフォンで
この不動産会社を見る

|
- 提携サイト等より掲載されている物件情報につきましては、不動産会社詳細情報にリンクされていないものがあります。
- 物件に関するお問合せは、物件詳細ページの「情報提供会社」に表示されている不動産会社へ直接お願いいたします。
- 間取図は、現況を優先させていただきます。
- 映像は物件の一部を撮影したものです。物件の契約にあたっての最終判断はご自身の判断に基づいて行ってください。
- 仲介手数料について

アットホームは物件情報の適正化に努めております。
内容に誤りがある場合にはこちらへご連絡ください。