福岡県太宰府市朱雀2丁目(西鉄二日市駅)の中古マンション・新築マンション・分譲マンション:物件詳細
交通 所在地 |
駅徒歩 |
価格 |
構造 階建/階 |
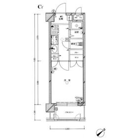
間取り 専有面積 |
物件種目 築年月 |
|
西鉄天神大牟田線/西鉄二日市
福岡県太宰府市朱雀2丁目
|
8分
|
260万円
|
RC
4階建 / 3階
|
1K
21.80m²
|
中古マンション
オーナーチェンジ
1991年3月(築34年10ヶ月)
|
|
管理人日勤
|
|
間取図
|
外観
|
<
その他の画像
>
|
| 交通 | 西鉄天神大牟田線 西鉄二日市駅 徒歩8分 |
|---|
| その他の交通 | 西鉄太宰府線 西鉄二日市駅 徒歩8分 |
| 所在地 |
福岡県太宰府市朱雀2丁目
|
| 物件種目 |
中古マンション |
| 価格 |
260万円 |
平米単価 |
11.93万円 |
| 管理費等 |
9,850円 |
修繕積立金 |
5,450円 |
| 借地期間・地代(月額) |
- |
権利金 |
- |
| 敷金または保証金 |
- / - |
維持費等 |
- |
| その他一時金 |
- |
|
|
| 間取り |
1K(洋 6.3) |
専有面積 |
21.80m²(壁芯) |
| 階建 / 階 |
4階建 / 3階 |
バルコニー |
3.61m² |
| 築年月 |
1991年3月(築34年10ヶ月)
|
建物構造 |
RC |
| 駐車場 |
空無 |
総戸数 |
39戸 |
| 駐輪場 |
空無 |
バイク置き場 |
空無 |
| ペット |
-
|
|
|
| 土地権利 |
所有権 |
敷地面積 |
- |
| 管理形態/管理員の勤務形態 |
全部委託/日勤(株式会社東急コミュニティー) |
国土法届出 |
- |
| アピールポイント |
■令和7年度の固定資産税・都市計画税/年額29,125円 ■賃借人情報/敷金2ヶ月分(62,000円)あり。社会人の方がお住まい。2011年12月から賃貸借契約を開始しており、2025年7月末時点で13年7ヶ月間お住まいです。 ■南東向き住戸 ■専有部分の修繕履歴/給湯器交換(時期は不明) ■共用部分の修繕履歴/別添資料あり。 ■近隣に買い物施設あり!コンビニは徒歩4分、イオン二日市は徒歩8分 ■近隣に大学・短大あり ■バス・トイレ別、室内洗濯機置場、洗面化粧台、クローゼット2つなど ■自転車置場/区画数は全10区画。空きは無し(2025年7月3日時点)。ステッカー(無料)を貼る必要あり。なお、使用料は月額100円です。 ■バイク置場:区画数は全3区画。空きは無し(2025年7月3日時点)。ステッカー(無料)は不要。なお、使用料は、排気量50cc以下が月額300円、その他が月額500円です。 ■弊社が当該お部屋の管理会社です。 ■当該お部屋は、弊社管理条件付き(弊社で管理継続)での売買です。 |
| 建物名・部屋番号 |
グレイス二日市壱番館 306 |
| リフォーム履歴 |
- |
| リノベーション履歴 |
- |
| 瑕疵保証 |
- |
| 瑕疵保険 |
- |
| 評価・証明書 |
- |
| 備考 |
主要採光面:南東向き
利回り:15.23%
年間予定賃料収入:39.6万円
|
| エネルギー消費性能 |
- |
| 断熱性能 |
- |
| 目安光熱費 |
- |
| バス・トイレ |
- |
| キッチン |
- |
| 設備・サービス |
バイク置き場、室内洗濯機置場、クローゼット、オートロック、給湯、全居室フローリング、プロパンガス、エアコン、駐輪場 |
| その他 |
- |
| 条件等 |
オーナーチェンジ |
現況 |
賃貸中 |
| 引渡可能時期 |
相談 |
物件番号 |
6986878839 |
| 仲介手数料 |
33万円 |
|
|
| 情報公開日 |
2025年11月10日 |
次回更新予定日 |
2025年12月22日 |
| ケータイ用バーコード |
- スマートフォンでこの物件を見る
- スマートフォンからもこの物件をご覧になれます。
|
※「-」と表示されている項目については、情報提供会社にご確認ください。
ここから簡単にお問い合わせをすることができます。
(SSLでの暗号化での送信を希望されるお客さまは
こちら
よりお問い合わせください)
お問い合わせを行う前に
「個人情報の取り扱いについて」を必ずお読みください。
「個人情報の取り扱いについて」に同意いただいた場合は「上記にご同意の上 確認画面へ進む」のボタンをクリックしてください。
個人情報の取り扱いについて
皆さまが送付された個人情報はアットホーム(株)のサーバを経由し、お問い合わせ先の不動産会社にメールまたはFAXにて転送されるためアットホーム(株)にも保管されます。アットホーム(株)で保管された個人情報の取り扱いについては、【こちら】をご覧ください。
また、本画面でご記入いただいた個人情報は、お問い合わせ先の不動産会社でも保管します。 お問い合わせ先の不動産会社が保管する個人情報の取り扱いについては、不動産会社に直接お問い合わせください。
福岡県知事免許(9)第9717号 |
|---|
- 交通:
- 西鉄天神大牟田線/春日原駅 徒歩2分
- 福岡県春日市春日原北町2丁目26-1 サントレモ春日原1F
- TEL:
- 092-585-1711
- FAX:
- 092-585-3118
- 所属団体:
- (公社)福岡県宅地建物取引業協会会員(一社)九州不動産公正取引協議会加盟
取引態様:専任媒介  - 80000197
|
- スマートフォンで
この不動産会社を見る

|
- 提携サイト等より掲載されている物件情報につきましては、不動産会社詳細情報にリンクされていないものがあります。
- 物件に関するお問合せは、物件詳細ページの「情報提供会社」に表示されている不動産会社へ直接お願いいたします。
- 間取図は、現況を優先させていただきます。
- 映像は物件の一部を撮影したものです。物件の契約にあたっての最終判断はご自身の判断に基づいて行ってください。
- 仲介手数料について

アットホームは物件情報の適正化に努めております。
内容に誤りがある場合にはこちらへご連絡ください。