神奈川県横浜市鶴見区上の宮1丁目(菊名駅)の中古マンション・新築マンション・分譲マンション:物件詳細
交通 所在地 |
駅徒歩 |
価格 |
構造 階建/階 |
間取り 専有面積 |
物件種目 築年月 |
|
東急東横線/菊名
神奈川県横浜市鶴見区上の宮1丁目
|
13分
|
5,980万円
|
RC
8階建 / 2階
|
3LDK
72.13m²
|
中古マンション
2016年3月(築9年8ヶ月)
|
|
ペット相談、管理人日勤
|
|
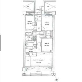
間取図
南東側が多く面している為、室内に満遍なく陽が入ります。
|
外観
長く愛着を持って住んで頂きたいからこそ飽きのこないシンプルな色目に仕上がっております。
|
<
その他の画像
>
|
| 交通 | 東急東横線 菊名駅 徒歩13分 |
|---|
| その他の交通 | JR横浜線 菊名駅 徒歩16分 東急東横線 妙蓮寺駅 徒歩19分 |
| 所在地 |
神奈川県横浜市鶴見区上の宮1丁目
|
| 物件種目 |
中古マンション |
| 価格 |
5,980万円 |
平米単価 |
82.91万円 |
| 管理費等 |
16,000円 |
修繕積立金 |
11,339円 |
| 借地期間・地代(月額) |
- |
権利金 |
- |
| 敷金または保証金 |
- / - |
維持費等 |
- |
| その他一時金 |
- |
|
|
| 間取り |
3LDK(洋 6・5・5) |
専有面積 |
72.13m²(壁芯) |
| 階建 / 階 |
8階建 / 2階 |
バルコニー |
9.95m² |
| 築年月 |
2016年3月(築9年8ヶ月)
|
建物構造 |
RC |
| 駐車場 |
有 17,000円/月 |
総戸数 |
83戸 |
| 駐輪場 |
有 300円/月 |
バイク置き場 |
有 1,000円/月 |
| ペット |
小型犬可 |
|
|
| 土地権利 |
所有権 |
敷地面積 |
- |
| 管理形態/管理員の勤務形態 |
全部委託/日勤(大和ライフネクスト株式会社) |
国土法届出 |
- |
| アピールポイント |
◆※キャンペーン内容※◆
●ご契約者様に10万円分のギフトカードをプレゼントしております。新生活に必要な家具にもお使いいただけます。
●弊社ではしつこい電話営業や突然の訪問等は行っておりません。
お客様のペースでストレスフリーな対応を心がけておりますので、どうぞお気軽にお問合せください。
◆※本物件の特徴※◆
●新規リノベーション済みにつき、新築のような仕様設備でお住みいただけます。
●20.3㎡の広々テラスは南西向きで陽当たり良好でございます。
●周辺にはスーパー等、コンビニ等お買い物施設。
●相鉄線【鶴ヶ峰】駅まで徒歩11分。横浜駅までアクセス良好。
陽当たりが良く、室内の広さや周辺環境も申し分ございません。
大変おすすめですので、是非1度ご覧くださいませ。
お問い合わせ心よりお待ちしております。 |
| 建物名・部屋番号 |
|
| リフォーム履歴 |
■水回り:2025年6月 キッチン、浴室、トイレ、洗面所 ■内装:2025年6月 全室クロス張替え、壁・天井(クロス・塗装等) ※実施年月は最も古い履歴を表示 |
| リノベーション履歴 |
- |
| 瑕疵保証 |
- |
| 瑕疵保険 |
- |
| 評価・証明書 |
- |
| 備考 |
主要採光面:南東向き
施工会社:竹中工務店株式会社
|
| エネルギー消費性能 |
- |
| 断熱性能 |
- |
| 目安光熱費 |
- |
| バス・トイレ |
浴室暖房、浴室乾燥機、オートバス、追焚機能 |
| キッチン |
カウンターキッチン、システムキッチン、食器乾燥機、浄水器、2口コンロ |
| 設備・サービス |
全居室収納、ウォークインクローゼット、バイク置き場、収納スペース、クローゼット、オートロック、モニター付インターホン、給湯、全居室フローリング、都市ガス、駐輪場 |
| その他 |
エレベーター |
| 条件等 |
- |
現況 |
空家 |
| 引渡可能時期 |
相談 |
物件番号 |
6986889723 |
| 情報公開日 |
2025年7月3日 |
次回更新予定日 |
2025年11月8日 |
| ケータイ用バーコード |
- スマートフォンでこの物件を見る
- スマートフォンからもこの物件をご覧になれます。
|
※「-」と表示されている項目については、情報提供会社にご確認ください。
| 周辺施設 |
スーパー文化堂馬場店 |
| 距離 |
1205m |
写真を見る |
| 周辺施設 |
東急ストア菊名店 |
| 距離 |
1076m |
写真を見る |
| 周辺施設 |
まいばすけっと菊名駅店 |
| 距離 |
1149m |
写真を見る |
| 周辺施設 |
セブンイレブン横浜北寺尾7丁目店 |
| 距離 |
398m |
写真を見る |
| 周辺施設 |
セブンイレブン横浜菊名3丁目店 |
| 距離 |
707m |
写真を見る |
| 周辺施設 |
五星会菊名記念病院 |
| 距離 |
690m |
写真を見る |
ここから簡単にお問い合わせをすることができます。
(SSLでの暗号化での送信を希望されるお客さまは
こちら
よりお問い合わせください)
お問い合わせを行う前に
「個人情報の取り扱いについて」を必ずお読みください。
「個人情報の取り扱いについて」に同意いただいた場合は「上記にご同意の上 確認画面へ進む」のボタンをクリックしてください。
個人情報の取り扱いについて
皆さまが送付された個人情報はアットホーム(株)のサーバを経由し、お問い合わせ先の不動産会社にメールまたはFAXにて転送されるためアットホーム(株)にも保管されます。アットホーム(株)で保管された個人情報の取り扱いについては、【こちら】をご覧ください。
また、本画面でご記入いただいた個人情報は、お問い合わせ先の不動産会社でも保管します。 お問い合わせ先の不動産会社が保管する個人情報の取り扱いについては、不動産会社に直接お問い合わせください。
神奈川県知事免許(3)第28410号 |
|---|
- 交通:
- ブルーライン/新横浜駅 徒歩8分
- 神奈川県横浜市港北区新横浜3丁目13-6 新横浜葉山第3ビル3F
- TEL:
- 045-471-6621
- FAX:
- 045-471-6622
- 所属団体:
- (公社)全日本不動産協会会員(公社)首都圏不動産公正取引協議会加盟
取引態様:媒介  - 00108432
|
- スマートフォンで
この不動産会社を見る

|
- 提携サイト等より掲載されている物件情報につきましては、不動産会社詳細情報にリンクされていないものがあります。
- 物件に関するお問合せは、物件詳細ページの「情報提供会社」に表示されている不動産会社へ直接お願いいたします。
- 間取図は、現況を優先させていただきます。
- 映像は物件の一部を撮影したものです。物件の契約にあたっての最終判断はご自身の判断に基づいて行ってください。
- 仲介手数料について

アットホームは物件情報の適正化に努めております。
内容に誤りがある場合にはこちらへご連絡ください。