兵庫県三田市武庫が丘5丁目(フラワータウン駅)の中古マンション・新築マンション・分譲マンション:物件詳細
交通 所在地 |
駅徒歩 |
価格 |
構造 階建/階 |
間取り 専有面積 |
物件種目 築年月 |
|
神戸電鉄公園都市線/フラワータウン
兵庫県三田市武庫が丘5丁目
|
5分
|
1,850万円
|
SRC
14階建 / 2階
|
4LDK
95.08m²
|
中古マンション
1993年3月(築32年10ヶ月)
|
|
ペット相談、フロントサービス、駐車場2台分、角部屋、南向き、24時間セキュリティー、100年コンクリート、高強度コンクリート、内装コンクリート、外壁コンクリート、バス1坪以上、全室2面採光、3面採光、2面採光、閑静な住宅街、オール電化、前面棟無、隣接建物距離2m以上、管理人常駐、IT重説対応物件、置き配スペース、高台
|
|
≪オープンルーム/モデルルーム≫【開催期間】2025年7月13日~ 【時間】11:00~17:00 内覧ご希望の方は事前にご予約をお願いいたします。
|
|
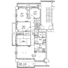
間取図
|
|
<
その他の画像
>
|
| 交通 | 神戸電鉄公園都市線 フラワータウン駅 徒歩5分 |
| 所在地 |
兵庫県三田市武庫が丘5丁目
|
| 物件種目 |
中古マンション |
| 価格 |
1,850万円 |
平米単価 |
19.46万円 |
| 管理費等 |
10,850円 |
修繕積立金 |
12,020円 |
| 借地期間・地代(月額) |
- |
権利金 |
- |
| 敷金または保証金 |
- / - |
維持費等 |
- |
| その他一時金 |
- |
|
|
| 間取り |
4LDK |
専有面積 |
95.08m²(壁芯) |
| 階建 / 階 |
14階建 / 2階 |
バルコニー |
20.53m² |
| 築年月 |
1993年3月(築32年10ヶ月)
|
建物構造 |
SRC |
| 駐車場 |
有 7,000円/月 |
総戸数 |
592戸 |
| 駐輪場 |
有 無料 |
バイク置き場 |
有 400円/月 |
| ペット |
小型犬可・ 猫可・ 50cm以下、2匹まで |
|
|
| 土地権利 |
所有権 |
敷地面積 |
27,814.20m² |
| 管理形態/管理員の勤務形態 |
全部委託/常駐(穴吹ハウジングサービス) |
国土法届出 |
- |
| アピールポイント |
お探しの方には嬉しいペット(小型犬)相談可/ゆったりめの延床面積95.08㎡の居室空間/高強度コンクリート採用なので、コンクリート断面を少なくできてスペースに余裕があります/皆でシェアするサポート役フロントサービス有の住居/落ち着いた暮らしが始められる閑静な住宅街の物件なので、穏やかに暮らされたい方にはお勧めです/100年コンクリート採用/家族の物語が生まれる4LDK/是非見学にお越しください |
| 建物名・部屋番号 |
|
| リフォーム履歴 |
- |
| リノベーション履歴 |
- |
| 瑕疵保証 |
- |
| 瑕疵保険 |
- |
| 評価・証明書 |
- |
| 備考 |
主要採光面:南向き
施工会社:竹中工務店、その他5社
用途地域:1種中高
IT重説対応物件
反転タイプです。
弊社の預かり物件を売却いただく際の条件として、客付業者様には重要事項説明書の作成の補助をお願いしております。ご不明な点がございましたら、事前にお問い合わせください。
|
| エネルギー消費性能 |
- |
| 断熱性能 |
- |
| 目安光熱費 |
- |
| バス・トイレ |
オートバス、シャワー付洗面化粧台、温水洗浄便座 |
| キッチン |
カウンターキッチン、オープンキッチン、システムキッチン、3口以上コンロ |
| 設備・サービス |
モニター付オートロック、全居室収納、ウォークインクローゼット、バイク置き場、三面バルコニー、収納スペース、室内洗濯機置場、シューズインクローゼット、クローゼット、オートロック、モニター付インターホン、ディンプルキー、シャッター雨戸、出窓、都市ガス、ワイドバルコニー、二面バルコニー、駐輪場、火災警報器(報知機)、インターネット対応、光ファイバー、CATVインターネット、ケーブルTV、CS、BS端子、複層ガラス |
| その他 |
ペット用施設、共用シアタールーム、敷地内公園、敷地内AED有、エレベーター2基以上、共用ゲストルーム、共用パーティルーム、来客用駐車場、車寄せスペース、内廊下、エレベーター |
| 条件等 |
- |
現況 |
空家 |
| 引渡可能時期 |
即時 |
物件番号 |
6986899384 |
| 仲介手数料 |
売買代金の3%+6万円 |
|
|
| 情報公開日 |
2025年7月11日 |
次回更新予定日 |
2025年12月8日 |
| ケータイ用バーコード |
- スマートフォンでこの物件を見る
- スマートフォンからもこの物件をご覧になれます。
|
※「-」と表示されている項目については、情報提供会社にご確認ください。
| 周辺施設 |
スーパーマーケットNISHIYAMA三田フラワータウン店 |
| 距離 |
268m |
| 周辺施設 |
アルカドラッグフラワータウン店 |
| 距離 |
221m |
| 周辺施設 |
湊川短期大学附属北摂第一幼稚園 |
| 距離 |
240m |
| 周辺施設 |
三田フラワータウン駅前郵便局 |
| 距離 |
435m |
ここから簡単にお問い合わせをすることができます。
(SSLでの暗号化での送信を希望されるお客さまは
こちら
よりお問い合わせください)
お問い合わせを行う前に
「個人情報の取り扱いについて」を必ずお読みください。
「個人情報の取り扱いについて」に同意いただいた場合は「上記にご同意の上 確認画面へ進む」のボタンをクリックしてください。
個人情報の取り扱いについて
皆さまが送付された個人情報はアットホーム(株)のサーバを経由し、お問い合わせ先の不動産会社にメールまたはFAXにて転送されるためアットホーム(株)にも保管されます。アットホーム(株)で保管された個人情報の取り扱いについては、【こちら】をご覧ください。
また、本画面でご記入いただいた個人情報は、お問い合わせ先の不動産会社でも保管します。 お問い合わせ先の不動産会社が保管する個人情報の取り扱いについては、不動産会社に直接お問い合わせください。
兵庫県知事免許(1)第12565号 |
|---|
- 交通:
- 神戸電鉄粟生線/鈴蘭台西口駅 徒歩5分
- 兵庫県神戸市北区鈴蘭台西町1丁目19-9 サングレイ西鈴101
- TEL:
- 078-982-4311
- 所属団体:
- (公社)全日本不動産協会会員(公社)近畿地区不動産公正取引協議会加盟
取引態様:専任媒介  - 50110743
|
- スマートフォンで
この不動産会社を見る

|
- 提携サイト等より掲載されている物件情報につきましては、不動産会社詳細情報にリンクされていないものがあります。
- 物件に関するお問合せは、物件詳細ページの「情報提供会社」に表示されている不動産会社へ直接お願いいたします。
- 間取図は、現況を優先させていただきます。
- 映像は物件の一部を撮影したものです。物件の契約にあたっての最終判断はご自身の判断に基づいて行ってください。
- 仲介手数料について

アットホームは物件情報の適正化に努めております。
内容に誤りがある場合にはこちらへご連絡ください。