新潟県上越市本町6丁目(高田駅)の中古マンション・新築マンション・分譲マンション:物件詳細
交通 所在地 |
駅徒歩 |
価格 |
構造 階建/階 |
間取り 専有面積 |
物件種目 築年月 |
妙高はねうまライン/高田
新潟県上越市本町6丁目
|
5分
|
1,100万円
|
SRC
10階建 / 2階
|
2SLDK
67.98m²
|
中古マンション
1987年2月(築38年9ヶ月)
|
管理人日勤
|
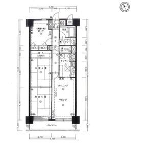
間取図
間取り図
|
外観
正面
|
その他の画像
|
交通 | 妙高はねうまライン 高田駅 徒歩5分 |
所在地 |
新潟県上越市本町6丁目
|
物件種目 |
中古マンション |
価格 |
1,100万円 |
平米単価 |
16.19万円 |
管理費等 |
11,500円 |
修繕積立金 |
11,400円 |
借地期間・地代(月額) |
- |
権利金 |
- |
敷金または保証金 |
- / - |
維持費等 |
CATV聴視料:880円/月、町内会費:1,000円/月 |
その他一時金 |
- |
|
|
間取り |
2SLDK(和 6・6 LDK 12.5 S 5) |
専有面積 |
67.98m²(壁芯) |
階建 / 階 |
10階建 / 2階 |
バルコニー |
2.34m² |
築年月 |
1987年2月(築38年9ヶ月)
|
建物構造 |
SRC |
駐車場 |
有 12,000円/月 |
総戸数 |
- |
駐輪場 |
- |
バイク置き場 |
- |
ペット |
-
|
|
|
土地権利 |
所有権 |
敷地面積 |
893.45m² |
管理形態/管理員の勤務形態 |
一部委託/日勤(合人社) |
国土法届出 |
- |
アピールポイント |
自然に団らんが生まれる2SLDK。是非見学にお越しください。 |
建物名・部屋番号 |
|
リフォーム履歴 |
■水回り:2025年8月 浴室、トイレ、給湯器 ■内装:2025年8月 壁クロス張替、LD・廊下タイルカーペット張替、キッチン・トイレ・洗面所床張替、ドア塗装、畳表替え、襖張替 ■共用部の大規模修繕工事:2025年8月 外装 ※実施年月は最も古い履歴を表示 |
リノベーション履歴 |
- |
瑕疵保証 |
- |
瑕疵保険 |
- |
評価・証明書 |
- |
備考 |
主要採光面:南西向き
用途地域:商業地域
内装、トイレ、浴室乾燥機、給湯リフォーム
|
エネルギー消費性能 |
- |
断熱性能 |
- |
目安光熱費 |
- |
バス・トイレ |
浴室乾燥機、追焚機能、温水洗浄便座 |
キッチン |
3口以上コンロ |
設備・サービス |
室内洗濯機置場、給湯、都市ガス、照明器具、ケーブルTV |
その他 |
内廊下、エレベーター |
条件等 |
- |
現況 |
空家 |
引渡可能時期 |
即時 |
物件番号 |
6986925799 |
情報公開日 |
2025年7月9日 |
次回更新予定日 |
2025年10月28日 |
ケータイ用バーコード |
- スマートフォンでこの物件を見る
- スマートフォンからもこの物件をご覧になれます。
|
※「-」と表示されている項目については、情報提供会社にご確認ください。
周辺施設 |
セブンイレブン上越本町7丁目店 |
距離 |
451m |
ここから簡単にお問い合わせをすることができます。
(SSLでの暗号化での送信を希望されるお客さまは
こちら
よりお問い合わせください)
お問い合わせを行う前に
「個人情報の取り扱いについて」を必ずお読みください。
「個人情報の取り扱いについて」に同意いただいた場合は「上記にご同意の上 確認画面へ進む」のボタンをクリックしてください。
個人情報の取り扱いについて
皆さまが送付された個人情報はアットホーム(株)のサーバを経由し、お問い合わせ先の不動産会社にメールまたはFAXにて転送されるためアットホーム(株)にも保管されます。アットホーム(株)で保管された個人情報の取り扱いについては、【こちら】をご覧ください。
また、本画面でご記入いただいた個人情報は、お問い合わせ先の不動産会社でも保管します。 お問い合わせ先の不動産会社が保管する個人情報の取り扱いについては、不動産会社に直接お問い合わせください。
新潟県知事免許(11)第2765号 |
---|
- 交通:
- JR信越本線/直江津駅
- 新潟県上越市西本町2丁目3-21
- TEL:
- 025-544-2724
- 所属団体:
- (公社)新潟県宅地建物取引業協会会員(公社)首都圏不動産公正取引協議会加盟
取引態様:売主  - 00268238
|
- スマートフォンで
この不動産会社を見る

|
- 提携サイト等より掲載されている物件情報につきましては、不動産会社詳細情報にリンクされていないものがあります。
- 物件に関するお問合せは、物件詳細ページの「情報提供会社」に表示されている不動産会社へ直接お願いいたします。
- 間取図は、現況を優先させていただきます。
- 映像は物件の一部を撮影したものです。物件の契約にあたっての最終判断はご自身の判断に基づいて行ってください。
- 仲介手数料について

アットホームは物件情報の適正化に努めております。
内容に誤りがある場合にはこちらへご連絡ください。