埼玉県上尾市柏座3丁目(上尾駅)の中古マンション・新築マンション・分譲マンション:物件詳細
交通 所在地 |
駅徒歩 |
価格 |
構造 階建/階 |
間取り 専有面積 |
物件種目 築年月 |
JR高崎線/上尾
埼玉県上尾市柏座3丁目
|
7分
|
2,550万円
|
SRC
11階建 / 5階
|
4LDK
67.83m²
|
中古マンション
1986年6月(築39年5ヶ月)
|
ペット相談、外観タイル張り、管理人日勤
|
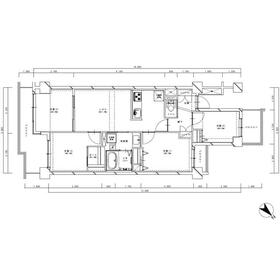
間取図
|
外観
|
<
その他の画像
>
|
交通 | JR高崎線 上尾駅 徒歩7分 |
---|
その他の交通 | 湘南新宿ライン(前橋〜小田原) 上尾駅 徒歩7分 JR高崎線 北上尾駅 徒歩18分 |
所在地 |
埼玉県上尾市柏座3丁目
|
物件種目 |
中古マンション |
価格 |
2,550万円 |
平米単価 |
37.60万円 |
管理費等 |
6,650円 |
修繕積立金 |
15,090円 |
借地期間・地代(月額) |
- |
権利金 |
- |
敷金または保証金 |
- / - |
維持費等 |
- |
その他一時金 |
- |
|
|
間取り |
4LDK(洋 4.2・4.9・5.2・5.2 LDK 11.7) |
専有面積 |
67.83m²(壁芯) |
階建 / 階 |
11階建 / 5階 |
バルコニー |
12.83m² |
築年月 |
1986年6月(築39年5ヶ月)
|
建物構造 |
SRC |
駐車場 |
空無 |
総戸数 |
255戸 |
駐輪場 |
- |
バイク置き場 |
- |
ペット |
相談 |
|
|
土地権利 |
所有権 |
敷地面積 |
- |
管理形態/管理員の勤務形態 |
全部委託/日勤(大和ライフネクスト株式会社) |
国土法届出 |
- |
アピールポイント |
● 255戸のビッグコミュニティ!!
● LDKと洋室を繋げ、16.6帖のLDKとしても使用可能!
● フルリノベーション済 (2021年7月ごろ)
● 三口システムキッチン、食洗器、浴室乾燥機、三面鏡独立洗面台、WICなど設備充実♪
● 南東向きで陽当たりも良好です♪
● エアコン2021年製 (LDK) |
建物名・部屋番号 |
パーク上尾弐番館 |
リフォーム履歴 |
■水回り:2021年7月 キッチン、浴室、トイレ、洗面所 ■内装:2021年7月 内装全面(床・壁・天井・建具) ※実施年月は最も古い履歴を表示 |
リノベーション履歴 |
2021年7月 3LDK→4LDKへ間取変更、壁付けキッチン→対面キッチン、食器洗浄機導入、ユニットバス交換、各種設備アップ など ※実施年月は最も古い履歴を表示 |
瑕疵保証 |
- |
瑕疵保険 |
- |
評価・証明書 |
- |
備考 |
主要採光面:南東向き
施工会社:株式会社長谷川工務店
用途地域:2種住居
※自治会費:2,000円/年 団地修繕積立金:100年/月
|
エネルギー消費性能 |
- |
断熱性能 |
- |
目安光熱費 |
- |
バス・トイレ |
浴室暖房、浴室乾燥機、オートバス、追焚機能、高温差湯式、シャワー付洗面化粧台、温水洗浄便座 |
キッチン |
カウンターキッチン、システムキッチン、食器洗浄乾燥機、浄水器、3口以上コンロ |
設備・サービス |
ウォークインクローゼット、収納スペース、室内洗濯機置場、クローゼット、モニター付インターホン、ダブルロックドア、防犯カメラ、洗濯機置場、給湯、全居室フローリング、アルコーブ、都市ガス、エアコン、ダウンライト、間接照明、照明器具 |
その他 |
エレベーター |
条件等 |
- |
現況 |
空家 |
引渡可能時期 |
即時 |
物件番号 |
6987046306 |
仲介手数料 |
売買代金の3%+6万円 |
|
|
情報公開日 |
2025年7月29日 |
次回更新予定日 |
2025年11月2日 |
ケータイ用バーコード |
- スマートフォンでこの物件を見る
- スマートフォンからもこの物件をご覧になれます。
|
※「-」と表示されている項目については、情報提供会社にご確認ください。
ここから簡単にお問い合わせをすることができます。
(SSLでの暗号化での送信を希望されるお客さまは
こちら
よりお問い合わせください)
お問い合わせを行う前に
「個人情報の取り扱いについて」を必ずお読みください。
「個人情報の取り扱いについて」に同意いただいた場合は「上記にご同意の上 確認画面へ進む」のボタンをクリックしてください。
個人情報の取り扱いについて
皆さまが送付された個人情報はアットホーム(株)のサーバを経由し、お問い合わせ先の不動産会社にメールまたはFAXにて転送されるためアットホーム(株)にも保管されます。アットホーム(株)で保管された個人情報の取り扱いについては、【こちら】をご覧ください。
また、本画面でご記入いただいた個人情報は、お問い合わせ先の不動産会社でも保管します。 お問い合わせ先の不動産会社が保管する個人情報の取り扱いについては、不動産会社に直接お問い合わせください。
東京都知事免許(2)第99678号 |
---|
- 交通:
- 都営大江戸線/牛込神楽坂駅 徒歩1分
- 東京都新宿区箪笥町38 山文ビル4F
- TEL:
- 03-5261-3930
- FAX:
- 03-5261-3932
- 所属団体:
- (公社)東京都宅地建物取引業協会会員(公社)首都圏不動産公正取引協議会加盟
取引態様:一般媒介  - 00261637
|
- スマートフォンで
この不動産会社を見る

|
- 提携サイト等より掲載されている物件情報につきましては、不動産会社詳細情報にリンクされていないものがあります。
- 物件に関するお問合せは、物件詳細ページの「情報提供会社」に表示されている不動産会社へ直接お願いいたします。
- 間取図は、現況を優先させていただきます。
- 映像は物件の一部を撮影したものです。物件の契約にあたっての最終判断はご自身の判断に基づいて行ってください。
- 仲介手数料について

アットホームは物件情報の適正化に努めております。
内容に誤りがある場合にはこちらへご連絡ください。