広島県広島市西区井口4丁目(修大協創中高前駅)の中古マンション・新築マンション・分譲マンション:物件詳細
交通 所在地 |
駅徒歩 |
価格 |
構造 階建/階 |
間取り 専有面積 |
物件種目 築年月 |
広島電鉄宮島線/修大協創中高前
広島県広島市西区井口4丁目
|
5分
|
4,400万円
|
RC
20階建 / 15階
|
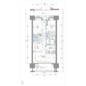
3LDK
71.18m²
|
中古マンション
2022年1月(築3年10ヶ月)
|
ペット相談、南向き、管理人日勤
|
間取図
|
眺望
|
<
その他の画像
>
|
交通 | 広島電鉄宮島線 修大協創中高前駅 徒歩5分 |
---|
その他の交通 | JR山陽本線 五日市駅 徒歩12分 広島電鉄宮島線 広電五日市駅 徒歩13分 |
所在地 |
広島県広島市西区井口4丁目
|
物件種目 |
中古マンション |
価格 |
4,400万円 |
平米単価 |
61.82万円 |
管理費等 |
6,800円 |
修繕積立金 |
4,200円 |
借地期間・地代(月額) |
- |
権利金 |
- |
敷金または保証金 |
- / - |
維持費等 |
ネット・ゆいぽた料:2,475円/月 |
その他一時金 |
- |
|
|
間取り |
3LDK(洋 4・5.5・6.5 LDK 15.4) |
専有面積 |
71.18m²(壁芯) |
階建 / 階 |
20階建 / 15階 |
バルコニー |
11.30m² |
築年月 |
2022年1月(築3年10ヶ月)
|
建物構造 |
RC |
駐車場 |
有 5,000円/月 |
総戸数 |
111戸 |
駐輪場 |
有 300円/月 |
バイク置き場 |
有 1,000円/月 |
ペット |
小型犬可・ 猫可・ 体長50㎝、体重約10㎏程度 |
|
|
土地権利 |
所有権 |
敷地面積 |
- |
管理形態/管理員の勤務形態 |
全部委託/日勤 |
国土法届出 |
- |
アピールポイント |
15階・南向きで陽当り・眺望・通風良好!前面棟なしで開放感ある暮らしを実現。LDK15帖以上+オールフローリング。全居室収納+WIC付で収納も充実。食洗機や浴室乾燥機など設備も整い、駅・スーパーも徒歩圏の平坦地で生活便利。宅配ボックス、バイク置場・駐輪場も完備! |
建物名・部屋番号 |
パークナード井口 |
リフォーム履歴 |
- |
リノベーション履歴 |
- |
瑕疵保証 |
- |
瑕疵保険 |
- |
評価・証明書 |
- |
備考 |
主要採光面:南向き
用途地域:近隣商業、1種住居
|
エネルギー消費性能 |
- |
断熱性能 |
- |
目安光熱費 |
- |
バス・トイレ |
ミストサウナ、浴室暖房、浴室乾燥機、追焚機能、シャワー付洗面化粧台、温水洗浄便座、タンクレストイレ |
キッチン |
カウンターキッチン、システムキッチン、食器洗浄乾燥機、3口以上コンロ |
設備・サービス |
モニター付オートロック、バイク置き場、収納スペース、室内洗濯機置場、クローゼット、オートロック、モニター付インターホン、ダブルロックドア、洗濯機置場、都市ガス、駐輪場、人感センサー付照明、ダウンライト、インターネット対応、CS、BS端子 |
その他 |
宅配BOX、エレベーター |
条件等 |
- |
現況 |
空家 |
引渡可能時期 |
相談 |
物件番号 |
6987098605 |
仲介手数料 |
売買代金の3%+6万円 |
|
|
情報公開日 |
2025年7月23日 |
次回更新予定日 |
2025年10月25日 |
ケータイ用バーコード |
- スマートフォンでこの物件を見る
- スマートフォンからもこの物件をご覧になれます。
|
※「-」と表示されている項目については、情報提供会社にご確認ください。
周辺施設 |
マックスバリュエクスプレス藤垂園店 |
距離 |
621m |
周辺施設 |
セブンイレブン広島井口5丁目店 |
距離 |
381m |
周辺施設 |
私立広島修道大学ひろしま協創高校 |
距離 |
224m |
周辺施設 |
広島信用金庫五日市支店五日市駅前出張所 |
距離 |
729m |
周辺施設 |
もみじ銀行五日市駅前支店 |
距離 |
841m |
ここから簡単にお問い合わせをすることができます。
(SSLでの暗号化での送信を希望されるお客さまは
こちら
よりお問い合わせください)
お問い合わせを行う前に
「個人情報の取り扱いについて」を必ずお読みください。
「個人情報の取り扱いについて」に同意いただいた場合は「上記にご同意の上 確認画面へ進む」のボタンをクリックしてください。
個人情報の取り扱いについて
皆さまが送付された個人情報はアットホーム(株)のサーバを経由し、お問い合わせ先の不動産会社にメールまたはFAXにて転送されるためアットホーム(株)にも保管されます。アットホーム(株)で保管された個人情報の取り扱いについては、【こちら】をご覧ください。
また、本画面でご記入いただいた個人情報は、お問い合わせ先の不動産会社でも保管します。 お問い合わせ先の不動産会社が保管する個人情報の取り扱いについては、不動産会社に直接お問い合わせください。
広島県知事免許(1)第11476号 |
---|
- 交通:
- 広島電鉄宇品線/鷹野橋駅 徒歩5分
- 広島県広島市中区大手町5丁目15-21 302
- TEL:
- 082-577-3022
- 所属団体:
- (公社)全日本不動産協会会員中国地区不動産公正取引協議会加盟
取引態様:媒介  - 50109638
|
- スマートフォンで
この不動産会社を見る

|
- 提携サイト等より掲載されている物件情報につきましては、不動産会社詳細情報にリンクされていないものがあります。
- 物件に関するお問合せは、物件詳細ページの「情報提供会社」に表示されている不動産会社へ直接お願いいたします。
- 間取図は、現況を優先させていただきます。
- 映像は物件の一部を撮影したものです。物件の契約にあたっての最終判断はご自身の判断に基づいて行ってください。
- 仲介手数料について

アットホームは物件情報の適正化に努めております。
内容に誤りがある場合にはこちらへご連絡ください。