福岡県福岡市城南区樋井川2丁目の中古マンション・新築マンション・分譲マンション:物件詳細
交通 所在地 |
駅徒歩 |
価格 |
構造 階建/階 |
間取り 専有面積 |
物件種目 築年月 |
【バス】長尾公園 停歩3分
福岡県福岡市城南区樋井川2丁目
|
-
|
1,500万円
|
RC
7階建 / 6階
|
4LDK
101.26m²
|
中古マンション
オーナーチェンジ
1989年11月(築36年)
|
楽器相談、角部屋、南向き、3面採光、外観タイル張り、管理人巡回
|
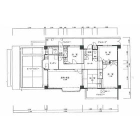
間取図
|
外観
|
<
その他の画像
>
|
交通 | 【バス】 長尾公園 停歩3分 |
---|
その他の交通 | 地下鉄七隈線 福大前駅 徒歩30分 |
所在地 |
福岡県福岡市城南区樋井川2丁目
|
物件種目 |
中古マンション |
価格 |
1,500万円 |
平米単価 |
14.82万円 |
管理費等 |
14,120円 |
修繕積立金 |
25,120円 |
借地期間・地代(月額) |
- |
権利金 |
- |
敷金または保証金 |
- / - |
維持費等 |
- |
その他一時金 |
- |
|
|
間取り |
4LDK(和 6 洋 7.1・6.6・6.6 LDK 15.8) |
専有面積 |
101.26m²(壁芯) |
階建 / 階 |
7階建 / 6階 |
バルコニー |
50.70m² |
築年月 |
1989年11月(築36年)
|
建物構造 |
RC |
駐車場 |
無 |
総戸数 |
17戸 |
駐輪場 |
有 無料 |
バイク置き場 |
有 無料 |
ペット |
-
|
|
|
土地権利 |
所有権 |
敷地面積 |
- |
管理形態/管理員の勤務形態 |
全部委託/巡回(株式会社タッケン管理サービス) |
国土法届出 |
- |
アピールポイント |
※管理費は令和7年10月分から14,120円に改定されます。広々とした延床面積101.26㎡の居室空間、更に突き抜ける空間を堪能できるルーフバルコニー付なので、夜空を独り占めすることもできます。また開放感に満ちた3面バルコニーのある住戸で、その上南向なので、1日を通して日が当たりやすく冬場もあったか。ちなみに1日を通して常に自然光を室内に取り入れられる3面採光の住戸です。家族の物語が生まれる4LDK。実際の空間をご自身で体感ください。 |
建物名・部屋番号 |
長住南エクセル25 602 |
リフォーム履歴 |
■共用部の大規模修繕工事:2018年3月 屋上防水工事、共用廊下防水工事、吹付外壁面塗装工事等 ※実施年月は最も古い履歴を表示 |
リノベーション履歴 |
- |
瑕疵保証 |
- |
瑕疵保険 |
- |
評価・証明書 |
- |
備考 |
主要採光面:南向き
利回り:8.00%
年間予定賃料収入:120万円
|
エネルギー消費性能 |
- |
断熱性能 |
- |
目安光熱費 |
- |
バス・トイレ |
温水洗浄便座、浴室に窓あり |
キッチン |
システムキッチン、独立型キッチン、3口以上コンロ、グリル |
設備・サービス |
バイク置き場、三面バルコニー、収納スペース、室内洗濯機置場、クローゼット、オートロック、ディンプルキー、給湯、アルコーブ、都市ガス、ルーフバルコニー、駐輪場、ケーブルTV、BS端子 |
その他 |
エレベーター |
条件等 |
オーナーチェンジ |
現況 |
賃貸中 |
引渡可能時期 |
即時 |
物件番号 |
6987102726 |
情報公開日 |
2025年7月24日 |
次回更新予定日 |
2025年10月31日 |
ケータイ用バーコード |
- スマートフォンでこの物件を見る
- スマートフォンからもこの物件をご覧になれます。
|
※「-」と表示されている項目については、情報提供会社にご確認ください。
周辺施設 |
ファミリーマート神松寺二丁目店 |
距離 |
416m |
周辺施設 |
ミニストップ福岡長尾3丁目店 |
距離 |
517m |
周辺施設 |
セブンイレブン福岡長尾3丁目店 |
距離 |
692m |
ここから簡単にお問い合わせをすることができます。
(SSLでの暗号化での送信を希望されるお客さまは
こちら
よりお問い合わせください)
お問い合わせを行う前に
「個人情報の取り扱いについて」を必ずお読みください。
「個人情報の取り扱いについて」に同意いただいた場合は「上記にご同意の上 確認画面へ進む」のボタンをクリックしてください。
個人情報の取り扱いについて
皆さまが送付された個人情報はアットホーム(株)のサーバを経由し、お問い合わせ先の不動産会社にメールまたはFAXにて転送されるためアットホーム(株)にも保管されます。アットホーム(株)で保管された個人情報の取り扱いについては、【こちら】をご覧ください。
また、本画面でご記入いただいた個人情報は、お問い合わせ先の不動産会社でも保管します。 お問い合わせ先の不動産会社が保管する個人情報の取り扱いについては、不動産会社に直接お問い合わせください。
(株)アークトラスト福岡県知事免許(4)第15773号 |
---|
- 交通:
- 地下鉄空港線/中洲川端駅 徒歩3分
- 福岡県福岡市博多区店屋町6-17 ランダムスクウェアⅡ 1・2階
- TEL:
- 092-263-6015
- FAX:
- 092-263-6016
- 所属団体:
- (公社)福岡県宅地建物取引業協会会員(一社)九州不動産公正取引協議会加盟
取引態様:一般媒介 |
- 提携サイト等より掲載されている物件情報につきましては、不動産会社詳細情報にリンクされていないものがあります。
- 物件に関するお問合せは、物件詳細ページの「情報提供会社」に表示されている不動産会社へ直接お願いいたします。
- 間取図は、現況を優先させていただきます。
- 映像は物件の一部を撮影したものです。物件の契約にあたっての最終判断はご自身の判断に基づいて行ってください。
- 仲介手数料について

アットホームは物件情報の適正化に努めております。
内容に誤りがある場合にはこちらへご連絡ください。