東京都多摩市鶴牧3丁目(京王多摩センター駅)の中古マンション・新築マンション・分譲マンション:物件詳細
交通 所在地 |
駅徒歩 |
価格 |
構造 階建/階 |
間取り 専有面積 |
物件種目 築年月 |
京王相模原線/京王多摩センター
東京都多摩市鶴牧3丁目
|
13分
|
6,580万円
|
RC
地上15階地下1階建 / 4階
|
4LDK
95.62m²
|
中古マンション
2017年2月(築8年9ヶ月)
|
ペット相談、常時ゴミ出し可能、駐車場2台分、角部屋、バリアフリー、閑静な住宅街、隣接建物距離2m以上、管理人日勤、置き配スペース
|
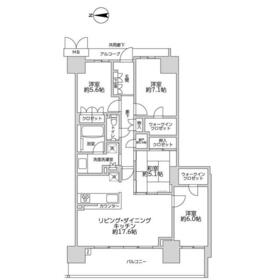
間取図
|
外観
|
その他の画像
|
交通 | 京王相模原線 京王多摩センター駅 徒歩13分 |
---|
その他の交通 | 小田急多摩線 唐木田駅 徒歩13分 多摩モノレール 多摩センター駅 徒歩10分 |
所在地 |
東京都多摩市鶴牧3丁目
|
物件種目 |
中古マンション |
価格 |
6,580万円 |
平米単価 |
68.82万円 |
管理費等 |
14,150円 |
修繕積立金 |
11,470円 |
借地期間・地代(月額) |
- |
権利金 |
- |
敷金または保証金 |
- / - |
維持費等 |
- |
その他一時金 |
- |
|
|
間取り |
4LDK(和 5.1 洋 5.6・7.1・6 LDK 17.6) |
専有面積 |
95.62m²(壁芯) |
階建 / 階 |
地上15階地下1階建 / 4階 |
バルコニー |
18.18m² |
築年月 |
2017年2月(築8年9ヶ月)
|
建物構造 |
RC |
駐車場 |
有 2,500円/月 |
総戸数 |
300戸 |
駐輪場 |
無 |
バイク置き場 |
有 800円/月 |
ペット |
相談 |
|
|
土地権利 |
所有権 |
敷地面積 |
8,368.80m² |
管理形態/管理員の勤務形態 |
全部委託/日勤(阪急阪神ハウジングサポート) |
国土法届出 |
- |
アピールポイント |
お探しの方には嬉しいペット相談可。広々とした延床面積95.62㎡の居室空間、更にゆとりあるスペースでドアを開閉できるアルコーブ型玄関口の住戸だから、ドア外のスペースがプライベート感をちょっとあげます。また閑静な住宅街の住戸で、その上お出かけの多い人も助かる常時ゴミ出し可の住戸だから、ゴミ収集の時間や曜日に縛られません。ちなみに配膳がラクなカウンターキッチン付です。家族の物語が生まれる4LDK。ご案内いたしますのでお気軽にご連絡ください。 |
建物名・部屋番号 |
ジオ多摩センター |
リフォーム履歴 |
- |
リノベーション履歴 |
- |
瑕疵保証 |
- |
瑕疵保険 |
- |
評価・証明書 |
- |
備考 |
主要採光面:西向き
用途地域:2種住居
|
エネルギー消費性能 |
- |
断熱性能 |
- |
目安光熱費 |
- |
バス・トイレ |
浴室暖房、浴室乾燥機、オートバス、追焚機能、シャワー付洗面化粧台、シャワールーム、温水洗浄便座 |
キッチン |
カウンターキッチン、ディスポーザー、3口以上コンロ |
設備・サービス |
モニター付オートロック、全居室収納、ウォークインクローゼット、床暖房、バイク置き場、収納スペース、室内洗濯機置場、シューズインクローゼット、クローゼット、オートロック、モニター付インターホン、ディンプルキー、ダブルロックドア、洗濯機置場、給湯、アルコーブ、都市ガス、人感センサー付照明、ダウンライト、インターネット対応、ケーブルTV、複層ガラス |
その他 |
来客用駐車場、エレベーター |
条件等 |
- |
現況 |
所有者居住中 |
引渡可能時期 |
相談 |
物件番号 |
6987113192 |
情報公開日 |
2025年7月29日 |
次回更新予定日 |
2025年11月2日 |
ケータイ用バーコード |
- スマートフォンでこの物件を見る
- スマートフォンからもこの物件をご覧になれます。
|
※「-」と表示されている項目については、情報提供会社にご確認ください。
ここから簡単にお問い合わせをすることができます。
(SSLでの暗号化での送信を希望されるお客さまは
こちら
よりお問い合わせください)
お問い合わせを行う前に
「個人情報の取り扱いについて」を必ずお読みください。
「個人情報の取り扱いについて」に同意いただいた場合は「上記にご同意の上 確認画面へ進む」のボタンをクリックしてください。
個人情報の取り扱いについて
皆さまが送付された個人情報はアットホーム(株)のサーバを経由し、お問い合わせ先の不動産会社にメールまたはFAXにて転送されるためアットホーム(株)にも保管されます。アットホーム(株)で保管された個人情報の取り扱いについては、【こちら】をご覧ください。
また、本画面でご記入いただいた個人情報は、お問い合わせ先の不動産会社でも保管します。 お問い合わせ先の不動産会社が保管する個人情報の取り扱いについては、不動産会社に直接お問い合わせください。
東京都知事免許(4)第88964号 |
---|
- 交通:
- 京王線/府中駅 徒歩12分
- 東京都府中市晴見町1丁目10-1
- TEL:
- 042-316-8896
- FAX:
- 042-316-8908
- 所属団体:
- (公社)全日本不動産協会会員(公社)首都圏不動産公正取引協議会加盟
取引態様:専任媒介  - 00273867
|
- スマートフォンで
この不動産会社を見る

|
- 提携サイト等より掲載されている物件情報につきましては、不動産会社詳細情報にリンクされていないものがあります。
- 物件に関するお問合せは、物件詳細ページの「情報提供会社」に表示されている不動産会社へ直接お願いいたします。
- 間取図は、現況を優先させていただきます。
- 映像は物件の一部を撮影したものです。物件の契約にあたっての最終判断はご自身の判断に基づいて行ってください。
- 仲介手数料について

アットホームは物件情報の適正化に努めております。
内容に誤りがある場合にはこちらへご連絡ください。