静岡県熱海市泉(湯河原駅)の中古マンション・新築マンション・分譲マンション:物件詳細
交通 所在地 |
駅徒歩 |
価格 |
構造 階建/階 |
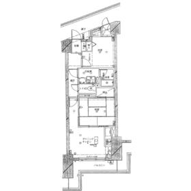
間取り 専有面積 |
物件種目 築年月 |
JR東海道本線/湯河原
静岡県熱海市泉
|
31分
|
730万円
|
RC
地上14階地下2階建 / 5階
|
2DK
52.26m²
|
中古マンション
1994年8月(築31年3ヶ月)
|
外観タイル張り、管理人常駐
|
間取図
|
|
<
その他の画像
>
|
交通 | JR東海道本線 湯河原駅 徒歩31分 |
所在地 |
静岡県熱海市泉
|
物件種目 |
中古マンション |
価格 |
730万円 |
平米単価 |
13.97万円 |
管理費等 |
20,520円 |
修繕積立金 |
7,160円 |
借地期間・地代(月額) |
- |
権利金 |
- |
敷金または保証金 |
- / - |
維持費等 |
水道使用料:4,480円/月 |
その他一時金 |
- |
|
|
間取り |
2DK |
専有面積 |
52.26m²(壁芯) |
階建 / 階 |
地上14階地下2階建 / 5階 |
バルコニー |
7.36m² |
築年月 |
1994年8月(築31年3ヶ月)
|
建物構造 |
RC |
駐車場 |
- |
総戸数 |
168戸 |
駐輪場 |
- |
バイク置き場 |
- |
ペット |
-
|
|
|
土地権利 |
所有権 |
敷地面積 |
- |
管理形態/管理員の勤務形態 |
全部委託/常駐(三井不動産住宅サービス) |
国土法届出 |
- |
アピールポイント |
子供を解き放てるキッズルーム完備、更に近くなので続けられる可能性大なフィットネス施設利用可なので、細く長くの取り組みが期待できます。また広々とした延床面積52.26㎡の居室空間で、その上エレベーター待ちのストレスが少ないエレベーター2基以上の建物なので、わずらわしい待ち時間を短縮してくれます。ちなみにしつこい訪問販売や勧誘も断りやすいオートロック仕様です。小さい家族の愛を育む2DK。ご案内いたしますのでお気軽にご連絡ください。 |
建物名・部屋番号 |
ダイアパレス湯河原グランヒルズ二番館 |
リフォーム履歴 |
- |
リノベーション履歴 |
- |
瑕疵保証 |
- |
瑕疵保険 |
- |
評価・証明書 |
- |
備考 |
他所在地:B棟
主要採光面:北東向き
温泉あり ■引込状況:引込み済(共同) ■利用形態:かけ流し
|
エネルギー消費性能 |
- |
断熱性能 |
- |
目安光熱費 |
- |
バス・トイレ |
- |
キッチン |
- |
設備・サービス |
収納スペース、室内洗濯機置場、オートロック、給湯、エアコン |
その他 |
キッズルーム、フィットネス施設、エレベーター2基以上、エレベーター |
条件等 |
- |
現況 |
空家 |
引渡可能時期 |
相談 |
物件番号 |
6987115825 |
情報公開日 |
2025年7月24日 |
次回更新予定日 |
2025年11月1日 |
ケータイ用バーコード |
- スマートフォンでこの物件を見る
- スマートフォンからもこの物件をご覧になれます。
|
※「-」と表示されている項目については、情報提供会社にご確認ください。
周辺施設 |
セブンイレブン湯河原宮上店 |
距離 |
1106m |
ここから簡単にお問い合わせをすることができます。
(SSLでの暗号化での送信を希望されるお客さまは
こちら
よりお問い合わせください)
お問い合わせを行う前に
「個人情報の取り扱いについて」を必ずお読みください。
「個人情報の取り扱いについて」に同意いただいた場合は「上記にご同意の上 確認画面へ進む」のボタンをクリックしてください。
個人情報の取り扱いについて
皆さまが送付された個人情報はアットホーム(株)のサーバを経由し、お問い合わせ先の不動産会社にメールまたはFAXにて転送されるためアットホーム(株)にも保管されます。アットホーム(株)で保管された個人情報の取り扱いについては、【こちら】をご覧ください。
また、本画面でご記入いただいた個人情報は、お問い合わせ先の不動産会社でも保管します。 お問い合わせ先の不動産会社が保管する個人情報の取り扱いについては、不動産会社に直接お問い合わせください。
東京都知事免許(4)第88726号 |
---|
- 交通:
- 東京メトロ銀座線/銀座駅 徒歩3分
- 東京都中央区銀座1丁目13-4 大和銀座一ビル3F
- TEL:
- 03-5524-2116
- FAX:
- 03-5524-2117
- 所属団体:
- (公社)全日本不動産協会会員(公社)首都圏不動産公正取引協議会加盟
取引態様:専任媒介  - 00018533
|
- スマートフォンで
この不動産会社を見る

|
- 提携サイト等より掲載されている物件情報につきましては、不動産会社詳細情報にリンクされていないものがあります。
- 物件に関するお問合せは、物件詳細ページの「情報提供会社」に表示されている不動産会社へ直接お願いいたします。
- 間取図は、現況を優先させていただきます。
- 映像は物件の一部を撮影したものです。物件の契約にあたっての最終判断はご自身の判断に基づいて行ってください。
- 仲介手数料について

アットホームは物件情報の適正化に努めております。
内容に誤りがある場合にはこちらへご連絡ください。