兵庫県高砂市中筋4丁目(山陽曽根駅)の中古マンション・新築マンション・分譲マンション:物件詳細
交通 所在地 |
駅徒歩 |
価格 |
構造 階建/階 |
間取り 専有面積 |
物件種目 築年月 |
|
山陽電鉄本線/山陽曽根
兵庫県高砂市中筋4丁目
|
22分
|
1,300万円
|
RC
5階建 / 5階
|
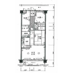
3LDK
66.32m²
|
中古マンション
1994年3月(築31年10ヶ月)
|
|
最上階、24時間セキュリティー、24時間換気システム、前面棟無、隣接建物距離2m以上、管理人巡回
|
|
間取図
|
リビング
|
<
その他の画像
>
|
| 交通 | 山陽電鉄本線 山陽曽根駅 徒歩22分 |
|---|
| その他の交通 | JR山陽本線 曽根駅 徒歩20分 |
| 所在地 |
兵庫県高砂市中筋4丁目
|
| 物件種目 |
中古マンション |
| 価格 |
1,300万円 |
平米単価 |
19.61万円 |
| 管理費等 |
7,660円 |
修繕積立金 |
4,180円 |
| 借地期間・地代(月額) |
- |
権利金 |
- |
| 敷金または保証金 |
- / - |
維持費等 |
- |
| その他一時金 |
- |
|
|
| 間取り |
3LDK |
専有面積 |
66.32m²(壁芯) |
| 階建 / 階 |
5階建 / 5階 |
バルコニー |
7.74m² |
| 築年月 |
1994年3月(築31年10ヶ月)
|
建物構造 |
RC |
| 駐車場 |
有 5,500円/月 |
総戸数 |
- |
| 駐輪場 |
有 無料 |
バイク置き場 |
無 |
| ペット |
-
|
|
|
| 土地権利 |
所有権 |
敷地面積 |
1,759.00m² |
| 管理形態/管理員の勤務形態 |
全部委託/巡回(グローバルコミュニティ株式会社) |
国土法届出 |
- |
| アピールポイント |
上階からの生活音や足音が響かない最上階、更に前面に棟が無い住居だから、見えない見られない立地です。またシステムキッチン付で、その上お鍋とフライパンを使いながらヤカンもおけるコンロ3口以上の仕様なので、進行ペースがスピードアップ。ちなみにお風呂準備はおまかせのオートバス付です。自然に団らんが生まれる3LDK。是非その目でお確かめください。 |
| 建物名・部屋番号 |
アインツ高砂 |
| リフォーム履歴 |
■水回り:2025年7月 キッチン、浴室、トイレ、洗面所、給排水管、給湯器 ■内装:2025年7月 内装全面(床・壁・天井・建具) ※実施年月は最も古い履歴を表示 |
| リノベーション履歴 |
- |
| 瑕疵保証 |
- |
| 瑕疵保険 |
- |
| 評価・証明書 |
- |
| 備考 |
主要採光面:東向き
施工会社:株式会社神崎組
|
| エネルギー消費性能 |
- |
| 断熱性能 |
- |
| 目安光熱費 |
- |
| バス・トイレ |
浴室暖房、浴室乾燥機、オートバス、追焚機能、シャワー付洗面化粧台、温水洗浄便座 |
| キッチン |
カウンターキッチン、システムキッチン、浄水器、3口以上コンロ、グリル |
| 設備・サービス |
収納スペース、室内洗濯機置場、トランクルーム、シューズインクローゼット、クローゼット、モニター付インターホン、防犯カメラ、給湯、クッションフロア、都市ガス、駐輪場、ダウンライト、照明器具 |
| その他 |
エレベーター |
| 条件等 |
- |
現況 |
空家 |
| 引渡可能時期 |
相談 |
物件番号 |
6987132576 |
| 情報公開日 |
2025年7月26日 |
次回更新予定日 |
2025年12月12日 |
| ケータイ用バーコード |
- スマートフォンでこの物件を見る
- スマートフォンからもこの物件をご覧になれます。
|
※「-」と表示されている項目については、情報提供会社にご確認ください。
| 周辺施設 |
医療法人徳洲会高砂西部病院 |
| 距離 |
1117m |
ここから簡単にお問い合わせをすることができます。
(SSLでの暗号化での送信を希望されるお客さまは
こちら
よりお問い合わせください)
お問い合わせを行う前に
「個人情報の取り扱いについて」を必ずお読みください。
「個人情報の取り扱いについて」に同意いただいた場合は「上記にご同意の上 確認画面へ進む」のボタンをクリックしてください。
個人情報の取り扱いについて
皆さまが送付された個人情報はアットホーム(株)のサーバを経由し、お問い合わせ先の不動産会社にメールまたはFAXにて転送されるためアットホーム(株)にも保管されます。アットホーム(株)で保管された個人情報の取り扱いについては、【こちら】をご覧ください。
また、本画面でご記入いただいた個人情報は、お問い合わせ先の不動産会社でも保管します。 お問い合わせ先の不動産会社が保管する個人情報の取り扱いについては、不動産会社に直接お問い合わせください。
国土交通大臣免許(1)第10682号 |
|---|
- 交通:
- 名鉄常滑線/太田川駅 徒歩1分
- 愛知県東海市大田町下浜田1016 ユウナル東海1F
- TEL:
- 0562-36-0039
- FAX:
- 0562-36-0040
- 所属団体:
- (公社)愛知県宅地建物取引業協会会員東海不動産公正取引協議会加盟
取引態様:専任媒介  - 40411587
|
- スマートフォンで
この不動産会社を見る

|
- 提携サイト等より掲載されている物件情報につきましては、不動産会社詳細情報にリンクされていないものがあります。
- 物件に関するお問合せは、物件詳細ページの「情報提供会社」に表示されている不動産会社へ直接お願いいたします。
- 間取図は、現況を優先させていただきます。
- 映像は物件の一部を撮影したものです。物件の契約にあたっての最終判断はご自身の判断に基づいて行ってください。
- 仲介手数料について

アットホームは物件情報の適正化に努めております。
内容に誤りがある場合にはこちらへご連絡ください。