大阪府東大阪市菱屋西5丁目(河内小阪駅)の中古マンション・新築マンション・分譲マンション:物件詳細
交通 所在地 |
駅徒歩 |
価格 |
構造 階建/階 |
間取り 専有面積 |
物件種目 築年月 |
|
近鉄奈良線/河内小阪
大阪府東大阪市菱屋西5丁目
|
6分
|
1,300万円
|
SRC
12階建 / 3階
|
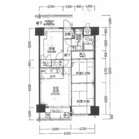
3LDK
55.40m²
|
中古マンション
オーナーチェンジ
1984年11月(築41年7ヶ月)
|
|
管理人日勤、IT重説対応物件
|
| 交通 | 近鉄奈良線 河内小阪駅 徒歩6分 |
|---|
| その他の交通 | 近鉄奈良線 河内永和駅 徒歩11分 JRおおさか東線 JR河内永和駅 徒歩12分 |
| 所在地 |
大阪府東大阪市菱屋西5丁目
|
| 物件種目 |
中古マンション |
| 価格 |
1,300万円 |
平米単価 |
23.47万円 |
| 管理費等 |
7,200円 |
修繕積立金 |
7,233円 |
| 借地期間・地代(月額) |
- |
権利金 |
- |
| 敷金または保証金 |
- / - |
維持費等 |
- |
| その他一時金 |
- |
|
|
| 間取り |
3LDK(和 4.5・6 洋 6 LDK 10.2) |
専有面積 |
55.40m²(内法) |
| 階建 / 階 |
12階建 / 3階 |
バルコニー |
5.01m² |
| 築年月 |
1984年11月(築41年7ヶ月)
|
建物構造 |
SRC |
| 駐車場 |
- |
総戸数 |
- |
| 駐輪場 |
- |
バイク置き場 |
- |
| ペット |
-
|
|
|
| 土地権利 |
所有権 |
敷地面積 |
3,436.52m² |
| 管理形態/管理員の勤務形態 |
全部委託/日勤 |
国土法届出 |
- |
| アピールポイント |
駅徒歩5分を含む3駅が利用可能で、交通利便性の高い立地にある投資用マンションのご紹介です。
現在は賃貸中のため、購入後すぐに家賃収入を得られる安定運用が可能です。周辺にはスーパー・飲食店・医療施設など生活利便施設が揃い、居住ニーズの高いエリアとして安定した入居需要が見込めます。
想定年間収入は108万円、表面利回りは8.3%。昭和59年築の区分マンションで、管理状態も良好です。現況収益が確保されているため、初めての不動産投資にも取り組みやすく、長期的な資産運用にも向いた内容となっております。
本物件は現在、弊社 梢不動産株式会社のみが取り扱っております。
オーナー様とは10年以上のお付き合いがあり、複数の物件を継続的にお任せいただいております。そのため、賃貸状況や管理方針を十分に把握しており、取引後もスムーズで丁寧な対応が可能です。
他社様を通さず、直接お問い合わせいただいた場合には初期費用や条件面でのご相談にも柔軟に対応可能です。詳細資料・現地案内をご希望の方は、ぜひお早めにご連絡ください。 |
| 建物名・部屋番号 |
|
| リフォーム履歴 |
- |
| リノベーション履歴 |
- |
| 瑕疵保証 |
- |
| 瑕疵保険 |
- |
| 評価・証明書 |
- |
| 備考 |
用途地域:商業地域
利回り:7.84%
年間予定賃料収入:102万円
IT重説対応物件
|
| エネルギー消費性能 |
- |
| 断熱性能 |
- |
| 目安光熱費 |
- |
| バス・トイレ |
- |
| キッチン |
- |
| 設備・サービス |
収納スペース、室内洗濯機置場 |
| その他 |
エレベーター |
| 条件等 |
オーナーチェンジ |
現況 |
賃貸中 |
| 引渡可能時期 |
相談 |
物件番号 |
6987247368 |
| 情報公開日 |
2026年4月1日 |
次回更新予定日 |
2026年5月11日 |
| ケータイ用バーコード |
- スマートフォンでこの物件を見る
- スマートフォンからもこの物件をご覧になれます。
|
※「-」と表示されている項目については、情報提供会社にご確認ください。
| 周辺施設 |
ファミリーマート大阪商大西店 |
| 距離 |
238m |
ここから簡単にお問い合わせをすることができます。
(SSLでの暗号化での送信を希望されるお客さまは
こちら
よりお問い合わせください)
お問い合わせを行う前に
「個人情報の取り扱いについて」を必ずお読みください。
「個人情報の取り扱いについて」に同意いただいた場合は「上記にご同意の上 確認画面へ進む」のボタンをクリックしてください。
個人情報の取り扱いについて
皆さまが送付された個人情報はアットホーム(株)のサーバを経由し、お問い合わせ先の不動産会社にメールまたはFAXにて転送されるためアットホーム(株)にも保管されます。アットホーム(株)で保管された個人情報の取り扱いについては、【こちら】をご覧ください。
また、本画面でご記入いただいた個人情報は、お問い合わせ先の不動産会社でも保管します。 お問い合わせ先の不動産会社が保管する個人情報の取り扱いについては、不動産会社に直接お問い合わせください。
大阪府知事免許(1)第63701号 |
|---|
- 交通:
- JR大阪環状線/寺田町駅 徒歩5分
- 大阪府大阪市天王寺区国分町17-20
- TEL:
- 06-6796-9745
- FAX:
- 06-6775-5150
- 所属団体:
- (公社)全日本不動産協会会員(公社)近畿地区不動産公正取引協議会加盟
取引態様:一般媒介  - 50107139
|
- スマートフォンで
この不動産会社を見る

|
- 提携サイト等より掲載されている物件情報につきましては、不動産会社詳細情報にリンクされていないものがあります。
- 物件に関するお問合せは、物件詳細ページの「情報提供会社」に表示されている不動産会社へ直接お願いいたします。
- 間取図は、現況を優先させていただきます。
- 映像は物件の一部を撮影したものです。物件の契約にあたっての最終判断はご自身の判断に基づいて行ってください。
- 仲介手数料について

アットホームは物件情報の適正化に努めております。
内容に誤りがある場合にはこちらへご連絡ください。