東京都中野区東中野4丁目(東中野駅)の中古マンション・新築マンション・分譲マンション:物件詳細
交通 所在地 |
駅徒歩 |
価格 |
構造 階建/階 |
間取り 専有面積 |
物件種目 築年月 |
|
都営大江戸線/東中野
東京都中野区東中野4丁目
|
1分
|
22,800万円
|
RC
地上27階地下1階建 / 17階
|
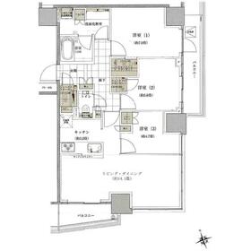
3LDK
78.75m²
|
中古マンション
2015年1月(築10年10ヶ月)
|
|
ペット相談、楽器相談、フロントサービス、常時ゴミ出し可能、角部屋、24時間セキュリティー、二重床・二重天井、2面採光、24時間換気システム、バリアフリー、外観タイル張り、前面棟無、隣接建物距離2m以上、管理人日勤
|
|
間取図
クラッシィタワー東中野
|
リビング
クラッシィタワー東中野
|
<
その他の画像
>
|
| 交通 | 都営大江戸線 東中野駅 徒歩1分 |
|---|
| その他の交通 | JR総武線 東中野駅 徒歩2分 東京メトロ東西線 落合駅 徒歩5分 |
| 所在地 |
東京都中野区東中野4丁目
|
| 物件種目 |
中古マンション |
| 価格 |
22,800万円 |
平米単価 |
289.53万円 |
| 管理費等 |
23,050円 |
修繕積立金 |
15,630円 |
| 借地期間・地代(月額) |
- |
権利金 |
- |
| 敷金または保証金 |
- / - |
維持費等 |
町会費:100円/月、スマートエネルギーサービス費:1,705円/月 |
| その他一時金 |
- |
|
|
| 間取り |
3LDK |
専有面積 |
78.75m²(壁芯) |
| 階建 / 階 |
地上27階地下1階建 / 17階 |
バルコニー |
11.39m² |
| 築年月 |
2015年1月(築10年10ヶ月)
|
建物構造 |
RC |
| 駐車場 |
- |
総戸数 |
245戸 |
| 駐輪場 |
- |
バイク置き場 |
- |
| ペット |
小型犬可・ 猫可・ 規約あり |
|
|
| 土地権利 |
所有権 |
敷地面積 |
6,148.21m² |
| 管理形態/管理員の勤務形態 |
全部委託/日勤 |
国土法届出 |
- |
| アピールポイント |
○「東中野」駅徒歩1分!
○「落合」駅も利用可!
○ペットと一緒に快適新生活をスタート!
○2面バルコニー付き!
○角部屋につき陽当り・眺望・通風良好!
○安心の耐震基準の2015年築!
○管理体制良好♪24時間有人管理!
○総戸数245戸の大規模マンション!
○新耐震基準物件!
○セキュリティー充実で安心と安全の暮らしを提供!
○忙しい方に嬉しい宅配ボックス!
○充実の共用設備で快適便利な暮らし!
○小さなお子様も無理なく通える小学校至近!
○毎日のお買い物に便利なスーパー至近!
○全室フローリング貼り!
○TVモニター付きインターホン!
○オートバス!
○投資用としてもオススメ! |
| 建物名・部屋番号 |
クラッシィタワー東中野 |
| リフォーム履歴 |
- |
| リノベーション履歴 |
- |
| 瑕疵保証 |
- |
| 瑕疵保険 |
- |
| 評価・証明書 |
- |
| 備考 |
主要採光面:南西向き
用途地域:商業地域、近隣商業
|
| エネルギー消費性能 |
- |
| 断熱性能 |
- |
| 目安光熱費 |
- |
| バス・トイレ |
ミストサウナ、浴室暖房、浴室乾燥機、オートバス、追焚機能、高温差湯式、温水洗浄便座、タンクレストイレ |
| キッチン |
カウンターキッチン、システムキッチン、食器洗浄乾燥機、浄水器、ディスポーザー、3口以上コンロ、グリル |
| 設備・サービス |
モニター付オートロック、全居室収納、ウォークインクローゼット、収納スペース、室内洗濯機置場、シューズインクローゼット、クローゼット、オートロック、モニター付インターホン、ダブルロックドア、防犯カメラ、給湯、全居室フローリング、都市ガス、エアコン、二面バルコニー、人感センサー付照明、ダウンライト、照明器具、火災警報器(報知機)、インターネット対応、光ファイバー、ケーブルTV、CS、BS端子、複層ガラス |
| その他 |
宅配BOX、ペット用施設、エレベーター2基以上、共用ゲストルーム、共用パーティルーム、内廊下、エレベーター、各フロアゴミ捨て場所あり |
| 条件等 |
- |
現況 |
空家 |
| 引渡可能時期 |
相談 |
物件番号 |
6987289357 |
| 仲介手数料 |
666.6万円 |
|
|
| 情報公開日 |
2025年10月24日 |
次回更新予定日 |
2025年11月7日 |
| ケータイ用バーコード |
- スマートフォンでこの物件を見る
- スマートフォンからもこの物件をご覧になれます。
|
※「-」と表示されている項目については、情報提供会社にご確認ください。
| 周辺施設 |
成城石井アトレヴィ東中野店 |
| 距離 |
186m |
| 周辺施設 |
ココカラファイン東中野店 |
| 距離 |
292m |
| 周辺施設 |
ダイソーユニゾンモール東中野店 |
| 距離 |
355m |
| 周辺施設 |
医療法人財団圭友会小原病院 |
| 距離 |
1568m |
| 周辺施設 |
医療法人社団健友会中野共立病院 |
| 距離 |
1779m |
ここから簡単にお問い合わせをすることができます。
(SSLでの暗号化での送信を希望されるお客さまは
こちら
よりお問い合わせください)
お問い合わせを行う前に
「個人情報の取り扱いについて」を必ずお読みください。
「個人情報の取り扱いについて」に同意いただいた場合は「上記にご同意の上 確認画面へ進む」のボタンをクリックしてください。
個人情報の取り扱いについて
皆さまが送付された個人情報はアットホーム(株)のサーバを経由し、お問い合わせ先の不動産会社にメールまたはFAXにて転送されるためアットホーム(株)にも保管されます。アットホーム(株)で保管された個人情報の取り扱いについては、【こちら】をご覧ください。
また、本画面でご記入いただいた個人情報は、お問い合わせ先の不動産会社でも保管します。 お問い合わせ先の不動産会社が保管する個人情報の取り扱いについては、不動産会社に直接お問い合わせください。
東京都知事免許(3)第93520号 |
|---|
- 交通:
- JR山手線/恵比寿駅 徒歩3分
- 東京都渋谷区東3丁目23-5 石川ビル2F
- TEL:
- 03-6419-7121
- FAX:
- 050-3606-3077
- 所属団体:
- (公社)全日本不動産協会会員(公社)首都圏不動産公正取引協議会加盟
取引態様:一般媒介  - 00106024
|
- スマートフォンで
この不動産会社を見る

|
- 提携サイト等より掲載されている物件情報につきましては、不動産会社詳細情報にリンクされていないものがあります。
- 物件に関するお問合せは、物件詳細ページの「情報提供会社」に表示されている不動産会社へ直接お願いいたします。
- 間取図は、現況を優先させていただきます。
- 映像は物件の一部を撮影したものです。物件の契約にあたっての最終判断はご自身の判断に基づいて行ってください。
- 仲介手数料について

アットホームは物件情報の適正化に努めております。
内容に誤りがある場合にはこちらへご連絡ください。