神奈川県茅ヶ崎市本村4丁目(北茅ケ崎駅)の中古マンション・新築マンション・分譲マンション:物件詳細
交通 所在地 |
駅徒歩 |
価格 |
構造 階建/階 |
間取り 専有面積 |
物件種目 築年月 |
|
JR相模線/北茅ケ崎
神奈川県茅ヶ崎市本村4丁目
|
9分
|
3,180万円
|
RC
8階建 / 2階
|
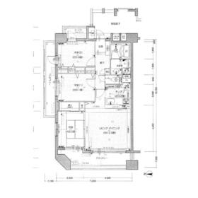
3LDK
76.44m²
|
中古マンション
オーナーチェンジ
2006年3月(築20年3ヶ月)
|
|
外壁コンクリート、24時間換気システム、管理人日勤
|
| 交通 | JR相模線 北茅ケ崎駅 徒歩9分 |
|---|
| その他の交通 | JR相模線 茅ケ崎駅 徒歩16分 湘南新宿ライン(前橋〜小田原) 茅ケ崎駅 徒歩19分 |
| 所在地 |
神奈川県茅ヶ崎市本村4丁目
|
| 物件種目 |
中古マンション |
| 価格 |
3,180万円 |
平米単価 |
41.61万円 |
| 管理費等 |
12,990円 |
修繕積立金 |
11,460円 |
| 借地期間・地代(月額) |
- |
権利金 |
- |
| 敷金または保証金 |
- / - |
維持費等 |
- |
| その他一時金 |
- |
|
|
| 間取り |
3LDK |
専有面積 |
76.44m²(壁芯) |
| 階建 / 階 |
8階建 / 2階 |
バルコニー |
18.98m² |
| 築年月 |
2006年3月(築20年3ヶ月)
|
建物構造 |
RC |
| 駐車場 |
- |
総戸数 |
75戸 |
| 駐輪場 |
- |
バイク置き場 |
- |
| ペット |
-
|
|
|
| 土地権利 |
所有権 |
敷地面積 |
- |
| 管理形態/管理員の勤務形態 |
全部委託/日勤(オークラハウジング株式会社) |
国土法届出 |
- |
| アピールポイント |
ゆったりめの延床面積76.44㎡の居室空間/衣類以外の収納にも重宝するクローゼット付だから、何かと増える物の整理整頓も心強いです/飾り気のない無骨さが魅力の外壁コンクリートの仕様/機能的なシステムキッチン仕様なので、すきまや段差がなくお掃除も簡単です/夕食の支度をしながら翌日の献立も調理できるコンロ3口以上有の物件/家族の安心拠点になる3LDK/ |
| 建物名・部屋番号 |
グラン・コート湘南茅ヶ崎 |
| リフォーム履歴 |
- |
| リノベーション履歴 |
- |
| 瑕疵保証 |
- |
| 瑕疵保険 |
- |
| 評価・証明書 |
- |
| 備考 |
利回り:5.62%
年間予定賃料収入:178.8万円
※リースバック案件につき、買戻し条件付き売買になります。
|
| エネルギー消費性能 |
- |
| 断熱性能 |
- |
| 目安光熱費 |
- |
| バス・トイレ |
浴室乾燥機 |
| キッチン |
システムキッチン、食器洗浄乾燥機、浄水器、3口以上コンロ |
| 設備・サービス |
モニター付オートロック、エアコン2台以上、室内洗濯機置場、クローゼット、BS端子 |
| その他 |
エレベーター |
| 条件等 |
オーナーチェンジ |
現況 |
賃貸中 |
| 引渡可能時期 |
相談 |
物件番号 |
6987290248 |
| 仲介手数料 |
売買代金の3%+6万円 |
|
|
| 情報公開日 |
2025年11月15日 |
次回更新予定日 |
2026年5月7日 |
| ケータイ用バーコード |
- スマートフォンでこの物件を見る
- スマートフォンからもこの物件をご覧になれます。
|
※「-」と表示されている項目については、情報提供会社にご確認ください。
ここから簡単にお問い合わせをすることができます。
(SSLでの暗号化での送信を希望されるお客さまは
こちら
よりお問い合わせください)
お問い合わせを行う前に
「個人情報の取り扱いについて」を必ずお読みください。
「個人情報の取り扱いについて」に同意いただいた場合は「上記にご同意の上 確認画面へ進む」のボタンをクリックしてください。
個人情報の取り扱いについて
皆さまが送付された個人情報はアットホーム(株)のサーバを経由し、お問い合わせ先の不動産会社にメールまたはFAXにて転送されるためアットホーム(株)にも保管されます。アットホーム(株)で保管された個人情報の取り扱いについては、【こちら】をご覧ください。
また、本画面でご記入いただいた個人情報は、お問い合わせ先の不動産会社でも保管します。 お問い合わせ先の不動産会社が保管する個人情報の取り扱いについては、不動産会社に直接お問い合わせください。
東京都知事免許(3)第95397号 |
|---|
- 交通:
- 東京メトロ銀座線/赤坂見附駅 徒歩6分
- 東京都港区赤坂4丁目1-31 アカネビル4F
- TEL:
- 03-6230-9455
- 所属団体:
- (公社)東京都宅地建物取引業協会会員(公社)首都圏不動産公正取引協議会加盟
取引態様:代理  - 00109270
|
- スマートフォンで
この不動産会社を見る

|
- 提携サイト等より掲載されている物件情報につきましては、不動産会社詳細情報にリンクされていないものがあります。
- 物件に関するお問合せは、物件詳細ページの「情報提供会社」に表示されている不動産会社へ直接お願いいたします。
- 間取図は、現況を優先させていただきます。
- 映像は物件の一部を撮影したものです。物件の契約にあたっての最終判断はご自身の判断に基づいて行ってください。
- 仲介手数料について

アットホームは物件情報の適正化に努めております。
内容に誤りがある場合にはこちらへご連絡ください。