宮城県名取市手倉田字八幡(名取駅)の中古マンション・新築マンション・分譲マンション:物件詳細
交通 所在地 |
駅徒歩 |
価格 |
構造 階建/階 |
間取り 専有面積 |
物件種目 築年月 |
JR東北本線/名取
宮城県名取市手倉田字八幡
|
3分
|
3,480万円
|
RC
14階建 / 2階
|
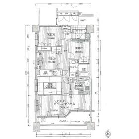
4LDK
88.14m²
|
中古マンション
2005年8月(築20年3ヶ月)
|
バス1坪以上、2面採光、管理人日勤、IT重説対応物件、置き配スペース
|
間取図
|
|
<
その他の画像
>
|
交通 | JR東北本線 名取駅 徒歩3分 |
---|
その他の交通 | JR常磐線 名取駅 徒歩4分 仙台空港鉄道 名取駅 徒歩4分 |
所在地 |
宮城県名取市手倉田字八幡
|
物件種目 |
中古マンション |
価格 |
3,480万円 |
平米単価 |
39.49万円 |
管理費等 |
12,820円 |
修繕積立金 |
13,490円 |
借地期間・地代(月額) |
- |
権利金 |
- |
敷金または保証金 |
- / - |
維持費等 |
- |
その他一時金 |
- |
|
|
間取り |
4LDK |
専有面積 |
88.14m²(壁芯) |
階建 / 階 |
14階建 / 2階 |
バルコニー |
13.05m² |
築年月 |
2005年8月(築20年3ヶ月)
|
建物構造 |
RC |
駐車場 |
有 無料 |
総戸数 |
78戸 |
駐輪場 |
有 無料 |
バイク置き場 |
有 無料 |
ペット |
-
|
|
|
土地権利 |
所有権 |
敷地面積 |
- |
管理形態/管理員の勤務形態 |
一部委託/日勤 |
国土法届出 |
- |
アピールポイント |
アクセスのいい名取駅徒歩4分立地の物件、更に家族それぞれで車を所有したいときに便利な駐車場あり、機動力の3倍アップが可能です。上拭き掃除のみでお手入れ楽チンなIHクッキングヒーターは汚れもさっと拭き取りで清潔に保てます。ちなみにシステムキッチン付です。家族の物語が生まれる4LDK。実際の空間をご自身で体感ください。 |
建物名・部屋番号 |
|
リフォーム履歴 |
- |
リノベーション履歴 |
- |
瑕疵保証 |
- |
瑕疵保険 |
- |
評価・証明書 |
- |
備考 |
用途地域:商業地域
IT重説対応物件
|
エネルギー消費性能 |
- |
断熱性能 |
- |
目安光熱費 |
- |
バス・トイレ |
オートバス、追焚機能、シャワー付洗面化粧台、温水洗浄便座 |
キッチン |
システムキッチン、独立型キッチン、2WAYキッチン、IHクッキングヒーター |
設備・サービス |
全居室収納、バイク置き場、収納スペース、室内洗濯機置場、トランクルーム、クローゼット、オートロック、モニター付インターホン、ディンプルキー、ダブルロックドア、防犯カメラ、室内物干し、都市ガス、エアコン、ルーフバルコニー、駐輪場、照明器具、複層ガラス |
その他 |
来客用駐車場、エレベーター |
条件等 |
- |
現況 |
空家 |
引渡可能時期 |
相談 |
物件番号 |
6987312295 |
仲介手数料 |
不要 |
|
|
情報公開日 |
2025年8月12日 |
次回更新予定日 |
2025年10月20日 |
ケータイ用バーコード |
- スマートフォンでこの物件を見る
- スマートフォンからもこの物件をご覧になれます。
|
※「-」と表示されている項目については、情報提供会社にご確認ください。
ここから簡単にお問い合わせをすることができます。
(SSLでの暗号化での送信を希望されるお客さまは
こちら
よりお問い合わせください)
お問い合わせを行う前に
「個人情報の取り扱いについて」を必ずお読みください。
「個人情報の取り扱いについて」に同意いただいた場合は「上記にご同意の上 確認画面へ進む」のボタンをクリックしてください。
個人情報の取り扱いについて
皆さまが送付された個人情報はアットホーム(株)のサーバを経由し、お問い合わせ先の不動産会社にメールまたはFAXにて転送されるためアットホーム(株)にも保管されます。アットホーム(株)で保管された個人情報の取り扱いについては、【こちら】をご覧ください。
また、本画面でご記入いただいた個人情報は、お問い合わせ先の不動産会社でも保管します。 お問い合わせ先の不動産会社が保管する個人情報の取り扱いについては、不動産会社に直接お問い合わせください。
国土交通大臣免許(1)第9800号 |
---|
- 交通:
- JR山手線/秋葉原駅 徒歩4分
- 東京都台東区秋葉原3-4
- TEL:
- 03-3525-4070
- FAX:
- 03-3525-4503
- 所属団体:
- (公社)東京都宅地建物取引業協会会員(公社)首都圏不動産公正取引協議会加盟
取引態様:専任媒介  - 00262889
|
- スマートフォンで
この不動産会社を見る

|
- 提携サイト等より掲載されている物件情報につきましては、不動産会社詳細情報にリンクされていないものがあります。
- 物件に関するお問合せは、物件詳細ページの「情報提供会社」に表示されている不動産会社へ直接お願いいたします。
- 間取図は、現況を優先させていただきます。
- 映像は物件の一部を撮影したものです。物件の契約にあたっての最終判断はご自身の判断に基づいて行ってください。
- 仲介手数料について

アットホームは物件情報の適正化に努めております。
内容に誤りがある場合にはこちらへご連絡ください。