埼玉県さいたま市浦和区常盤4丁目(北浦和駅)の中古マンション・新築マンション・分譲マンション:物件詳細
交通 所在地 |
駅徒歩 |
価格 |
構造 階建/階 |
間取り 専有面積 |
物件種目 築年月 |
|
JR京浜東北線/北浦和
埼玉県さいたま市浦和区常盤4丁目
|
14分
|
4,780万円
|
SRC
8階建 / 4階
|
3LDK
77.77m²
|
中古マンション
1992年6月(築33年5ヶ月)
|
|
南向き、管理人日勤
|
|
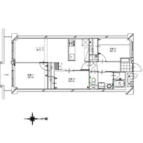
間取図
「趣」や「風情」が安心感をマイホームにプラス
|
間取図
音や光に干渉されない睡眠環境。リビングと主寝室を離した間取りで確保
|
| 交通 | JR京浜東北線 北浦和駅 徒歩14分 |
|---|
| その他の交通 | JR高崎線 浦和駅 徒歩16分 |
| 所在地 |
埼玉県さいたま市浦和区常盤4丁目
|
| 物件種目 |
中古マンション |
| 価格 |
4,780万円 |
平米単価 |
61.47万円 |
| 管理費等 |
20,700円 |
修繕積立金 |
18,200円 |
| 借地期間・地代(月額) |
- |
権利金 |
- |
| 敷金または保証金 |
- / - |
維持費等 |
- |
| その他一時金 |
- |
|
|
| 間取り |
3LDK(洋 6.6・5.5・4.8 LDK 14.7) |
専有面積 |
77.77m²(壁芯) |
| 階建 / 階 |
8階建 / 4階 |
バルコニー |
9.64m² |
| 築年月 |
1992年6月(築33年5ヶ月)
|
建物構造 |
SRC |
| 駐車場 |
空無 |
総戸数 |
26戸 |
| 駐輪場 |
有 100円/月 |
バイク置き場 |
無 |
| ペット |
-
|
|
|
| 土地権利 |
所有権 |
敷地面積 |
- |
| 管理形態/管理員の勤務形態 |
全部委託/日勤(埼玉県住宅供給公社) |
国土法届出 |
- |
| アピールポイント |
広々とした延床面積77.77㎡の居室空間、更に物が増えても安心の全居室収納なので、部屋ごとに収納したいものを分けられます。また食後お皿を下げるのもスムーズなカウンターキッチンで、その上一度に複数のおかず作りを同時進行できるコンロ3口以上の仕様なので、進行ペースがスピードアップ。ちなみに家事がたくさんあるときに大助かりなオートバス仕様です。自然に団らんが生まれる3LDK。実際の空間をご自身で体感ください。 |
| 建物名・部屋番号 |
コート浦和常盤 404 |
| リフォーム履歴 |
■水回り:2025年8月 キッチン、浴室、トイレ、洗面所、給排水管、給湯器 ■内装:2025年8月 内装全面(床・壁・天井・建具) ※実施年月は最も古い履歴を表示 |
| リノベーション履歴 |
- |
| 瑕疵保証 |
- |
| 瑕疵保険 |
- |
| 評価・証明書 |
- |
| 備考 |
主要採光面:南向き
施工会社:東洋建設㈱
|
| エネルギー消費性能 |
- |
| 断熱性能 |
- |
| 目安光熱費 |
- |
| バス・トイレ |
オートバス、温水洗浄便座 |
| キッチン |
カウンターキッチン、システムキッチン、食器洗浄乾燥機、3口以上コンロ |
| 設備・サービス |
全居室収納、収納スペース、室内洗濯機置場、オートロック、都市ガス、駐輪場 |
| その他 |
エレベーター |
| 条件等 |
- |
現況 |
空家 |
| 引渡可能時期 |
即時 |
物件番号 |
6987313885 |
| 情報公開日 |
2025年8月12日 |
次回更新予定日 |
2025年11月3日 |
| ケータイ用バーコード |
- スマートフォンでこの物件を見る
- スマートフォンからもこの物件をご覧になれます。
|
※「-」と表示されている項目については、情報提供会社にご確認ください。
| 周辺施設 |
イトーヨーカドー浦和店 |
| 距離 |
1047m |
| 周辺施設 |
セブンイレブン浦和常盤5丁目店 |
| 距離 |
219m |
ここから簡単にお問い合わせをすることができます。
(SSLでの暗号化での送信を希望されるお客さまは
こちら
よりお問い合わせください)
お問い合わせを行う前に
「個人情報の取り扱いについて」を必ずお読みください。
「個人情報の取り扱いについて」に同意いただいた場合は「上記にご同意の上 確認画面へ進む」のボタンをクリックしてください。
個人情報の取り扱いについて
皆さまが送付された個人情報はアットホーム(株)のサーバを経由し、お問い合わせ先の不動産会社にメールまたはFAXにて転送されるためアットホーム(株)にも保管されます。アットホーム(株)で保管された個人情報の取り扱いについては、【こちら】をご覧ください。
また、本画面でご記入いただいた個人情報は、お問い合わせ先の不動産会社でも保管します。 お問い合わせ先の不動産会社が保管する個人情報の取り扱いについては、不動産会社に直接お問い合わせください。
埼玉県知事免許(1)第25695号 |
|---|
- 交通:
- JR京浜東北線/北浦和駅 徒歩7分
- 埼玉県さいたま市浦和区北浦和2丁目3-8 ノースピアL402
- TEL:
- 048-606-4877
- 所属団体:
- (公社)全日本不動産協会会員(公社)首都圏不動産公正取引協議会加盟
取引態様:媒介  - 00281478
|
- スマートフォンで
この不動産会社を見る

|
- 提携サイト等より掲載されている物件情報につきましては、不動産会社詳細情報にリンクされていないものがあります。
- 物件に関するお問合せは、物件詳細ページの「情報提供会社」に表示されている不動産会社へ直接お願いいたします。
- 間取図は、現況を優先させていただきます。
- 映像は物件の一部を撮影したものです。物件の契約にあたっての最終判断はご自身の判断に基づいて行ってください。
- 仲介手数料について

アットホームは物件情報の適正化に努めております。
内容に誤りがある場合にはこちらへご連絡ください。