静岡県浜松市中央区鴨江町(新浜松駅)の中古マンション・新築マンション・分譲マンション:物件詳細
交通 所在地 |
駅徒歩 |
価格 |
構造 階建/階 |
間取り 専有面積 |
物件種目 築年月 |
遠州鉄道/新浜松
静岡県浜松市中央区鴨江町
|
17分
|
5,500万円
|
RC
地上9階地下1階建 / 8階
|
4LDK
102.15m²
|
中古マンション
2015年3月(築10年8ヶ月)
|
ペット相談、フロントサービス、角部屋、バス1坪以上、管理人日勤
|
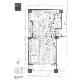
間取図
|
|
その他の画像
|
交通 | 遠州鉄道 新浜松駅 徒歩17分 |
---|
その他の交通 | 遠州鉄道 第一通り駅 徒歩18分 遠州鉄道 遠州病院駅 徒歩22分 |
所在地 |
静岡県浜松市中央区鴨江町
|
物件種目 |
中古マンション |
価格 |
5,500万円 |
平米単価 |
53.85万円 |
管理費等 |
11,000円 |
修繕積立金 |
16,300円 |
借地期間・地代(月額) |
- |
権利金 |
- |
敷金または保証金 |
- / - |
維持費等 |
コミュファ光利用料:1,404円/月 |
その他一時金 |
- |
|
|
間取り |
4LDK(和 5.2 洋 5.1・5.4・8.7 LDK 18.3) |
専有面積 |
102.15m²(壁芯) |
階建 / 階 |
地上9階地下1階建 / 8階 |
バルコニー |
- |
築年月 |
2015年3月(築10年8ヶ月)
|
建物構造 |
RC |
駐車場 |
有 8,300円/月 |
総戸数 |
- |
駐輪場 |
有 300円/月 |
バイク置き場 |
- |
ペット |
小型犬可・ 猫可 |
|
|
土地権利 |
所有権 |
敷地面積 |
3,693.45m² |
管理形態/管理員の勤務形態 |
全部委託/日勤 |
国土法届出 |
- |
アピールポイント |
お探しの方には嬉しいペット(小型犬)相談可。生ゴミを排水溝にそのまま流せちゃうディスポーザー付、更にシステムキッチン付です。また広々とした延床面積102.15㎡の居室空間で、その上留守番いらずの宅配BOX付なので、ネット通販大好き派にはお勧めです。ちなみにフロントサービス有です。家族というコミュニティを支える4LDK。是非見学にお越しください。 |
建物名・部屋番号 |
|
リフォーム履歴 |
- |
リノベーション履歴 |
- |
瑕疵保証 |
- |
瑕疵保険 |
- |
評価・証明書 |
- |
備考 |
用途地域:2種住居
|
エネルギー消費性能 |
- |
断熱性能 |
- |
目安光熱費 |
- |
バス・トイレ |
浴室暖房、追焚機能、シャワー付洗面化粧台、温水洗浄便座 |
キッチン |
カウンターキッチン、システムキッチン、食器洗浄乾燥機、ディスポーザー、IHクッキングヒーター |
設備・サービス |
モニター付オートロック、全居室収納、ウォークインクローゼット、収納スペース、室内洗濯機置場、シューズインクローゼット、クローゼット、オートロック、ディンプルキー、防犯カメラ、都市ガス、エアコン、駐輪場、照明器具、火災警報器(報知機) |
その他 |
宅配BOX、来客用駐車場、エレベーター |
条件等 |
- |
現況 |
所有者居住中 |
引渡可能時期 |
2026年1月下旬予定 |
物件番号 |
6987317031 |
仲介手数料 |
売買代金の3%+6万円 |
|
|
情報公開日 |
2025年8月14日 |
次回更新予定日 |
2025年10月28日 |
ケータイ用バーコード |
- スマートフォンでこの物件を見る
- スマートフォンからもこの物件をご覧になれます。
|
※「-」と表示されている項目については、情報提供会社にご確認ください。
ここから簡単にお問い合わせをすることができます。
(SSLでの暗号化での送信を希望されるお客さまは
こちら
よりお問い合わせください)
お問い合わせを行う前に
「個人情報の取り扱いについて」を必ずお読みください。
「個人情報の取り扱いについて」に同意いただいた場合は「上記にご同意の上 確認画面へ進む」のボタンをクリックしてください。
個人情報の取り扱いについて
皆さまが送付された個人情報はアットホーム(株)のサーバを経由し、お問い合わせ先の不動産会社にメールまたはFAXにて転送されるためアットホーム(株)にも保管されます。アットホーム(株)で保管された個人情報の取り扱いについては、【こちら】をご覧ください。
また、本画面でご記入いただいた個人情報は、お問い合わせ先の不動産会社でも保管します。 お問い合わせ先の不動産会社が保管する個人情報の取り扱いについては、不動産会社に直接お問い合わせください。
静岡県知事免許(3)第13486号 |
---|
- 交通:
- 【バス】 幸南バス停
- 静岡県浜松市中央区幸2丁目2-3
- TEL:
- 053-412-0822
- 所属団体:
- (公社)全日本不動産協会会員東海不動産公正取引協議会加盟
取引態様:専任媒介  - 40411656
|
- スマートフォンで
この不動産会社を見る

|
- 提携サイト等より掲載されている物件情報につきましては、不動産会社詳細情報にリンクされていないものがあります。
- 物件に関するお問合せは、物件詳細ページの「情報提供会社」に表示されている不動産会社へ直接お願いいたします。
- 間取図は、現況を優先させていただきます。
- 映像は物件の一部を撮影したものです。物件の契約にあたっての最終判断はご自身の判断に基づいて行ってください。
- 仲介手数料について

アットホームは物件情報の適正化に努めております。
内容に誤りがある場合にはこちらへご連絡ください。