長崎県佐世保市潮見町(佐世保駅)の中古マンション・新築マンション・分譲マンション:物件詳細
交通 所在地 |
駅徒歩 |
価格 |
構造 階建/階 |
間取り 専有面積 |
物件種目 築年月 |
|
JR佐世保線/佐世保
長崎県佐世保市潮見町
|
8分
|
1,780万円
|
SRC
16階建 / 13階
|
3LDK
73.60m²
|
中古マンション
1991年2月(築34年9ヶ月)
|
|
ペット相談、フロントサービス、管理人日勤
|
|
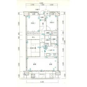
間取図
|
外観
|
<
その他の画像
>
|
| 交通 | JR佐世保線 佐世保駅 徒歩8分 |
| 所在地 |
長崎県佐世保市潮見町
|
| 物件種目 |
中古マンション |
| 価格 |
1,780万円 |
平米単価 |
24.19万円 |
| 管理費等 |
10,810円 |
修繕積立金 |
3,310円 |
| 借地期間・地代(月額) |
- |
権利金 |
- |
| 敷金または保証金 |
- / - |
維持費等 |
- |
| その他一時金 |
- |
|
|
| 間取り |
3LDK(和 6 洋 6・4.5 LDK 15.5) |
専有面積 |
73.60m²(壁芯) |
| 階建 / 階 |
16階建 / 13階 |
バルコニー |
9.45m² |
| 築年月 |
1991年2月(築34年9ヶ月)
|
建物構造 |
SRC |
| 駐車場 |
無 |
総戸数 |
189戸 |
| 駐輪場 |
有 1,000円/月 |
バイク置き場 |
有 3,000円/月 |
| ペット |
小型犬可 |
|
|
| 土地権利 |
所有権 |
敷地面積 |
4,409.84m² |
| 管理形態/管理員の勤務形態 |
全部委託/日勤(株式会社エルベック) |
国土法届出 |
- |
| アピールポイント |
●3LDKの間取りで、市街地への利便性が良く、生活環境が整った好立地です。 |
| 建物名・部屋番号 |
1310 |
| リフォーム履歴 |
- |
| リノベーション履歴 |
- |
| 瑕疵保証 |
- |
| 瑕疵保険 |
- |
| 評価・証明書 |
- |
| 備考 |
主要採光面:南西向き
施工会社:清水建設
用途地域:商業地域
●ペット飼育、駐輪場、バイク置場等は管理規約遵守になります。
●建物室内及び設備等につきましては現況渡しになります。
|
| エネルギー消費性能 |
- |
| 断熱性能 |
- |
| 目安光熱費 |
- |
| バス・トイレ |
温水洗浄便座 |
| キッチン |
システムキッチン、3口以上コンロ、グリル |
| 設備・サービス |
モニター付オートロック、エアコン2台以上、バイク置き場、収納スペース、室内洗濯機置場、シューズインクローゼット、クローゼット、オートロック、モニター付インターホン、ダブルロックドア、防犯カメラ、給湯、都市ガス、駐輪場、照明器具、火災警報器(報知機) |
| その他 |
エレベーター2基以上 |
| 条件等 |
- |
現況 |
空家 |
| 引渡可能時期 |
相談 |
物件番号 |
6987349177 |
| 情報公開日 |
2025年8月18日 |
次回更新予定日 |
2025年11月3日 |
| ケータイ用バーコード |
- スマートフォンでこの物件を見る
- スマートフォンからもこの物件をご覧になれます。
|
※「-」と表示されている項目については、情報提供会社にご確認ください。
| 周辺施設 |
コメダ珈琲店佐世保駅前店 |
| 距離 |
190m |
| 周辺施設 |
ファミリーマート佐世保駅前店 |
| 距離 |
380m |
| 周辺施設 |
ガスト佐世保駅南店(から好し取扱店) |
| 距離 |
281m |
ここから簡単にお問い合わせをすることができます。
(SSLでの暗号化での送信を希望されるお客さまは
こちら
よりお問い合わせください)
お問い合わせを行う前に
「個人情報の取り扱いについて」を必ずお読みください。
「個人情報の取り扱いについて」に同意いただいた場合は「上記にご同意の上 確認画面へ進む」のボタンをクリックしてください。
個人情報の取り扱いについて
皆さまが送付された個人情報はアットホーム(株)のサーバを経由し、お問い合わせ先の不動産会社にメールまたはFAXにて転送されるためアットホーム(株)にも保管されます。アットホーム(株)で保管された個人情報の取り扱いについては、【こちら】をご覧ください。
また、本画面でご記入いただいた個人情報は、お問い合わせ先の不動産会社でも保管します。 お問い合わせ先の不動産会社が保管する個人情報の取り扱いについては、不動産会社に直接お問い合わせください。
長崎県知事免許(4)第3724号 |
|---|
- 交通:
- 【バス】 佐世保市役前
- 長崎県佐世保市木場田町1-1
- TEL:
- 0956-76-9556
- FAX:
- 0956-76-9552
- 所属団体:
- (公社)長崎県宅地建物取引業協会会員(一社)九州不動産公正取引協議会加盟
取引態様:媒介  - 80500838
|
- スマートフォンで
この不動産会社を見る

|
- 提携サイト等より掲載されている物件情報につきましては、不動産会社詳細情報にリンクされていないものがあります。
- 物件に関するお問合せは、物件詳細ページの「情報提供会社」に表示されている不動産会社へ直接お願いいたします。
- 間取図は、現況を優先させていただきます。
- 映像は物件の一部を撮影したものです。物件の契約にあたっての最終判断はご自身の判断に基づいて行ってください。
- 仲介手数料について

アットホームは物件情報の適正化に努めております。
内容に誤りがある場合にはこちらへご連絡ください。