大阪府大阪市淀川区木川東4丁目(新大阪駅)の中古マンション・新築マンション・分譲マンション:物件詳細
交通 所在地 |
駅徒歩 |
価格 |
構造 階建/階 |
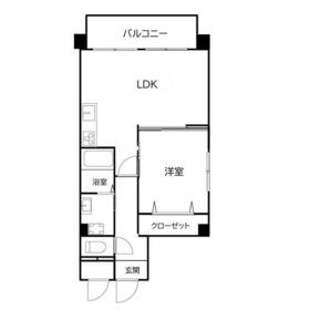
間取り 専有面積 |
物件種目 築年月 |
|
地下鉄御堂筋線/新大阪
大阪府大阪市淀川区木川東4丁目
|
10分
|
1,580万円
|
RC
7階建 / 6階
|
1LDK
41.86m²
|
中古マンション
賃貸中
1973年7月(築52年8ヶ月)
|
|
常時ゴミ出し可能、角部屋、事務所使用可、2面採光、前面棟無、管理人日勤
|
| 交通 | 地下鉄御堂筋線 新大阪駅 徒歩10分 |
|---|
| その他の交通 | 地下鉄御堂筋線 西中島南方駅 徒歩12分 阪急京都線 南方駅 徒歩14分 |
| 所在地 |
大阪府大阪市淀川区木川東4丁目
|
| 物件種目 |
中古マンション |
| 価格 |
1,580万円 |
平米単価 |
37.75万円 |
| 管理費等 |
8,870円 |
修繕積立金 |
7,110円 |
| 借地期間・地代(月額) |
- |
権利金 |
- |
| 敷金または保証金 |
- / - |
維持費等 |
- |
| その他一時金 |
- |
|
|
| 間取り |
1LDK(洋 6 LDK 10) |
専有面積 |
41.86m²(壁芯) |
| 階建 / 階 |
7階建 / 6階 |
バルコニー |
15.00m² |
| 築年月 |
1973年7月(築52年8ヶ月)
|
建物構造 |
RC |
| 駐車場 |
無 |
総戸数 |
75戸 |
| 駐輪場 |
有 200円/月 |
バイク置き場 |
有 900円/月 |
| ペット |
-
|
|
|
| 土地権利 |
所有権 |
敷地面積 |
927.62m² |
| 管理形態/管理員の勤務形態 |
一部委託/日勤(株式会社 鐘和管理) |
国土法届出 |
- |
| アピールポイント |
①最寄りは大阪メトロ新大阪駅徒歩11分、西中島南方駅徒歩12分、JR東海道線、東海道・山陽新幹線新大阪駅、阪急京都線南方駅が利用可能!!
②令和5年3月フルリノベーション!
③北東角部屋
④事務所としても使用可能! |
| 建物名・部屋番号 |
新大阪第一ハイツビル 605 |
| リフォーム履歴 |
■水回り:2023年2月 キッチン、浴室、トイレ、洗面所、給湯器 ■内装:2023年2月 全室クロス張替え、床(フローリング等)、壁・天井(クロス・塗装等)、建具(室内ドア等) ※実施年月は最も古い履歴を表示 |
| リノベーション履歴 |
- |
| 瑕疵保証 |
- |
| 瑕疵保険 |
- |
| 評価・証明書 |
- |
| 備考 |
用途地域:1種住居
延べ面積:4,975.40m²
|
| エネルギー消費性能 |
- |
| 断熱性能 |
- |
| 目安光熱費 |
- |
| バス・トイレ |
浴室乾燥機、高温差湯式、シャワー付洗面化粧台、温水洗浄便座 |
| キッチン |
システムキッチン、食器洗浄乾燥機、3口以上コンロ、グリル |
| 設備・サービス |
全居室収納、バイク置き場、室内洗濯機置場、クローゼット、給湯、クッションフロア、都市ガス、ワイドバルコニー、駐輪場、人感センサー付照明、火災警報器(報知機)、CATVインターネット |
| その他 |
内廊下、エレベーター |
| 条件等 |
- |
現況 |
賃貸中 |
| 引渡可能時期 |
相談 |
物件番号 |
6987377442 |
| 仲介手数料 |
売買代金の3% |
|
|
| 情報公開日 |
2025年12月29日 |
次回更新予定日 |
2026年2月16日 |
| ケータイ用バーコード |
- スマートフォンでこの物件を見る
- スマートフォンからもこの物件をご覧になれます。
|
※「-」と表示されている項目については、情報提供会社にご確認ください。
| 周辺施設 |
セブンイレブン大阪西中島6丁目店 |
| 距離 |
288m |
| 周辺施設 |
滋慶医療科学大学院大学 |
| 距離 |
1283m |
| 周辺施設 |
北大阪医療生活協同組合十三病院 |
| 距離 |
688m |
| 周辺施設 |
社会医療法人協和会北大阪病院 |
| 距離 |
950m |
ここから簡単にお問い合わせをすることができます。
(SSLでの暗号化での送信を希望されるお客さまは
こちら
よりお問い合わせください)
お問い合わせを行う前に
「個人情報の取り扱いについて」を必ずお読みください。
「個人情報の取り扱いについて」に同意いただいた場合は「上記にご同意の上 確認画面へ進む」のボタンをクリックしてください。
個人情報の取り扱いについて
皆さまが送付された個人情報はアットホーム(株)のサーバを経由し、お問い合わせ先の不動産会社にメールまたはFAXにて転送されるためアットホーム(株)にも保管されます。アットホーム(株)で保管された個人情報の取り扱いについては、【こちら】をご覧ください。
また、本画面でご記入いただいた個人情報は、お問い合わせ先の不動産会社でも保管します。 お問い合わせ先の不動産会社が保管する個人情報の取り扱いについては、不動産会社に直接お問い合わせください。
大阪府知事免許(1)第64026号 |
|---|
- 交通:
- 地下鉄四つ橋線/肥後橋駅 徒歩3分
- 大阪府大阪市中央区高麗橋4丁目5-8 グローネット淀屋橋201
- TEL:
- 06-6227-1002
- FAX:
- 06-6227-1003
- 所属団体:
- (公社)全日本不動産協会会員(公社)近畿地区不動産公正取引協議会加盟
取引態様:専任媒介  - 50108474
|
- スマートフォンで
この不動産会社を見る

|
- 提携サイト等より掲載されている物件情報につきましては、不動産会社詳細情報にリンクされていないものがあります。
- 物件に関するお問合せは、物件詳細ページの「情報提供会社」に表示されている不動産会社へ直接お願いいたします。
- 間取図は、現況を優先させていただきます。
- 映像は物件の一部を撮影したものです。物件の契約にあたっての最終判断はご自身の判断に基づいて行ってください。
- 仲介手数料について

アットホームは物件情報の適正化に努めております。
内容に誤りがある場合にはこちらへご連絡ください。