宮城県仙台市若林区大和町3丁目(卸町駅)の中古マンション・新築マンション・分譲マンション:物件詳細
交通 所在地 |
駅徒歩 |
価格 |
構造 階建/階 |
間取り 専有面積 |
物件種目 築年月 |
|
仙台市東西線/卸町
宮城県仙台市若林区大和町3丁目
|
10分
|
848万円
|
PC
9階建 / 3階
|
2LDK
56.70m²
|
中古マンション
1974年5月(築51年11ヶ月)
|
|
管理人日勤
|
|
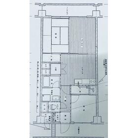
間取図
|
|
<
その他の画像
>
|
| 交通 | 仙台市東西線 卸町駅 徒歩10分 |
|---|
| その他の交通 | 仙台市東西線 薬師堂駅 徒歩14分 仙台市東西線 六丁の目駅 徒歩27分 |
| 所在地 |
宮城県仙台市若林区大和町3丁目
|
| 物件種目 |
中古マンション |
| 価格 |
848万円 |
平米単価 |
14.96万円 |
| 管理費等 |
6,500円 |
修繕積立金 |
7,100円 |
| 借地期間・地代(月額) |
- |
権利金 |
- |
| 敷金または保証金 |
- / - |
維持費等 |
- |
| その他一時金 |
- |
|
|
| 間取り |
2LDK(洋 6・5 LDK 11) |
専有面積 |
56.70m²(壁芯) |
| 階建 / 階 |
9階建 / 3階 |
バルコニー |
6.00m² |
| 築年月 |
1974年5月(築51年11ヶ月)
|
建物構造 |
PC |
| 駐車場 |
空無 |
総戸数 |
125戸 |
| 駐輪場 |
有 無料 |
バイク置き場 |
有 1,000円/月 |
| ペット |
-
|
|
|
| 土地権利 |
所有権 |
敷地面積 |
- |
| 管理形態/管理員の勤務形態 |
全部委託/日勤(陽光ビルサービス㈱) |
国土法届出 |
- |
| アピールポイント |
広々とした延床面積56.7㎡の居室空間、更に洗濯機置場有なのです。また空調の購入や設置の手間が減るエアコン2台以上設置済です。若林大和町のマンションです。2LDKのコンパクトなお部屋です。是非、ご内見下さい。 |
| 建物名・部屋番号 |
宮城野ハイツ二号棟 |
| リフォーム履歴 |
■内装:2025年9月 全室クロス張替え、床(フローリング等)、壁・天井(クロス・塗装等) ※実施年月は最も古い履歴を表示 |
| リノベーション履歴 |
2025年9月 キッチン交換 ※実施年月は最も古い履歴を表示 |
| 瑕疵保証 |
- |
| 瑕疵保険 |
- |
| 評価・証明書 |
- |
| 備考 |
延べ面積:4,818.96m²
|
| エネルギー消費性能 |
- |
| 断熱性能 |
- |
| 目安光熱費 |
- |
| バス・トイレ |
- |
| キッチン |
- |
| 設備・サービス |
エアコン2台以上、バイク置き場、洗濯機置場、給湯、駐輪場、照明器具 |
| その他 |
エレベーター |
| 条件等 |
- |
現況 |
空家 |
| 引渡可能時期 |
相談 |
物件番号 |
6987405204 |
| 仲介手数料 |
不要 |
|
|
| 情報公開日 |
2026年3月22日 |
次回更新予定日 |
2026年4月5日 |
| ケータイ用バーコード |
- スマートフォンでこの物件を見る
- スマートフォンからもこの物件をご覧になれます。
|
※「-」と表示されている項目については、情報提供会社にご確認ください。
ここから簡単にお問い合わせをすることができます。
(SSLでの暗号化での送信を希望されるお客さまは
こちら
よりお問い合わせください)
お問い合わせを行う前に
「個人情報の取り扱いについて」を必ずお読みください。
「個人情報の取り扱いについて」に同意いただいた場合は「上記にご同意の上 確認画面へ進む」のボタンをクリックしてください。
個人情報の取り扱いについて
皆さまが送付された個人情報はアットホーム(株)のサーバを経由し、お問い合わせ先の不動産会社にメールまたはFAXにて転送されるためアットホーム(株)にも保管されます。アットホーム(株)で保管された個人情報の取り扱いについては、【こちら】をご覧ください。
また、本画面でご記入いただいた個人情報は、お問い合わせ先の不動産会社でも保管します。 お問い合わせ先の不動産会社が保管する個人情報の取り扱いについては、不動産会社に直接お問い合わせください。
宮城県知事免許(3)第6211号 |
|---|
- 交通:
- JR東北本線/名取駅 徒歩30分 【バス】20分 下余田公民館前 停歩5分
- 宮城県名取市下余田字飯塚388-1
- TEL:
- 022-762-7226
- FAX:
- 022-762-7227
- 所属団体:
- (公社)宮城県宅地建物取引業協会会員東北地区不動産公正取引協議会加盟
取引態様:売主  - 20007113
|
- スマートフォンで
この不動産会社を見る

|
- 提携サイト等より掲載されている物件情報につきましては、不動産会社詳細情報にリンクされていないものがあります。
- 物件に関するお問合せは、物件詳細ページの「情報提供会社」に表示されている不動産会社へ直接お願いいたします。
- 間取図は、現況を優先させていただきます。
- 映像は物件の一部を撮影したものです。物件の契約にあたっての最終判断はご自身の判断に基づいて行ってください。
- 仲介手数料について

アットホームは物件情報の適正化に努めております。
内容に誤りがある場合にはこちらへご連絡ください。