神奈川県横浜市鶴見区栄町通2丁目(鶴見市場駅)の中古マンション・新築マンション・分譲マンション:物件詳細
交通 所在地 |
駅徒歩 |
価格 |
構造 階建/階 |
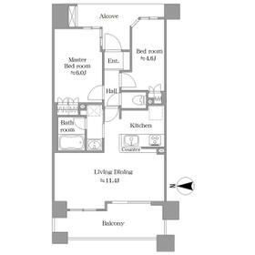
間取り 専有面積 |
物件種目 築年月 |
|
京急本線/鶴見市場
神奈川県横浜市鶴見区栄町通2丁目
|
13分
|
4,080万円
|
RC
6階建 / 3階
|
2LDK
52.50m²
|
中古マンション
2011年2月(築14年10ヶ月)
|
|
ペット相談、管理人日勤
|
|
間取図
|
外観
|
その他の画像
|
| 交通 | 京急本線 鶴見市場駅 徒歩13分 |
|---|
| その他の交通 | JR京浜東北線 鶴見駅 徒歩18分 |
| 所在地 |
神奈川県横浜市鶴見区栄町通2丁目
|
| 物件種目 |
中古マンション |
| 価格 |
4,080万円 |
平米単価 |
77.72万円 |
| 管理費等 |
10,500円 |
修繕積立金 |
14,180円 |
| 借地期間・地代(月額) |
- |
権利金 |
- |
| 敷金または保証金 |
- / - |
維持費等 |
CATV利用料:330円/月、町会費:200円/月 |
| その他一時金 |
- |
|
|
| 間取り |
2LDK(洋 6・4.6 LDK 11.4) |
専有面積 |
52.50m²(壁芯) |
| 階建 / 階 |
6階建 / 3階 |
バルコニー |
10.02m² |
| 築年月 |
2011年2月(築14年10ヶ月)
|
建物構造 |
RC |
| 駐車場 |
- |
総戸数 |
50戸 |
| 駐輪場 |
- |
バイク置き場 |
- |
| ペット |
相談 |
|
|
| 土地権利 |
所有権 |
敷地面積 |
- |
| 管理形態/管理員の勤務形態 |
全部委託/日勤(ナイスコミュニティー㈱) |
国土法届出 |
- |
| アピールポイント |
≪弊社売主物件につき仲介手数料不要≫
■リバービュー住戸につき眺望良好!開放感あり
■複合商業施設、LICOPA鶴見まで約450メートル
■全戸敷地内駐車場付(月額使用料900~8,000円)
≪新規リフォーム内容2025年11月末完了予定≫
ユニットバス交換/キッチン交換/トイレ交換/洗面化粧台交換/防水パン交換/建具交換
フローリング張替/クロス貼替
照明器具設置/レースカーテン設置
~リナイス株式会社はナイス株式会社(東証上場)グループのマンション買取再販会社です~
1950年のナイスグループ創業以来、約54000戸のマンション分譲実績のノウハウを基に優良なリノベーションマンションの供給を行っています。
中古マンションの無料買取査定実施中!(物件によって買取できない場合もございます) |
| 建物名・部屋番号 |
ナイスエスアリーナ横濱鶴見 |
| リフォーム履歴 |
■水回り:2025年11月 キッチン、浴室、トイレ、洗面所 ■内装:2025年11月 内装全面(床・壁・天井・建具) ※実施年月は最も古い履歴を表示 |
| リノベーション履歴 |
- |
| 瑕疵保証 |
- |
| 瑕疵保険 |
- |
| 評価・証明書 |
- |
| 備考 |
主要採光面:西向き
|
| エネルギー消費性能 |
- |
| 断熱性能 |
- |
| 目安光熱費 |
- |
| バス・トイレ |
- |
| キッチン |
カウンターキッチン |
| 設備・サービス |
- |
| その他 |
- |
| 条件等 |
- |
現況 |
空家 |
| 引渡可能時期 |
相談 |
物件番号 |
6987414955 |
| 仲介手数料 |
不要 |
|
|
| 情報公開日 |
2025年11月1日 |
次回更新予定日 |
2025年11月15日 |
| ケータイ用バーコード |
- スマートフォンでこの物件を見る
- スマートフォンからもこの物件をご覧になれます。
|
※「-」と表示されている項目については、情報提供会社にご確認ください。
| 周辺施設 |
セブンイレブン横浜平安町2丁目店 |
| 距離 |
450m |
ここから簡単にお問い合わせをすることができます。
(SSLでの暗号化での送信を希望されるお客さまは
こちら
よりお問い合わせください)
お問い合わせを行う前に
「個人情報の取り扱いについて」を必ずお読みください。
「個人情報の取り扱いについて」に同意いただいた場合は「上記にご同意の上 確認画面へ進む」のボタンをクリックしてください。
個人情報の取り扱いについて
皆さまが送付された個人情報はアットホーム(株)のサーバを経由し、お問い合わせ先の不動産会社にメールまたはFAXにて転送されるためアットホーム(株)にも保管されます。アットホーム(株)で保管された個人情報の取り扱いについては、【こちら】をご覧ください。
また、本画面でご記入いただいた個人情報は、お問い合わせ先の不動産会社でも保管します。 お問い合わせ先の不動産会社が保管する個人情報の取り扱いについては、不動産会社に直接お問い合わせください。
神奈川県知事免許(4)第27293号 |
|---|
- 交通:
- JR京浜東北線/鶴見駅 徒歩6分
- 神奈川県横浜市鶴見区鶴見中央2丁目4-20 ナイスフォーラム鶴見7階
- TEL:
- 045-505-0641
- FAX:
- 045-503-1868
- 所属団体:
- (一社)全国住宅産業協会会員
取引態様:売主  - 00103795
|
- スマートフォンで
この不動産会社を見る

|
- 提携サイト等より掲載されている物件情報につきましては、不動産会社詳細情報にリンクされていないものがあります。
- 物件に関するお問合せは、物件詳細ページの「情報提供会社」に表示されている不動産会社へ直接お願いいたします。
- 間取図は、現況を優先させていただきます。
- 映像は物件の一部を撮影したものです。物件の契約にあたっての最終判断はご自身の判断に基づいて行ってください。
- 仲介手数料について

アットホームは物件情報の適正化に努めております。
内容に誤りがある場合にはこちらへご連絡ください。