福岡県福岡市中央区平尾2丁目(西鉄平尾駅)の中古マンション・新築マンション・分譲マンション:物件詳細
交通 所在地 |
駅徒歩 |
価格 |
構造 階建/階 |
間取り 専有面積 |
物件種目 築年月 |
|
西鉄天神大牟田線/西鉄平尾 [バス利用可] バス 西鉄バス「山荘通」バス停 停歩3分
福岡県福岡市中央区平尾2丁目
|
5分
|
3,498万円
|
RC
15階建 / 14階
|
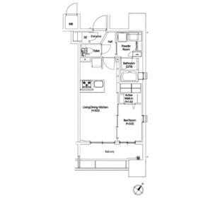
1LDK
34.05m²
|
中古マンション
2023年3月(築3年3ヶ月)
|
|
ペット相談、角部屋、24時間セキュリティー、二重床・二重天井、アウトフレーム工法、24時間換気システム、管理人巡回
|
|
間取図
ペットと暮らせる1LDK/日当たり、風通し、収納スペース◎ 特に洗面室がとにかく素敵です!理想のお部屋を♪
|
外観
築3年の分譲マンション・すぐそこに24時間営業のサニー平尾店がありますよ♪
|
<
その他の画像
>
|
| 交通 | 西鉄天神大牟田線 西鉄平尾駅 徒歩5分 [バス利用可] バス 西鉄バス「山荘通」バス停 停歩3分 |
|---|
| その他の交通 | 地下鉄七隈線 薬院駅 徒歩15分 西鉄天神大牟田線 薬院駅 徒歩15分 |
| 所在地 |
福岡県福岡市中央区平尾2丁目
|
| 物件種目 |
中古マンション |
| 価格 |
3,498万円 |
平米単価 |
102.74万円 |
| 管理費等 |
8,850円 |
修繕積立金 |
3,060円 |
| 借地期間・地代(月額) |
- |
権利金 |
- |
| 敷金または保証金 |
- / - |
維持費等 |
インターネット、町内会、管理会社コミュニティ費:1,570円/月 |
| その他一時金 |
なし |
|
|
| 間取り |
1LDK |
専有面積 |
34.05m²(壁芯) |
| 階建 / 階 |
15階建 / 14階 |
バルコニー |
7.70m² |
| 築年月 |
2023年3月(築3年3ヶ月)
|
建物構造 |
RC |
| 駐車場 |
無 |
総戸数 |
57戸 |
| 駐輪場 |
有 |
バイク置き場 |
有 |
| ペット |
小型犬可・ 猫可 |
|
|
| 土地権利 |
所有権 |
敷地面積 |
- |
| 管理形態/管理員の勤務形態 |
全部委託/巡回(株式会社フージャースリビングサービス) |
国土法届出 |
- |
| アピールポイント |
忙しい日でも無理なく自分時間を楽しみたい。
便利さだけでなく「日常に心地よさを求める」方に届けたい物件です♪
▼立地
・西鉄天神大牟田線「西鉄平尾」駅 徒歩約5分
→「天神」まで約5分◎
▼お部屋について
・角部屋 上層階の1LDK
・南東向きバルコニー 日当たり◎
・キッチン…3つ口コンロ、備え付けカップボード
・洗面…収納豊富、おしゃれな鏡張り、室内干しOK
・お風呂…浴室暖房乾燥機
・収納…ハンガーラックや可動棚を活用しバッグやお洋服、思い出の品も沢山収納できます
・ペットと暮らせる
■月々7万円台~
《 成約特典 》
当社からご購入いただいたお客様へ成約特典をご用意しております!
「選べるカタログギフト3万円相当」高級インテリアショップのカタログギフトもあり、大変ご好評いただいております♪
▼お話だけでもお気軽にどうぞ
・すぐに引っ越す予定はないけど気になる
・住宅ローンや税金を教えて欲しい
・新築も検討してるけど比較したい
・ちょっとだけ見てみたいと
・LINEお友だち登録で簡単相談 >>> 検索ID @025svgfq
《お家探しは納得いくまでじっくりと》 |
| 建物名・部屋番号 |
デュオヴェール平尾 |
| リフォーム履歴 |
- |
| リノベーション履歴 |
- |
| 瑕疵保証 |
- |
| 瑕疵保険 |
- |
| 評価・証明書 |
- |
| 備考 |
主要採光面:南東向き
用途地域:商業地域
|
| エネルギー消費性能 |
- |
| 断熱性能 |
- |
| 目安光熱費 |
- |
| バス・トイレ |
浴室乾燥機、追焚機能、浴室に窓あり |
| キッチン |
カウンターキッチン、3口以上コンロ |
| 設備・サービス |
モニター付オートロック、全居室収納、ウォークインクローゼット、バイク置き場、収納スペース、室内洗濯機置場、シューズインクローゼット、クローゼット、オートロック、ディンプルキー、ダブルロックドア、防犯カメラ、二重床、全居室フローリング、都市ガス、駐輪場、ダウンライト、火災警報器(報知機)、インターネット対応、ケーブルTV、CS、BS端子 |
| その他 |
宅配BOX、エレベーター |
| 条件等 |
- |
現況 |
所有者居住中 |
| 引渡可能時期 |
相談 |
物件番号 |
6987416318 |
| 仲介手数料 |
売買代金の3%+6万円 |
|
|
| 情報公開日 |
2025年11月24日 |
次回更新予定日 |
2026年5月11日 |
| ケータイ用バーコード |
- スマートフォンでこの物件を見る
- スマートフォンからもこの物件をご覧になれます。
|
※「-」と表示されている項目については、情報提供会社にご確認ください。
| 周辺施設 |
マックスバリュエクスプレス平尾店 |
| 距離 |
504m |
| 周辺施設 |
セブンイレブン福岡平尾山荘通り店 |
| 距離 |
61m |
ここから簡単にお問い合わせをすることができます。
(SSLでの暗号化での送信を希望されるお客さまは
こちら
よりお問い合わせください)
お問い合わせを行う前に
「個人情報の取り扱いについて」を必ずお読みください。
「個人情報の取り扱いについて」に同意いただいた場合は「上記にご同意の上 確認画面へ進む」のボタンをクリックしてください。
個人情報の取り扱いについて
皆さまが送付された個人情報はアットホーム(株)のサーバを経由し、お問い合わせ先の不動産会社にメールまたはFAXにて転送されるためアットホーム(株)にも保管されます。アットホーム(株)で保管された個人情報の取り扱いについては、【こちら】をご覧ください。
また、本画面でご記入いただいた個人情報は、お問い合わせ先の不動産会社でも保管します。 お問い合わせ先の不動産会社が保管する個人情報の取り扱いについては、不動産会社に直接お問い合わせください。
福岡県知事免許(1)第20506号 |
|---|
- 交通:
- 西鉄天神大牟田線/薬院駅 徒歩8分
- 福岡県福岡市中央区高砂1丁目17-13 パルム渡辺通り301
- TEL:
- 092-600-2800
- FAX:
- 092-600-2801
- 所属団体:
- (公社)全日本不動産協会会員(一社)九州不動産公正取引協議会加盟
取引態様:専属専任媒介  - 80507594
|
- スマートフォンで
この不動産会社を見る

|
- 提携サイト等より掲載されている物件情報につきましては、不動産会社詳細情報にリンクされていないものがあります。
- 物件に関するお問合せは、物件詳細ページの「情報提供会社」に表示されている不動産会社へ直接お願いいたします。
- 間取図は、現況を優先させていただきます。
- 映像は物件の一部を撮影したものです。物件の契約にあたっての最終判断はご自身の判断に基づいて行ってください。
- 仲介手数料について

アットホームは物件情報の適正化に努めております。
内容に誤りがある場合にはこちらへご連絡ください。