福井県福井市日之出1丁目(新福井駅)の中古マンション・新築マンション・分譲マンション:物件詳細
交通 所在地 |
駅徒歩 |
価格 |
構造 階建/階 |
間取り 専有面積 |
物件種目 築年月 |
えちぜん鉄道勝山線/新福井
福井県福井市日之出1丁目
|
1分
|
830万円
|
SRC
11階建 / 2階
|
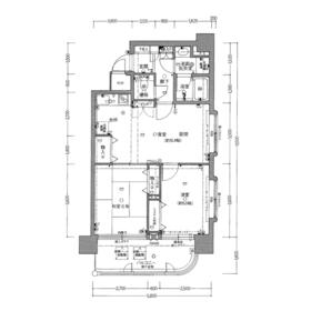
2LDK
46.58m²
|
中古マンション
1991年3月(築34年8ヶ月)
|
角部屋、南向き、管理人日勤
|
間取図
|
外観
|
<
その他の画像
>
|
交通 | えちぜん鉄道勝山線 新福井駅 徒歩1分 |
---|
その他の交通 | ハピラインふくい 福井駅 徒歩7分 JR北陸新幹線 福井駅 徒歩8分 |
所在地 |
福井県福井市日之出1丁目
|
物件種目 |
中古マンション |
価格 |
830万円 |
平米単価 |
17.82万円 |
管理費等 |
12,200円 |
修繕積立金 |
5,200円 |
借地期間・地代(月額) |
- |
権利金 |
- |
敷金または保証金 |
- / - |
維持費等 |
- |
その他一時金 |
- |
|
|
間取り |
2LDK(和 6 洋 5.5 LDK 10.4) |
専有面積 |
46.58m²(内法) |
階建 / 階 |
11階建 / 2階 |
バルコニー |
8.93m² |
築年月 |
1991年3月(築34年8ヶ月)
|
建物構造 |
SRC |
駐車場 |
無 |
総戸数 |
50戸 |
駐輪場 |
有 |
バイク置き場 |
- |
ペット |
-
|
|
|
土地権利 |
所有権 |
敷地面積 |
930.23m² |
管理形態/管理員の勤務形態 |
全部委託/日勤(積村ビル管理㈱) |
国土法届出 |
- |
アピールポイント |
えちぜん鉄道新福井駅まで徒歩1分、JR福井駅まで徒歩7分、各方面へのアクセスが良好で、お出かけにも通勤・通学にも便利な立地です!
スーパー・ドラッグストア、病院や銀行も徒歩圏内にあり、暮らしやすさもおススメポイントです♪ |
建物名・部屋番号 |
ファミール大手町 205 |
リフォーム履歴 |
- |
リノベーション履歴 |
- |
瑕疵保証 |
- |
瑕疵保険 |
- |
評価・証明書 |
- |
備考 |
主要採光面:南向き
用途地域:近隣商業、商業地域
ペット:不可
|
エネルギー消費性能 |
- |
断熱性能 |
- |
目安光熱費 |
- |
バス・トイレ |
- |
キッチン |
システムキッチン、2口コンロ |
設備・サービス |
収納スペース、室内洗濯機置場、モニター付インターホン、防犯カメラ、給湯、都市ガス、エアコン、駐輪場、火災警報器(報知機) |
その他 |
エレベーター |
条件等 |
- |
現況 |
空家 |
引渡可能時期 |
即時 |
物件番号 |
6987458999 |
情報公開日 |
2025年8月28日 |
次回更新予定日 |
2025年10月30日 |
ケータイ用バーコード |
- スマートフォンでこの物件を見る
- スマートフォンからもこの物件をご覧になれます。
|
※「-」と表示されている項目については、情報提供会社にご確認ください。
周辺施設 |
ハニー食市場日の出 |
距離 |
268m |
写真を見る |
周辺施設 |
ファミリーマート福井日之出一丁目店 |
距離 |
174m |
写真を見る |
周辺施設 |
スギ薬局福井大手店 |
距離 |
291m |
写真を見る |
周辺施設 |
福井市立進明中学校 |
距離 |
1077m |
写真を見る |
周辺施設 |
福井市立日之出小学校 |
距離 |
608m |
写真を見る |
周辺施設 |
認定こども園城之橋幼稚園 |
距離 |
547m |
写真を見る |
周辺施設 |
医療法人成蹊会岩井病院 |
距離 |
155m |
写真を見る |
ここから簡単にお問い合わせをすることができます。
(SSLでの暗号化での送信を希望されるお客さまは
こちら
よりお問い合わせください)
お問い合わせを行う前に
「個人情報の取り扱いについて」を必ずお読みください。
「個人情報の取り扱いについて」に同意いただいた場合は「上記にご同意の上 確認画面へ進む」のボタンをクリックしてください。
個人情報の取り扱いについて
皆さまが送付された個人情報はアットホーム(株)のサーバを経由し、お問い合わせ先の不動産会社にメールまたはFAXにて転送されるためアットホーム(株)にも保管されます。アットホーム(株)で保管された個人情報の取り扱いについては、【こちら】をご覧ください。
また、本画面でご記入いただいた個人情報は、お問い合わせ先の不動産会社でも保管します。 お問い合わせ先の不動産会社が保管する個人情報の取り扱いについては、不動産会社に直接お問い合わせください。
国土交通大臣免許(17)第19号 |
---|
- 交通:
- ハピラインふくい/福井駅 徒歩7分
- 福井県福井市中央3丁目1-5
- TEL:
- 0776-23-2300
- FAX:
- 0776-27-7945
- 所属団体:
- (公社)福井県宅地建物取引業協会会員不動産公正取引協議会加盟
取引態様:専任媒介  - 40996087
|
- スマートフォンで
この不動産会社を見る

|
- 提携サイト等より掲載されている物件情報につきましては、不動産会社詳細情報にリンクされていないものがあります。
- 物件に関するお問合せは、物件詳細ページの「情報提供会社」に表示されている不動産会社へ直接お願いいたします。
- 間取図は、現況を優先させていただきます。
- 映像は物件の一部を撮影したものです。物件の契約にあたっての最終判断はご自身の判断に基づいて行ってください。
- 仲介手数料について

アットホームは物件情報の適正化に努めております。
内容に誤りがある場合にはこちらへご連絡ください。