東京都北区赤羽西2丁目(赤羽駅)の中古マンション・新築マンション・分譲マンション:物件詳細
交通 所在地 |
駅徒歩 |
価格 |
構造 階建/階 |
間取り 専有面積 |
物件種目 築年月 |
|
JR埼京線/赤羽
東京都北区赤羽西2丁目
|
5分
|
3,999万円
|
RC
地上5階地下1階建 / 1階
|
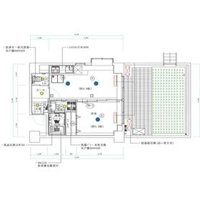
1LDK
36.06m²
|
中古マンション
1987年7月(築38年6ヶ月)
|
|
常時ゴミ出し可能、角部屋、全室2面採光、閑静な住宅街、外観タイル張り、前面棟無、隣接建物距離2m以上、管理人日勤
|
|
間取図
1LDKに間取り変更を含む新規フルリフォーム工事実施中、2025年10月完成予定
|
外観
赤羽駅から徒歩5分の邸宅
|
<
その他の画像
>
|
| 交通 | JR埼京線 赤羽駅 徒歩5分 |
|---|
| その他の交通 | JR京浜東北線 赤羽駅 徒歩5分 東京メトロ南北線 赤羽岩淵駅 徒歩15分 |
| 所在地 |
東京都北区赤羽西2丁目
|
| 物件種目 |
中古マンション |
| 価格 |
3,999万円 |
平米単価 |
110.90万円 |
| 管理費等 |
7,500円 |
修繕積立金 |
12,150円 |
| 借地期間・地代(月額) |
- |
権利金 |
- |
| 敷金または保証金 |
- / - |
維持費等 |
ルーフバルコニー使用料:500円/月 |
| その他一時金 |
- |
|
|
| 間取り |
1LDK |
専有面積 |
36.06m²(壁芯) |
| 階建 / 階 |
地上5階地下1階建 / 1階 |
バルコニー |
30.00m² |
| 築年月 |
1987年7月(築38年6ヶ月)
|
建物構造 |
RC |
| 駐車場 |
空無 |
総戸数 |
27戸 |
| 駐輪場 |
有 2,400円/年 |
バイク置き場 |
有 12,000円/月 |
| ペット |
-
|
|
|
| 土地権利 |
所有権 |
敷地面積 |
1,159.48m² |
| 管理形態/管理員の勤務形態 |
全部委託/日勤(穴吹ハウジングサービス) |
国土法届出 |
- |
| アピールポイント |
2025年10月室内フルリフォーム
住宅ローンなどは遠慮なくご相談ください!
【物件の特徴】
・開放感あふれる!約30㎡のルーフバルコニー付き
・東向きで朝日が差し込む、明るい室内
・2025年10月、1LDKへの間取り変更を含むフルリフォーム完了予定
・ウッドデッキ仕様のバルコニーはまるで庭のようです
・1階住戸ながら目線は実質2階相当、階下は駐車場
・2021年に大規模修繕工事済で管理体制も良好
・24時間ゴミ出し可能で生活利便性◎ |
| 建物名・部屋番号 |
|
| リフォーム履歴 |
■水回り:2025年10月 キッチン、浴室、トイレ、洗面所、給湯器 ■内装:2025年10月 内装全面(床・壁・天井・建具) ■共用部の大規模修繕工事:2021年12月 外壁・内壁・バルコニー等、鉄部 ※実施年月は最も古い履歴を表示 |
| リノベーション履歴 |
- |
| 瑕疵保証 |
- |
| 瑕疵保険 |
- |
| 評価・証明書 |
- |
| 備考 |
主要採光面:東向き
施工会社:株式会社川口土木建築工業
用途地域:1種中高
|
| エネルギー消費性能 |
- |
| 断熱性能 |
- |
| 目安光熱費 |
- |
| バス・トイレ |
オートバス、シャワー付洗面化粧台、温水洗浄便座 |
| キッチン |
システムキッチン、3口以上コンロ |
| 設備・サービス |
エアコン2台以上、バイク置き場、収納スペース、室内洗濯機置場、クローゼット、床下収納、全居室フローリング、シーリングファン、ワイドバルコニー、ルーフバルコニー、ウッドデッキ、駐輪場、照明器具 |
| その他 |
エレベーター |
| 条件等 |
- |
現況 |
空家 |
| 引渡可能時期 |
即時 |
物件番号 |
6987537428 |
| 仲介手数料 |
売買代金の3.3% |
|
|
| 情報公開日 |
2025年9月4日 |
次回更新予定日 |
2025年12月25日 |
| ケータイ用バーコード |
- スマートフォンでこの物件を見る
- スマートフォンからもこの物件をご覧になれます。
|
※「-」と表示されている項目については、情報提供会社にご確認ください。
| 周辺施設 |
成城石井エキュート赤羽みなみ店 |
| 距離 |
384m |
| 周辺施設 |
ミニストップ北区赤羽南2丁目店 |
| 距離 |
485m |
ここから簡単にお問い合わせをすることができます。
(SSLでの暗号化での送信を希望されるお客さまは
こちら
よりお問い合わせください)
お問い合わせを行う前に
「個人情報の取り扱いについて」を必ずお読みください。
「個人情報の取り扱いについて」に同意いただいた場合は「上記にご同意の上 確認画面へ進む」のボタンをクリックしてください。
個人情報の取り扱いについて
皆さまが送付された個人情報はアットホーム(株)のサーバを経由し、お問い合わせ先の不動産会社にメールまたはFAXにて転送されるためアットホーム(株)にも保管されます。アットホーム(株)で保管された個人情報の取り扱いについては、【こちら】をご覧ください。
また、本画面でご記入いただいた個人情報は、お問い合わせ先の不動産会社でも保管します。 お問い合わせ先の不動産会社が保管する個人情報の取り扱いについては、不動産会社に直接お問い合わせください。
東京都知事免許(1)第106755号 |
|---|
- 交通:
- つくばエクスプレス/浅草駅 徒歩4分 【バス】 浅草三丁目 停歩1分
- 東京都台東区千束1丁目6-2 リベール浅草1階
- TEL:
- 0120-502-218
- FAX:
- 03-5808-9762
- 所属団体:
- (公社)東京都宅地建物取引業協会会員(公社)首都圏不動産公正取引協議会加盟
取引態様:媒介  - 00270953
|
- スマートフォンで
この不動産会社を見る

|
- 提携サイト等より掲載されている物件情報につきましては、不動産会社詳細情報にリンクされていないものがあります。
- 物件に関するお問合せは、物件詳細ページの「情報提供会社」に表示されている不動産会社へ直接お願いいたします。
- 間取図は、現況を優先させていただきます。
- 映像は物件の一部を撮影したものです。物件の契約にあたっての最終判断はご自身の判断に基づいて行ってください。
- 仲介手数料について

アットホームは物件情報の適正化に努めております。
内容に誤りがある場合にはこちらへご連絡ください。