神奈川県横浜市磯子区岡村6丁目(弘明寺駅)の中古マンション・新築マンション・分譲マンション:物件詳細
交通 所在地 |
駅徒歩 |
価格 |
構造 階建/階 |
間取り 専有面積 |
物件種目 築年月 |
|
ブルーライン/弘明寺
神奈川県横浜市磯子区岡村6丁目
|
20分
|
1,880万円
|
RC
6階建 / 4階
|
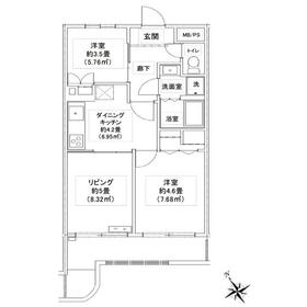
2LDK
49.50m²
|
中古マンション
1987年12月(築38年)
|
|
閑静な住宅街、管理人日勤、高台
|
|
間取図
|
|
<
その他の画像
>
|
| 交通 | ブルーライン 弘明寺駅 徒歩20分 |
|---|
| その他の交通 | 京急本線 上大岡駅 徒歩24分 [バス利用可] バス 13分 横浜岡村郵便局前 停歩4分 ブルーライン 上大岡駅 徒歩26分 |
| 所在地 |
神奈川県横浜市磯子区岡村6丁目
|
| 物件種目 |
中古マンション |
| 価格 |
1,880万円 |
平米単価 |
37.98万円 |
| 管理費等 |
13,600円 |
修繕積立金 |
10,200円 |
| 借地期間・地代(月額) |
- |
権利金 |
- |
| 敷金または保証金 |
- / - |
維持費等 |
- |
| その他一時金 |
- |
|
|
| 間取り |
2LDK |
専有面積 |
49.50m²(壁芯) |
| 階建 / 階 |
6階建 / 4階 |
バルコニー |
7.93m² |
| 築年月 |
1987年12月(築38年)
|
建物構造 |
RC |
| 駐車場 |
無 |
総戸数 |
19戸 |
| 駐輪場 |
有 |
バイク置き場 |
有 |
| ペット |
-
|
|
|
| 土地権利 |
所有権 |
敷地面積 |
734.04m² |
| 管理形態/管理員の勤務形態 |
全部委託/日勤(明和地所コミュニティ株式会社) |
国土法届出 |
- |
| アピールポイント |
■4階部分×南西向き×49.50㎡(2LDK)
■2025年8月内装リフォーム工事実施済み
■現況:空室(内見可能=事前予約制)
■管理会社:明和地所コミュニティ株式会社
■分譲会社:明和地所株式会社
■施工会社:日本建設株式会社
■岡村小学区・藤の木中学区
【リフォーム内容】2025年8月実施
●クロス一部貼替
●バルコニー側洋室床張替、洗面CF張替
●キッチン、浴室、洗面鏡(※洗面水栓、洗面台は既存利用)、給湯器、建具交換
【注意事項】
■固都税額:年額62,107円(土地建物合計)
■駐輪場・バイク置場有(※空き状況は要確認) |
| 建物名・部屋番号 |
クリオホームズ岡村公園 |
| リフォーム履歴 |
■水回り:2025年8月 キッチン、浴室、給湯器 ■内装:2025年8月 床(フローリング等)、壁・天井(クロス・塗装等) クロス一部貼替、バルコニー側洋室床張替、洗面所CF張替 ■共用部の大規模修繕工事:2012年1月 大規模修繕工事 ※実施年月は最も古い履歴を表示 |
| リノベーション履歴 |
- |
| 瑕疵保証 |
- |
| 瑕疵保険 |
- |
| 評価・証明書 |
- |
| 備考 |
主要採光面:南西向き
施工会社:日本建設株式会社
延べ面積:919.80m²
|
| エネルギー消費性能 |
- |
| 断熱性能 |
- |
| 目安光熱費 |
- |
| バス・トイレ |
浴室暖房、浴室乾燥機、追焚機能、シャワー付洗面化粧台、温水洗浄便座 |
| キッチン |
システムキッチン、3口以上コンロ、グリル |
| 設備・サービス |
全居室収納、バイク置き場、収納スペース、室内洗濯機置場、クローゼット、モニター付インターホン、洗濯機置場、給湯、全居室フローリング、都市ガス、駐輪場、人感センサー付照明、照明器具、火災警報器(報知機)、インターネット対応、CATVインターネット、ケーブルTV |
| その他 |
- |
| 条件等 |
- |
現況 |
空家 |
| 引渡可能時期 |
相談 |
物件番号 |
6987552073 |
| 仲介手数料 |
売買代金の3.3%+6.6万円 |
|
|
| 情報公開日 |
2025年9月6日 |
次回更新予定日 |
2025年11月15日 |
| ケータイ用バーコード |
- スマートフォンでこの物件を見る
- スマートフォンからもこの物件をご覧になれます。
|
※「-」と表示されている項目については、情報提供会社にご確認ください。
| 周辺施設 |
セブンイレブン横浜笹堀店 |
| 距離 |
424m |
| 周辺施設 |
セブンイレブン横浜岡村4丁目店 |
| 距離 |
341m |
| 周辺施設 |
クリエイトエス・ディー磯子上笹堀店 |
| 距離 |
590m |
ここから簡単にお問い合わせをすることができます。
(SSLでの暗号化での送信を希望されるお客さまは
こちら
よりお問い合わせください)
お問い合わせを行う前に
「個人情報の取り扱いについて」を必ずお読みください。
「個人情報の取り扱いについて」に同意いただいた場合は「上記にご同意の上 確認画面へ進む」のボタンをクリックしてください。
個人情報の取り扱いについて
皆さまが送付された個人情報はアットホーム(株)のサーバを経由し、お問い合わせ先の不動産会社にメールまたはFAXにて転送されるためアットホーム(株)にも保管されます。アットホーム(株)で保管された個人情報の取り扱いについては、【こちら】をご覧ください。
また、本画面でご記入いただいた個人情報は、お問い合わせ先の不動産会社でも保管します。 お問い合わせ先の不動産会社が保管する個人情報の取り扱いについては、不動産会社に直接お問い合わせください。
東京都知事免許(2)第101138号 |
|---|
- 交通:
- JR山手線/渋谷駅
- 東京都渋谷区渋谷3丁目6-2 エクラート渋谷ビル8階
- TEL:
- 03-6403-3868
- 所属団体:
- (公社)東京都宅地建物取引業協会会員(公社)首都圏不動産公正取引協議会加盟
取引態様:媒介  - 00268736
|
- スマートフォンで
この不動産会社を見る

|
- 提携サイト等より掲載されている物件情報につきましては、不動産会社詳細情報にリンクされていないものがあります。
- 物件に関するお問合せは、物件詳細ページの「情報提供会社」に表示されている不動産会社へ直接お願いいたします。
- 間取図は、現況を優先させていただきます。
- 映像は物件の一部を撮影したものです。物件の契約にあたっての最終判断はご自身の判断に基づいて行ってください。
- 仲介手数料について

アットホームは物件情報の適正化に努めております。
内容に誤りがある場合にはこちらへご連絡ください。