東京都新宿区新宿7丁目(東新宿駅)の中古マンション・新築マンション・分譲マンション:物件詳細
交通 所在地 |
駅徒歩 |
価格 |
構造 階建/階 |
間取り 専有面積 |
物件種目 築年月 |
|
都営大江戸線/東新宿
東京都新宿区新宿7丁目
|
2分
|
9,000万円
|
RC
地上29階地下1階建 / 9階
|
1SLDK
59.11m²
|
中古マンション
オーナーチェンジ
2004年2月(築21年11ヶ月)
|
|
ペット相談、常時ゴミ出し可能、角部屋、閑静な住宅街、管理人常駐
|
|
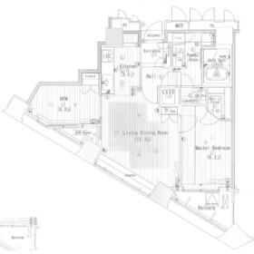
間取図
|
|
その他の画像
|
| 交通 | 都営大江戸線 東新宿駅 徒歩2分 |
|---|
| その他の交通 | 東京メトロ副都心線 東新宿駅 徒歩4分 西武新宿線 西武新宿駅 徒歩12分 |
| 所在地 |
東京都新宿区新宿7丁目
|
| 物件種目 |
中古マンション |
| 価格 |
9,000万円 |
平米単価 |
152.26万円 |
| 管理費等 |
21,340円 |
修繕積立金 |
22,520円 |
| 借地期間・地代(月額) |
- |
権利金 |
- |
| 敷金または保証金 |
- / - |
維持費等 |
インターネット利用料:1,944円/月、町会費負担金:100円/月 |
| その他一時金 |
なし |
|
|
| 間取り |
1SLDK(洋 6.2 S 4.3) |
専有面積 |
59.11m²(壁芯) |
| 階建 / 階 |
地上29階地下1階建 / 9階 |
バルコニー |
4.27m² |
| 築年月 |
2004年2月(築21年11ヶ月)
|
建物構造 |
RC |
| 駐車場 |
有 40,000円/月 |
総戸数 |
145戸 |
| 駐輪場 |
有 400円/月 |
バイク置き場 |
有 4,000円/月 |
| ペット |
小型犬可・ 猫可・ 住戸1匹まで可、大きさ制限有 |
|
|
| 土地権利 |
所有権 |
敷地面積 |
- |
| 管理形態/管理員の勤務形態 |
全部委託/常駐(三菱地所コミュニティ株式会社) |
国土法届出 |
- |
| アピールポイント |
お探しの方には嬉しいペット(小型犬)相談可。フットワークが軽くなる東新宿駅徒歩2分だから、毎日の通勤通学がラク。また受け取りに心配なしの宅配BOX付で、その上閑静な住宅街立地の物件だから、騒々しい街の喧噪から離れて生活できます。ちなみに早起き苦手な方にはおすすめの常時ゴミ出し可の住戸です。カップルにもゆとりの独身生活にもぴったりの1SLDK。是非その目でお確かめください。 |
| 建物名・部屋番号 |
新宿アインスタワー |
| リフォーム履歴 |
- |
| リノベーション履歴 |
- |
| 瑕疵保証 |
- |
| 瑕疵保険 |
- |
| 評価・証明書 |
- |
| 備考 |
主要採光面:西向き
用途地域:商業地域、1種住居
利回り:3.06%
年間予定賃料収入:276万円
|
| エネルギー消費性能 |
- |
| 断熱性能 |
- |
| 目安光熱費 |
- |
| バス・トイレ |
浴室暖房、浴室乾燥機、追焚機能、温水洗浄便座 |
| キッチン |
IHクッキングヒーター |
| 設備・サービス |
モニター付オートロック、ウォークインクローゼット、床暖房、バイク置き場、収納スペース、室内洗濯機置場、オートロック、モニター付インターホン、ディンプルキー、全居室フローリング、都市ガス、エアコン、駐輪場、インターネット対応、ケーブルTV |
| その他 |
宅配BOX、エレベーター2基以上、内廊下、エレベーター、各フロアゴミ捨て場所あり |
| 条件等 |
オーナーチェンジ |
現況 |
賃貸中 |
| 引渡可能時期 |
即時 |
物件番号 |
6987554459 |
| 情報公開日 |
2025年10月27日 |
次回更新予定日 |
2025年12月22日 |
| ケータイ用バーコード |
- スマートフォンでこの物件を見る
- スマートフォンからもこの物件をご覧になれます。
|
※「-」と表示されている項目については、情報提供会社にご確認ください。
| 周辺施設 |
セブンイレブン新宿7丁目店 |
| 距離 |
29m |
ここから簡単にお問い合わせをすることができます。
(SSLでの暗号化での送信を希望されるお客さまは
こちら
よりお問い合わせください)
お問い合わせを行う前に
「個人情報の取り扱いについて」を必ずお読みください。
「個人情報の取り扱いについて」に同意いただいた場合は「上記にご同意の上 確認画面へ進む」のボタンをクリックしてください。
個人情報の取り扱いについて
皆さまが送付された個人情報はアットホーム(株)のサーバを経由し、お問い合わせ先の不動産会社にメールまたはFAXにて転送されるためアットホーム(株)にも保管されます。アットホーム(株)で保管された個人情報の取り扱いについては、【こちら】をご覧ください。
また、本画面でご記入いただいた個人情報は、お問い合わせ先の不動産会社でも保管します。 お問い合わせ先の不動産会社が保管する個人情報の取り扱いについては、不動産会社に直接お問い合わせください。
東京都知事免許(1)第110823号 |
|---|
- 交通:
- 都営大江戸線/赤羽橋駅 徒歩3分
- 東京都港区三田1丁目4-28 三田国際ビル24階
- TEL:
- 03-6453-8142
- FAX:
- 03-6453-8132
- 所属団体:
- (公社)全日本不動産協会会員(公社)首都圏不動産公正取引協議会加盟
取引態様:専任媒介  - 00277583
|
- スマートフォンで
この不動産会社を見る

|
- 提携サイト等より掲載されている物件情報につきましては、不動産会社詳細情報にリンクされていないものがあります。
- 物件に関するお問合せは、物件詳細ページの「情報提供会社」に表示されている不動産会社へ直接お願いいたします。
- 間取図は、現況を優先させていただきます。
- 映像は物件の一部を撮影したものです。物件の契約にあたっての最終判断はご自身の判断に基づいて行ってください。
- 仲介手数料について

アットホームは物件情報の適正化に努めております。
内容に誤りがある場合にはこちらへご連絡ください。