京都府京都市中京区西ノ京南円町(円町駅)の中古マンション・新築マンション・分譲マンション:物件詳細
交通 所在地 |
駅徒歩 |
価格 |
構造 階建/階 |
間取り 専有面積 |
物件種目 築年月 |
JR山陰本線/円町
京都府京都市中京区西ノ京南円町
|
2分
|
2,750万円
|
RC
7階建 / 3階
|
1DK
29.05m²
|
新築マンション
2025年12月
|
ペット相談、常時ゴミ出し可能、角部屋、24時間セキュリティー、24時間換気システム、管理人巡回
|
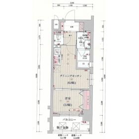
間取図
|
外観
完成イメージ画像
|
その他の画像
|
交通 | JR山陰本線 円町駅 徒歩2分 |
---|
その他の交通 | 地下鉄東西線 西大路御池駅 徒歩10分 |
所在地 |
京都府京都市中京区西ノ京南円町
|
物件種目 |
新築マンション |
価格 |
2,750万円 |
平米単価 |
94.67万円 |
管理費等 |
6,970円 |
修繕積立金 |
2,320円 |
借地期間・地代(月額) |
- |
権利金 |
- |
敷金または保証金 |
- / - |
維持費等 |
- |
その他一時金 |
- |
|
|
間取り |
1DK(洋 4 DK 7.5) |
専有面積 |
29.05m²(壁芯) |
階建 / 階 |
7階建 / 3階 |
バルコニー |
5.25m² |
築年月 |
2025年12月
|
建物構造 |
RC |
駐車場 |
無 |
総戸数 |
37戸 |
駐輪場 |
有 |
バイク置き場 |
有 |
ペット |
小型犬可・ 猫可 |
|
|
土地権利 |
所有権 |
敷地面積 |
270.94m² |
管理形態/管理員の勤務形態 |
全部委託/巡回(日本ベラジスト株式会社) |
国土法届出 |
- |
アピールポイント |
■JR山陰本線「円町駅」徒歩2分、地下鉄東西線「西大路御池駅」徒歩10分
■市バスも本数が多く便利
■コンビニ、ドラッグストア徒歩5分以内、スーパー徒歩6分
■モニター付きオートロック、ディンプルキー、防犯カメラでセキュリティも安心
■お住まい用、セカンドハウス(ホテル代わり・進学のお子様用)、収益として |
建物名・部屋番号 |
ベラジオ雅び京都円町駅前 306 |
リフォーム履歴 |
- |
リノベーション履歴 |
- |
瑕疵保証 |
- |
瑕疵保険 |
- |
評価・証明書 |
- |
備考 |
主要採光面:北向き
施工会社:株式会社メルディアDC
用途地域:商業地域
|
エネルギー消費性能 |
- |
断熱性能 |
- |
目安光熱費 |
- |
バス・トイレ |
浴室暖房、浴室乾燥機、シャワー付洗面化粧台、温水洗浄便座 |
キッチン |
システムキッチン、2口コンロ |
設備・サービス |
モニター付オートロック、バイク置き場、収納スペース、室内洗濯機置場、クローゼット、オートロック、ディンプルキー、防犯カメラ、給湯、クッションフロア、都市ガス、可動間仕切り、エアコン、駐輪場、火災警報器(報知機) |
その他 |
宅配BOX、エレベーター |
条件等 |
- |
現況 |
未完成 |
引渡可能時期 |
指定有り2026年1月31日 |
物件番号 |
6987565793 |
情報公開日 |
2025年9月22日 |
次回更新予定日 |
2025年11月1日 |
ケータイ用バーコード |
- スマートフォンでこの物件を見る
- スマートフォンからもこの物件をご覧になれます。
|
※「-」と表示されている項目については、情報提供会社にご確認ください。
周辺施設 |
セブンイレブン |
距離 |
130m |
写真を見る |
周辺施設 |
阪急オアシス |
距離 |
450m |
写真を見る |
ここから簡単にお問い合わせをすることができます。
(SSLでの暗号化での送信を希望されるお客さまは
こちら
よりお問い合わせください)
お問い合わせを行う前に
「個人情報の取り扱いについて」を必ずお読みください。
「個人情報の取り扱いについて」に同意いただいた場合は「上記にご同意の上 確認画面へ進む」のボタンをクリックしてください。
個人情報の取り扱いについて
皆さまが送付された個人情報はアットホーム(株)のサーバを経由し、お問い合わせ先の不動産会社にメールまたはFAXにて転送されるためアットホーム(株)にも保管されます。アットホーム(株)で保管された個人情報の取り扱いについては、【こちら】をご覧ください。
また、本画面でご記入いただいた個人情報は、お問い合わせ先の不動産会社でも保管します。 お問い合わせ先の不動産会社が保管する個人情報の取り扱いについては、不動産会社に直接お問い合わせください。
国土交通大臣免許(4)第7329号 |
---|
- 交通:
- 阪急京都線/烏丸駅 徒歩3分
- 京都府京都市下京区室町通仏光寺上る白楽天町515 ベラジオ四条烏丸Ⅲ1階
- TEL:
- 075-744-0736
- FAX:
- 075-744-0728
- 所属団体:
- (公社)全日本不動産協会会員(一社)マンション管理業協会会員不動産公正取引協議会加盟
取引態様:売主  - 50023837
|
- スマートフォンで
この不動産会社を見る

|
- 提携サイト等より掲載されている物件情報につきましては、不動産会社詳細情報にリンクされていないものがあります。
- 物件に関するお問合せは、物件詳細ページの「情報提供会社」に表示されている不動産会社へ直接お願いいたします。
- 間取図は、現況を優先させていただきます。
- 映像は物件の一部を撮影したものです。物件の契約にあたっての最終判断はご自身の判断に基づいて行ってください。
- 仲介手数料について

アットホームは物件情報の適正化に努めております。
内容に誤りがある場合にはこちらへご連絡ください。