東京都港区白金1丁目(白金高輪駅)の中古マンション・新築マンション・分譲マンション:物件詳細
交通 所在地 |
駅徒歩 |
価格 |
構造 階建/階 |
間取り 専有面積 |
物件種目 築年月 |
|
都営三田線/白金高輪
東京都港区白金1丁目
|
3分
|
43,800万円
|
RC
地上45階地下1階建 / 38階
|
3LDK
80.82m²
|
中古マンション
2023年2月(築2年11ヶ月)
|
|
ペット相談、フロントサービス、南向き、24時間セキュリティー、閑静な住宅街、管理人常駐
|
|
≪オープンルーム/モデルルーム≫【開催期間】2025年9月9日~2925年12月9日 【時間】10:00~19:00 ≪現地案内会≫現地ご案内のお客様はご予約にて承ります。
|
|
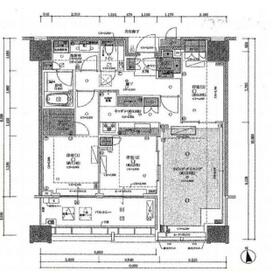
間取図
|
外観
|
その他の画像
|
| 交通 | 都営三田線 白金高輪駅 徒歩3分 |
|---|
| その他の交通 | 東京メトロ南北線 白金高輪駅 徒歩3分 都営浅草線 泉岳寺駅 徒歩14分 |
| 所在地 |
東京都港区白金1丁目
|
| 物件種目 |
中古マンション |
| 価格 |
43,800万円 |
平米単価 |
541.95万円 |
| 管理費等 |
31,228円 |
修繕積立金 |
10,428円 |
| 借地期間・地代(月額) |
- |
権利金 |
- |
| 敷金または保証金 |
- / - |
維持費等 |
- |
| その他一時金 |
- |
|
|
| 間取り |
3LDK(洋 7.1・5.5・5) |
専有面積 |
80.82m²(壁芯) |
| 階建 / 階 |
地上45階地下1階建 / 38階 |
バルコニー |
11.20m² |
| 築年月 |
2023年2月(築2年11ヶ月)
|
建物構造 |
RC |
| 駐車場 |
- |
総戸数 |
1,247戸 |
| 駐輪場 |
- |
バイク置き場 |
- |
| ペット |
細則あり |
|
|
| 土地権利 |
所有権 |
敷地面積 |
- |
| 管理形態/管理員の勤務形態 |
全部委託/常駐 |
国土法届出 |
- |
| アピールポイント |
■窓からは開放感あふれる眺望が広がり、東京タワーを望めます。
■フィットネスジムやシアタールームなどの共用施設が充実しています。
■食器洗乾燥機・ディスポーザー・浴室乾燥機など家事を支える便利な設備が揃っています。
■床暖房付き!寒い季節でも快適に過ごせます。
■収納力の高いシューズインクローゼットで玄関まわりがすっきり片付きます。
■留守中でも荷物を受け取れる、便利な宅配ボックス付きです。
□1階にスーパーがあるので、エレベーターを利用するだけでお買い物に行けます。
□徒歩圏内に日常生活に便利な施設が揃い、快適な暮らしを支える環境が整っています。
□24時間有人管理でセキュリティーも安心です。
□児童館や図書館が徒歩圏内にあり、親子で安心して過ごせます。
□都立芝公園まで徒歩約13分。遊具や四季折々の景色を楽しめます。
♪現地内覧予約受付中です♪
【資料請求】は上記ボタンよりお進みください。
電話からは⇒TEL0120-002-237【通話料無料】
♪ご案内内容の目安になります。♪
□現地/物件見学(30分~)
□資金計画のご相談(30分~)
□ご希望条件のご相談(15分~) |
| 建物名・部屋番号 |
|
| リフォーム履歴 |
- |
| リノベーション履歴 |
- |
| 瑕疵保証 |
- |
| 瑕疵保険 |
- |
| 評価・証明書 |
- |
| 備考 |
主要採光面:南向き
用途地域:1種住居
|
| エネルギー消費性能 |
- |
| 断熱性能 |
- |
| 目安光熱費 |
- |
| バス・トイレ |
浴室乾燥機、温水洗浄便座 |
| キッチン |
システムキッチン、独立型キッチン、食器乾燥機、ディスポーザー、3口以上コンロ |
| 設備・サービス |
収納スペース、室内洗濯機置場、シューズインクローゼット、クローゼット、オートロック、モニター付インターホン、非接触型ICカードキー、防犯カメラ、全居室フローリング、都市ガス |
| その他 |
宅配BOX、ペット用施設、キッズルーム、共用シアタールーム、共用ゲストルーム、エレベーター |
| 条件等 |
- |
現況 |
所有者居住中 |
| 引渡可能時期 |
相談 |
物件番号 |
6987605067 |
| 情報公開日 |
2025年9月11日 |
次回更新予定日 |
2025年12月28日 |
| ケータイ用バーコード |
- スマートフォンでこの物件を見る
- スマートフォンからもこの物件をご覧になれます。
|
※「-」と表示されている項目については、情報提供会社にご確認ください。
ここから簡単にお問い合わせをすることができます。
(SSLでの暗号化での送信を希望されるお客さまは
こちら
よりお問い合わせください)
お問い合わせを行う前に
「個人情報の取り扱いについて」を必ずお読みください。
「個人情報の取り扱いについて」に同意いただいた場合は「上記にご同意の上 確認画面へ進む」のボタンをクリックしてください。
個人情報の取り扱いについて
皆さまが送付された個人情報はアットホーム(株)のサーバを経由し、お問い合わせ先の不動産会社にメールまたはFAXにて転送されるためアットホーム(株)にも保管されます。アットホーム(株)で保管された個人情報の取り扱いについては、【こちら】をご覧ください。
また、本画面でご記入いただいた個人情報は、お問い合わせ先の不動産会社でも保管します。 お問い合わせ先の不動産会社が保管する個人情報の取り扱いについては、不動産会社に直接お問い合わせください。
東京都知事免許(3)第92860号 |
|---|
- 交通:
- JR山手線/五反田駅 徒歩6分
- 東京都品川区西五反田7丁目7-2 エスティメゾン五反田201
- TEL:
- 0120-00-2237
- FAX:
- 03-6417-9616
- 所属団体:
- (公社)全日本不動産協会会員(公社)首都圏不動産公正取引協議会加盟
取引態様:媒介  - 00104656
|
- スマートフォンで
この不動産会社を見る

|
- 提携サイト等より掲載されている物件情報につきましては、不動産会社詳細情報にリンクされていないものがあります。
- 物件に関するお問合せは、物件詳細ページの「情報提供会社」に表示されている不動産会社へ直接お願いいたします。
- 間取図は、現況を優先させていただきます。
- 映像は物件の一部を撮影したものです。物件の契約にあたっての最終判断はご自身の判断に基づいて行ってください。
- 仲介手数料について

アットホームは物件情報の適正化に努めております。
内容に誤りがある場合にはこちらへご連絡ください。