東京都品川区東品川3丁目(天王洲アイル駅)の中古マンション・新築マンション・分譲マンション:物件詳細
交通 所在地 |
駅徒歩 |
価格 |
構造 階建/階 |
間取り 専有面積 |
物件種目 築年月 |
|
りんかい線/天王洲アイル
東京都品川区東品川3丁目
|
7分
|
12,800万円
|
RC
地上31階地下1階建 / 26階
|
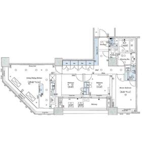
3LDK
97.59m²
|
中古マンション
オーナーチェンジ
2005年2月(築20年9ヶ月)
|
|
ペット相談、常時ゴミ出し可能、角部屋、24時間セキュリティー、免震構造、24時間換気システム、管理人常駐
|
| 交通 | りんかい線 天王洲アイル駅 徒歩7分 |
|---|
| その他の交通 | 京急本線 新馬場駅 徒歩8分 |
| 所在地 |
東京都品川区東品川3丁目
|
| 物件種目 |
中古マンション |
| 価格 |
12,800万円 |
平米単価 |
131.17万円 |
| 管理費等 |
25,896円 |
修繕積立金 |
31,200円 |
| 借地期間・地代(月額) |
- |
権利金 |
- |
| 敷金または保証金 |
- / - |
維持費等 |
- |
| その他一時金 |
- |
|
|
| 間取り |
3LDK(洋 6・5.2・8 LDK 19.6) |
専有面積 |
97.59m²(壁芯) |
| 階建 / 階 |
地上31階地下1階建 / 26階 |
バルコニー |
9.05m² |
| 築年月 |
2005年2月(築20年9ヶ月)
|
建物構造 |
RC |
| 駐車場 |
有 38,000円/月 |
総戸数 |
501戸 |
| 駐輪場 |
- |
バイク置き場 |
- |
| ペット |
小型犬可 |
|
|
| 土地権利 |
所有権 |
敷地面積 |
10,694.71m² |
| 管理形態/管理員の勤務形態 |
全部委託/常駐(伊藤忠アーバンコミュニティ) |
国土法届出 |
- |
| アピールポイント |
お探しの方には嬉しいペット(小型犬)相談可。広々とした延床面積97.59㎡の居室空間、更にご近所迷惑を気にせず騒げる共用パーティルーム利用可なので、ちょっと盛り上がり過ぎてもお隣に気兼ね不要なのがgoodです。また留守番いらずの宅配BOX付で、その上横にグラグラする揺れに強い免震構造採用だから、免震部材が揺れを抑えて建物内部の安心を守ります。ちなみにお出かけの多い人も助かる常時ゴミ出し可です。家族が帰宅を焦がれる3LDK。ご案内いたしますのでお気軽にご連絡ください。 |
| 建物名・部屋番号 |
ラグナタワー |
| リフォーム履歴 |
- |
| リノベーション履歴 |
- |
| 瑕疵保証 |
- |
| 瑕疵保険 |
- |
| 評価・証明書 |
- |
| 備考 |
施工会社:五洋建設(株)
用途地域:準工業
利回り:2.79%
年間予定賃料収入:357.6万円
|
| エネルギー消費性能 |
- |
| 断熱性能 |
- |
| 目安光熱費 |
- |
| バス・トイレ |
浴室暖房、浴室乾燥機、追焚機能、温水洗浄便座、浴室に窓あり |
| キッチン |
アイランドキッチン、カウンターキッチン、食器洗浄乾燥機、3口以上コンロ |
| 設備・サービス |
全居室収納、ウォークインクローゼット、エアコン2台以上、床暖房、収納スペース、室内洗濯機置場、トランクルーム、シューズインクローゼット、オートロック、モニター付インターホン、全居室フローリング、都市ガス、暖房、冷房 |
| その他 |
宅配BOX、共用ゲストルーム、共用パーティルーム、内廊下、エレベーター、各フロアゴミ捨て場所あり |
| 条件等 |
オーナーチェンジ |
現況 |
賃貸中 |
| 引渡可能時期 |
即時 |
物件番号 |
6987631911 |
| 情報公開日 |
2025年9月12日 |
次回更新予定日 |
2025年11月10日 |
| ケータイ用バーコード |
- スマートフォンでこの物件を見る
- スマートフォンからもこの物件をご覧になれます。
|
※「-」と表示されている項目については、情報提供会社にご確認ください。
ここから簡単にお問い合わせをすることができます。
(SSLでの暗号化での送信を希望されるお客さまは
こちら
よりお問い合わせください)
お問い合わせを行う前に
「個人情報の取り扱いについて」を必ずお読みください。
「個人情報の取り扱いについて」に同意いただいた場合は「上記にご同意の上 確認画面へ進む」のボタンをクリックしてください。
個人情報の取り扱いについて
皆さまが送付された個人情報はアットホーム(株)のサーバを経由し、お問い合わせ先の不動産会社にメールまたはFAXにて転送されるためアットホーム(株)にも保管されます。アットホーム(株)で保管された個人情報の取り扱いについては、【こちら】をご覧ください。
また、本画面でご記入いただいた個人情報は、お問い合わせ先の不動産会社でも保管します。 お問い合わせ先の不動産会社が保管する個人情報の取り扱いについては、不動産会社に直接お問い合わせください。
愛知県知事免許(1)第25371号 |
|---|
- 交通:
- 名古屋市名城線/矢場町駅 徒歩8分
- 愛知県名古屋市中区栄3丁目35番47号502号室
- TEL:
- 052-684-8967
- 所属団体:
- (公社)全日本不動産協会会員東海不動産公正取引協議会加盟
取引態様:媒介  - 40410775
|
- スマートフォンで
この不動産会社を見る

|
- 提携サイト等より掲載されている物件情報につきましては、不動産会社詳細情報にリンクされていないものがあります。
- 物件に関するお問合せは、物件詳細ページの「情報提供会社」に表示されている不動産会社へ直接お願いいたします。
- 間取図は、現況を優先させていただきます。
- 映像は物件の一部を撮影したものです。物件の契約にあたっての最終判断はご自身の判断に基づいて行ってください。
- 仲介手数料について

アットホームは物件情報の適正化に努めております。
内容に誤りがある場合にはこちらへご連絡ください。