東京都荒川区西尾久4丁目(田端駅)の中古マンション・新築マンション・分譲マンション:物件詳細
交通 所在地 |
駅徒歩 |
価格 |
構造 階建/階 |
間取り 専有面積 |
物件種目 築年月 |
|
JR山手線/田端
東京都荒川区西尾久4丁目
|
12分
|
4,380万円
|
SRC
10階建 / 2階
|
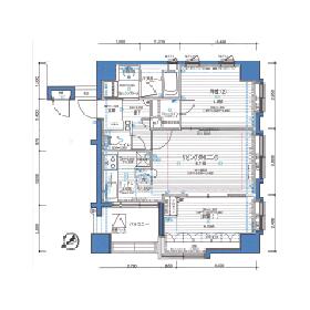
2DK
50.54m²
|
中古マンション
オーナーチェンジ
2001年10月(築24年3ヶ月)
|
|
角部屋、3面採光、管理人巡回
|
|
間取図
|
|
その他の画像
|
| 交通 | JR山手線 田端駅 徒歩12分 |
|---|
| その他の交通 | JR東北本線 尾久駅 徒歩8分 |
| 所在地 |
東京都荒川区西尾久4丁目
|
| 物件種目 |
中古マンション |
| 価格 |
4,380万円 |
平米単価 |
86.67万円 |
| 管理費等 |
12,080円 |
修繕積立金 |
10,260円 |
| 借地期間・地代(月額) |
- |
権利金 |
- |
| 敷金または保証金 |
- / - |
維持費等 |
- |
| その他一時金 |
- |
|
|
| 間取り |
2DK(洋 6・6 DK 8.1) |
専有面積 |
50.54m²(壁芯) |
| 階建 / 階 |
10階建 / 2階 |
バルコニー |
5.40m² |
| 築年月 |
2001年10月(築24年3ヶ月)
|
建物構造 |
SRC |
| 駐車場 |
- |
総戸数 |
27戸 |
| 駐輪場 |
- |
バイク置き場 |
- |
| ペット |
-
|
|
|
| 土地権利 |
所有権 |
敷地面積 |
260.06m² |
| 管理形態/管理員の勤務形態 |
全部委託/巡回(国土管理株式会社) |
国土法届出 |
- |
| アピールポイント |
広々とした延床面積50.54㎡の居室空間、更に大きな荷物も収納できるウォークインクロゼット有なので、分厚いコートなど冬物の収納に便利です。またシステムキッチン付で、その上1日を通して常に自然光を室内に取り入れられる3面採光のとれる住戸だから、「とにかくお日様重視」という方にぴったりです。ちなみにしつこい訪問販売や勧誘も断りやすいオートロック仕様です。オーナーチェンジ物件。 |
| 建物名・部屋番号 |
ベルジェ田端 |
| リフォーム履歴 |
- |
| リノベーション履歴 |
- |
| 瑕疵保証 |
- |
| 瑕疵保険 |
- |
| 評価・証明書 |
- |
| 備考 |
主要採光面:南西向き
用途地域:商業地域
利回り:3.69%
年間予定賃料収入:162万円
|
| エネルギー消費性能 |
- |
| 断熱性能 |
- |
| 目安光熱費 |
- |
| バス・トイレ |
- |
| キッチン |
システムキッチン、2口コンロ |
| 設備・サービス |
ウォークインクローゼット、収納スペース、室内洗濯機置場、クローゼット、オートロック、モニター付インターホン、給湯、全居室フローリング、都市ガス、エアコン、ワイドバルコニー、火災警報器(報知機) |
| その他 |
エレベーター |
| 条件等 |
オーナーチェンジ |
現況 |
賃貸中 |
| 引渡可能時期 |
相談 |
物件番号 |
6987653905 |
| 情報公開日 |
2025年9月18日 |
次回更新予定日 |
2025年12月13日 |
| ケータイ用バーコード |
- スマートフォンでこの物件を見る
- スマートフォンからもこの物件をご覧になれます。
|
※「-」と表示されている項目については、情報提供会社にご確認ください。
| 周辺施設 |
セブンイレブン荒川西尾久4丁目店 |
| 距離 |
292m |
| 周辺施設 |
ファミリーマート荒川西尾久一丁目店 |
| 距離 |
307m |
| 周辺施設 |
ファミリーマート田端新町三丁目店 |
| 距離 |
307m |
| 周辺施設 |
ウェルパーク荒川西尾久店 |
| 距離 |
380m |
| 周辺施設 |
マクドナルド明治通り尾久店 |
| 距離 |
356m |
ここから簡単にお問い合わせをすることができます。
(SSLでの暗号化での送信を希望されるお客さまは
こちら
よりお問い合わせください)
お問い合わせを行う前に
「個人情報の取り扱いについて」を必ずお読みください。
「個人情報の取り扱いについて」に同意いただいた場合は「上記にご同意の上 確認画面へ進む」のボタンをクリックしてください。
個人情報の取り扱いについて
皆さまが送付された個人情報はアットホーム(株)のサーバを経由し、お問い合わせ先の不動産会社にメールまたはFAXにて転送されるためアットホーム(株)にも保管されます。アットホーム(株)で保管された個人情報の取り扱いについては、【こちら】をご覧ください。
また、本画面でご記入いただいた個人情報は、お問い合わせ先の不動産会社でも保管します。 お問い合わせ先の不動産会社が保管する個人情報の取り扱いについては、不動産会社に直接お問い合わせください。
東京都知事免許(3)第98074号 |
|---|
- 交通:
- JR山手線/池袋駅 徒歩1分
- 東京都豊島区西池袋5丁目3-10 エステート市川
- TEL:
- 03-6907-3873
- FAX:
- 03-6907-3822
- 所属団体:
- (公社)東京都宅地建物取引業協会会員(公社)首都圏不動産公正取引協議会加盟
取引態様:媒介  - 00264628
|
- スマートフォンで
この不動産会社を見る

|
- 提携サイト等より掲載されている物件情報につきましては、不動産会社詳細情報にリンクされていないものがあります。
- 物件に関するお問合せは、物件詳細ページの「情報提供会社」に表示されている不動産会社へ直接お願いいたします。
- 間取図は、現況を優先させていただきます。
- 映像は物件の一部を撮影したものです。物件の契約にあたっての最終判断はご自身の判断に基づいて行ってください。
- 仲介手数料について

アットホームは物件情報の適正化に努めております。
内容に誤りがある場合にはこちらへご連絡ください。