愛知県知立市新富1丁目(知立駅)の中古マンション・新築マンション・分譲マンション:物件詳細
交通 所在地 |
駅徒歩 |
価格 |
構造 階建/階 |
間取り 専有面積 |
物件種目 築年月 |
|
名鉄名古屋本線/知立
愛知県知立市新富1丁目
|
4分
|
1,580万円
|
SRC
8階建 / 6階
|
3LDK
66.05m²
|
中古マンション
1990年3月(築35年10ヶ月)
|
|
角部屋、南向き、管理人巡回
|
|
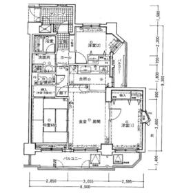
間取図
暮らしやすさを考えた間取り設計。動線もスムーズで、日々の生活が快適に過ごせる配置になっています。
|
キッチン
清潔感のあるシステムキッチン。広々とした作業スペースと収納力で、毎日の料理もはかどります。
|
<
その他の画像
>
|
| 交通 | 名鉄名古屋本線 知立駅 徒歩4分 |
|---|
| その他の交通 | 名鉄三河線 知立駅 徒歩4分 名鉄三河線 三河知立駅 徒歩19分 |
| 所在地 |
愛知県知立市新富1丁目
|
| 物件種目 |
中古マンション |
| 価格 |
1,580万円 |
平米単価 |
23.93万円 |
| 管理費等 |
13,000円 |
修繕積立金 |
16,250円 |
| 借地期間・地代(月額) |
- |
権利金 |
- |
| 敷金または保証金 |
- / - |
維持費等 |
- |
| その他一時金 |
- |
|
|
| 間取り |
3LDK(和 6) |
専有面積 |
66.05m²(壁芯) |
| 階建 / 階 |
8階建 / 6階 |
バルコニー |
14.26m² |
| 築年月 |
1990年3月(築35年10ヶ月)
|
建物構造 |
SRC |
| 駐車場 |
- |
総戸数 |
- |
| 駐輪場 |
- |
バイク置き場 |
- |
| ペット |
-
|
|
|
| 土地権利 |
所有権 |
敷地面積 |
427.34m² |
| 管理形態/管理員の勤務形態 |
全部委託/巡回(日本管財住宅管理) |
国土法届出 |
- |
| アピールポイント |
◎名鉄「知立」駅まで歩いて4分♪ 毎日の通勤もお出かけもラクラクです。
お部屋は南向き角部屋で、二面バルコニーからの光と風がとっても気持ちいい3LDK(66.05㎡)◆
2016年に浴室・キッチン・洗面台・床・クロス・給湯器などをまるっとリフォーム。
そして2025年にはクロスや床の貼替、トイレ新品交換、水栓金具交換、照明&スイッチプレート交換、
浴槽やシンクの塗装、ふすまクロス貼り、キッチン扉&パネル、浴室パネル、カウンターにはかわいいリアテックシートも♪
明るくてキレイで、しかも駅チカ。スーパーやカフェも徒歩圏だから、休日のお散歩も楽しめます◆ |
| 建物名・部屋番号 |
|
| リフォーム履歴 |
■水回り:2025年8月 トイレ 2025年にキッチン水栓金具交換 2016年にまるっとシステムバス・システムキッチン・洗面台・給湯器を交換 ■内装:2025年8月 壁・天井(クロス・塗装等) 2025年に廊下、洗面所、トイレ、LDKの一部クロス及びクッションフロア張替え 2016年クロス全面貼替 ※実施年月は最も古い履歴を表示 |
| リノベーション履歴 |
- |
| 瑕疵保証 |
- |
| 瑕疵保険 |
- |
| 評価・証明書 |
- |
| 備考 |
主要採光面:南向き
施工会社:奥村組
用途地域:商業地域
|
| エネルギー消費性能 |
- |
| 断熱性能 |
- |
| 目安光熱費 |
- |
| バス・トイレ |
オートバス、追焚機能、シャワー付洗面化粧台 |
| キッチン |
システムキッチン、3口以上コンロ |
| 設備・サービス |
モニター付オートロック、全居室収納、エアコン2台以上、防犯カメラ、都市ガス、二面バルコニー、ダウンライト、照明器具 |
| その他 |
エレベーター |
| 条件等 |
- |
現況 |
空家 |
| 引渡可能時期 |
相談 |
物件番号 |
6987669804 |
| 情報公開日 |
2025年9月15日 |
次回更新予定日 |
2025年12月13日 |
| ケータイ用バーコード |
- スマートフォンでこの物件を見る
- スマートフォンからもこの物件をご覧になれます。
|
※「-」と表示されている項目については、情報提供会社にご確認ください。
| 周辺施設 |
ファミリーマート知立駅北店 |
| 距離 |
336m |
ここから簡単にお問い合わせをすることができます。
(SSLでの暗号化での送信を希望されるお客さまは
こちら
よりお問い合わせください)
お問い合わせを行う前に
「個人情報の取り扱いについて」を必ずお読みください。
「個人情報の取り扱いについて」に同意いただいた場合は「上記にご同意の上 確認画面へ進む」のボタンをクリックしてください。
個人情報の取り扱いについて
皆さまが送付された個人情報はアットホーム(株)のサーバを経由し、お問い合わせ先の不動産会社にメールまたはFAXにて転送されるためアットホーム(株)にも保管されます。アットホーム(株)で保管された個人情報の取り扱いについては、【こちら】をご覧ください。
また、本画面でご記入いただいた個人情報は、お問い合わせ先の不動産会社でも保管します。 お問い合わせ先の不動産会社が保管する個人情報の取り扱いについては、不動産会社に直接お問い合わせください。
愛知県知事免許(1)第24907号 |
|---|
- 交通:
- 東海道本線/安城駅 徒歩2分 【バス】 JR安城駅 停歩2分
- 愛知県安城市御幸本町6-6 奥井ビル一階
- TEL:
- 0566-70-9014
- FAX:
- 0566-70-9023
- 所属団体:
- (公社)全日本不動産協会会員東海不動産公正取引協議会加盟
取引態様:売主  - 40409579
|
- スマートフォンで
この不動産会社を見る

|
- 提携サイト等より掲載されている物件情報につきましては、不動産会社詳細情報にリンクされていないものがあります。
- 物件に関するお問合せは、物件詳細ページの「情報提供会社」に表示されている不動産会社へ直接お願いいたします。
- 間取図は、現況を優先させていただきます。
- 映像は物件の一部を撮影したものです。物件の契約にあたっての最終判断はご自身の判断に基づいて行ってください。
- 仲介手数料について

アットホームは物件情報の適正化に努めております。
内容に誤りがある場合にはこちらへご連絡ください。