神奈川県横浜市港北区仲手原1丁目(妙蓮寺駅)の中古マンション・新築マンション・分譲マンション:物件詳細
交通 所在地 |
駅徒歩 |
価格 |
構造 階建/階 |
間取り 専有面積 |
物件種目 築年月 |
|
東急東横線/妙蓮寺
神奈川県横浜市港北区仲手原1丁目
|
8分
|
2,990万円
|
RC
4階建 / 2階
|
2LDK
50.61m²
|
中古マンション
1981年2月(築44年11ヶ月)
|
|
南向き、閑静な住宅街、外観タイル張り、管理人巡回
|
|
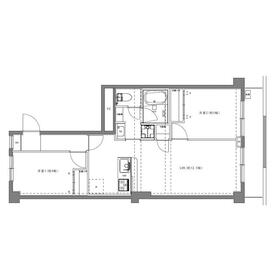
間取図
|
|
<
その他の画像
>
|
| 交通 | 東急東横線 妙蓮寺駅 徒歩8分 |
|---|
| その他の交通 | JR横浜線 大口駅 徒歩14分 東急東横線 白楽駅 徒歩15分 |
| 所在地 |
神奈川県横浜市港北区仲手原1丁目
|
| 物件種目 |
中古マンション |
| 価格 |
2,990万円 |
平米単価 |
59.08万円 |
| 管理費等 |
11,540円 |
修繕積立金 |
14,680円 |
| 借地期間・地代(月額) |
- |
権利金 |
- |
| 敷金または保証金 |
- / - |
維持費等 |
- |
| その他一時金 |
自治会費:250円 |
|
|
| 間取り |
2LDK |
専有面積 |
50.61m²(壁芯) |
| 階建 / 階 |
4階建 / 2階 |
バルコニー |
5.40m² |
| 築年月 |
1981年2月(築44年11ヶ月)
|
建物構造 |
RC |
| 駐車場 |
無 |
総戸数 |
21戸 |
| 駐輪場 |
有 無料 |
バイク置き場 |
有 無料 |
| ペット |
-
|
|
|
| 土地権利 |
所有権 |
敷地面積 |
- |
| 管理形態/管理員の勤務形態 |
全部委託/巡回(ナイスコミュニティー株式会社) |
国土法届出 |
- |
| アピールポイント |
閑静な住宅街の住戸、更に南向なので、陽が出ている時間が短い冬でも暖かさキープ。また広々とした延床面積50.61㎡の居室空間で、その上配膳がラクなカウンターキッチン仕様なので、カフェテイストを加えるアイディアも広がります。ちなみに夕食を作りながら翌日のお弁当も作れるコンロ3口以上付です。家族の安心拠点になる2LDK。是非その目でお確かめください。 |
| 建物名・部屋番号 |
シャンボール妙蓮寺 |
| リフォーム履歴 |
■水回り:2025年10月 キッチン、トイレ、洗面所、給湯器 ■内装:2025年10月 内装全面(床・壁・天井・建具) ※実施年月は最も古い履歴を表示 |
| リノベーション履歴 |
2025年10月 キッチン、トイレ、洗面台入れ替え ※実施年月は最も古い履歴を表示 |
| 瑕疵保証 |
- |
| 瑕疵保険 |
- |
| 評価・証明書 |
- |
| 備考 |
主要採光面:南向き
施工会社:株式会社池田忠工務店
用途地域:2種住居
リフォーム・リノベーション対応可物件
仲手原公園300m、菊名池公園プール800m、白幡小学校700m、神奈川中学校500m、
|
| エネルギー消費性能 |
- |
| 断熱性能 |
- |
| 目安光熱費 |
- |
| バス・トイレ |
浴室暖房、温水洗浄便座 |
| キッチン |
カウンターキッチン、システムキッチン、食器乾燥機、浄水器、3口以上コンロ |
| 設備・サービス |
全居室収納、バイク置き場、収納スペース、室内洗濯機置場、クローゼット、ディンプルキー、ダブルロックドア、給湯、全居室フローリング、都市ガス、駐輪場、ダウンライト |
| その他 |
- |
| 条件等 |
- |
現況 |
空家 |
| 引渡可能時期 |
2025年11月下旬予定 |
物件番号 |
6987673317 |
| 情報公開日 |
2025年9月15日 |
次回更新予定日 |
2025年12月20日 |
| ケータイ用バーコード |
- スマートフォンでこの物件を見る
- スマートフォンからもこの物件をご覧になれます。
|
※「-」と表示されている項目については、情報提供会社にご確認ください。
ここから簡単にお問い合わせをすることができます。
(SSLでの暗号化での送信を希望されるお客さまは
こちら
よりお問い合わせください)
お問い合わせを行う前に
「個人情報の取り扱いについて」を必ずお読みください。
「個人情報の取り扱いについて」に同意いただいた場合は「上記にご同意の上 確認画面へ進む」のボタンをクリックしてください。
個人情報の取り扱いについて
皆さまが送付された個人情報はアットホーム(株)のサーバを経由し、お問い合わせ先の不動産会社にメールまたはFAXにて転送されるためアットホーム(株)にも保管されます。アットホーム(株)で保管された個人情報の取り扱いについては、【こちら】をご覧ください。
また、本画面でご記入いただいた個人情報は、お問い合わせ先の不動産会社でも保管します。 お問い合わせ先の不動産会社が保管する個人情報の取り扱いについては、不動産会社に直接お問い合わせください。
(株)シティクリエイトコーポレーション東京都知事免許(5)第82132号 |
|---|
- 交通:
- JR京浜東北線/大森駅 徒歩8分
- 東京都大田区大森北2丁目4-11
- TEL:
- 03-6459-6177
- FAX:
- 042-788-3167
- 所属団体:
- (公社)全日本不動産協会会員(公社)首都圏不動産公正取引協議会加盟
取引態様:専任媒介 |
- 提携サイト等より掲載されている物件情報につきましては、不動産会社詳細情報にリンクされていないものがあります。
- 物件に関するお問合せは、物件詳細ページの「情報提供会社」に表示されている不動産会社へ直接お願いいたします。
- 間取図は、現況を優先させていただきます。
- 映像は物件の一部を撮影したものです。物件の契約にあたっての最終判断はご自身の判断に基づいて行ってください。
- 仲介手数料について

アットホームは物件情報の適正化に努めております。
内容に誤りがある場合にはこちらへご連絡ください。