福岡県北九州市小倉北区大手町(西小倉駅)の中古マンション・新築マンション・分譲マンション:物件詳細
交通 所在地 |
駅徒歩 |
価格 |
構造 階建/階 |
間取り 専有面積 |
物件種目 築年月 |
|
JR鹿児島本線/西小倉
福岡県北九州市小倉北区大手町
|
17分
|
1,480万円
|
SRC
12階建 / 3階
|
2LDK
64.74m²
|
中古マンション
1983年4月(築43年)
|
|
南向き、管理人日勤
|
|
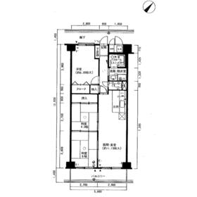
間取図
2SLDKの間取です♪広々LDKとたっぷりな収納が特徴の間取です!
|
外観
小倉北区大手町のマンション!交通アクセスが良く、ショッピング施設、公園、病院が揃っており生活環境がとてもいいエリアです。
|
<
その他の画像
>
|
| 交通 | JR鹿児島本線 西小倉駅 徒歩17分 |
| 所在地 |
福岡県北九州市小倉北区大手町
|
| 物件種目 |
中古マンション |
| 価格 |
1,480万円 |
平米単価 |
22.87万円 |
| 管理費等 |
4,040円 |
修繕積立金 |
11,962円 |
| 借地期間・地代(月額) |
- |
権利金 |
- |
| 敷金または保証金 |
- / - |
維持費等 |
- |
| その他一時金 |
- |
|
|
| 間取り |
2LDK |
専有面積 |
64.74m²(内法) |
| 階建 / 階 |
12階建 / 3階 |
バルコニー |
7.44m² |
| 築年月 |
1983年4月(築43年)
|
建物構造 |
SRC |
| 駐車場 |
- |
総戸数 |
- |
| 駐輪場 |
- |
バイク置き場 |
- |
| ペット |
-
|
|
|
| 土地権利 |
所有権 |
敷地面積 |
- |
| 管理形態/管理員の勤務形態 |
全部委託/日勤(野村不動産パートナーズ) |
国土法届出 |
- |
| アピールポイント |
小倉北区大手町のリフォーム済み物件です!広々リビングの2LDK♪スーパー、バス停、コンビニ、病院が徒歩5分圏内で生活環境がいい立地です! |
| 建物名・部屋番号 |
|
| リフォーム履歴 |
■水回り:2026年2月 キッチン、浴室、トイレ、洗面所 ■内装:2026年2月 全室クロス張替え、床(フローリング等) ※実施年月は最も古い履歴を表示 |
| リノベーション履歴 |
2026年2月 水廻り交換、壁クロス張替等 ※実施年月は最も古い履歴を表示 |
| 瑕疵保証 |
- |
| 瑕疵保険 |
- |
| 評価・証明書 |
- |
| 備考 |
主要採光面:南向き
用途地域:商業地域
|
| エネルギー消費性能 |
- |
| 断熱性能 |
- |
| 目安光熱費 |
- |
| バス・トイレ |
シャワー付洗面化粧台、温水洗浄便座 |
| キッチン |
システムキッチン、3口以上コンロ |
| 設備・サービス |
収納スペース、室内洗濯機置場、モニター付インターホン、洗濯機置場、給湯、都市ガス、照明器具 |
| その他 |
エレベーター2基以上、エレベーター |
| 条件等 |
- |
現況 |
空家 |
| 引渡可能時期 |
相談 |
物件番号 |
6987674962 |
| 仲介手数料 |
売買代金の3%+6万円 |
|
|
| 情報公開日 |
2025年9月16日 |
次回更新予定日 |
2026年4月3日 |
| ケータイ用バーコード |
- スマートフォンでこの物件を見る
- スマートフォンからもこの物件をご覧になれます。
|
※「-」と表示されている項目については、情報提供会社にご確認ください。
| 周辺施設 |
ハローデイハローパーク大手町店 |
| 距離 |
133m |
| 周辺施設 |
ファミリーマート健和会大手町病院店 |
| 距離 |
208m |
ここから簡単にお問い合わせをすることができます。
(SSLでの暗号化での送信を希望されるお客さまは
こちら
よりお問い合わせください)
お問い合わせを行う前に
「個人情報の取り扱いについて」を必ずお読みください。
「個人情報の取り扱いについて」に同意いただいた場合は「上記にご同意の上 確認画面へ進む」のボタンをクリックしてください。
個人情報の取り扱いについて
皆さまが送付された個人情報はアットホーム(株)のサーバを経由し、お問い合わせ先の不動産会社にメールまたはFAXにて転送されるためアットホーム(株)にも保管されます。アットホーム(株)で保管された個人情報の取り扱いについては、【こちら】をご覧ください。
また、本画面でご記入いただいた個人情報は、お問い合わせ先の不動産会社でも保管します。 お問い合わせ先の不動産会社が保管する個人情報の取り扱いについては、不動産会社に直接お問い合わせください。
福岡県知事免許(16)第803号 |
|---|
- 交通:
- 【西鉄バス】 金田 停歩2分
- 福岡県北九州市小倉北区金田1丁目3-31 サンシティ金田
- TEL:
- 093-571-8777
- FAX:
- 093-571-1699
- 所属団体:
- (公社)福岡県宅地建物取引業協会会員(一社)九州不動産公正取引協議会加盟
取引態様:専任媒介  - 80900640
|
- スマートフォンで
この不動産会社を見る

|
- 提携サイト等より掲載されている物件情報につきましては、不動産会社詳細情報にリンクされていないものがあります。
- 物件に関するお問合せは、物件詳細ページの「情報提供会社」に表示されている不動産会社へ直接お願いいたします。
- 間取図は、現況を優先させていただきます。
- 映像は物件の一部を撮影したものです。物件の契約にあたっての最終判断はご自身の判断に基づいて行ってください。
- 仲介手数料について

アットホームは物件情報の適正化に努めております。
内容に誤りがある場合にはこちらへご連絡ください。