東京都荒川区東日暮里4丁目(鶯谷駅)の中古マンション・新築マンション・分譲マンション:物件詳細
交通 所在地 |
駅徒歩 |
価格 |
構造 階建/階 |
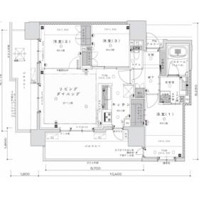
間取り 専有面積 |
物件種目 築年月 |
JR山手線/鶯谷
東京都荒川区東日暮里4丁目
|
11分
|
7,980万円
|
RC
13階建 / 9階
|
3LDK
66.19m²
|
中古マンション
2010年11月(築15年)
|
角部屋、2面採光、閑静な住宅街、管理人巡回
|
交通 | JR山手線 鶯谷駅 徒歩11分 |
---|
その他の交通 | 東京メトロ日比谷線 三ノ輪駅 徒歩10分 JR山手線 日暮里駅 徒歩15分 |
所在地 |
東京都荒川区東日暮里4丁目
|
物件種目 |
中古マンション |
価格 |
7,980万円 |
平米単価 |
120.57万円 |
管理費等 |
23,480円 |
修繕積立金 |
23,500円 |
借地期間・地代(月額) |
- |
権利金 |
- |
敷金または保証金 |
- / - |
維持費等 |
- |
その他一時金 |
- |
|
|
間取り |
3LDK |
専有面積 |
66.19m²(壁芯) |
階建 / 階 |
13階建 / 9階 |
バルコニー |
22.82m² |
築年月 |
2010年11月(築15年)
|
建物構造 |
RC |
駐車場 |
- |
総戸数 |
44戸 |
駐輪場 |
- |
バイク置き場 |
- |
ペット |
-
|
|
|
土地権利 |
所有権 |
敷地面積 |
- |
管理形態/管理員の勤務形態 |
全部委託/巡回(株式会社 大京アステージ) |
国土法届出 |
- |
アピールポイント |
◆陽当たり良好!南東向きのお部屋です!
◆JR、山手線、日比谷線など5路線利用可能
◆日暮里公園まで徒歩4分
◆日暮里上宮病院まで徒歩4分
◆第三日暮里小学 (160m)
◆諏訪台中学校 (1,440m) |
建物名・部屋番号 |
ライオンズ鶯谷マークスフォート |
リフォーム履歴 |
- |
リノベーション履歴 |
- |
瑕疵保証 |
- |
瑕疵保険 |
- |
評価・証明書 |
- |
備考 |
-
|
エネルギー消費性能 |
- |
断熱性能 |
- |
目安光熱費 |
- |
バス・トイレ |
浴室暖房、浴室乾燥機、オートバス、追焚機能 |
キッチン |
カウンターキッチン、システムキッチン |
設備・サービス |
全居室収納、ウォークインクローゼット、収納スペース、室内洗濯機置場、オートロック、モニター付インターホン、防犯カメラ、全居室フローリング、都市ガス、二面バルコニー |
その他 |
エレベーター |
条件等 |
- |
現況 |
所有者居住中 |
引渡可能時期 |
相談 |
物件番号 |
6987702199 |
仲介手数料 |
売買代金の3%+6万円 |
|
|
情報公開日 |
2025年9月18日 |
次回更新予定日 |
2025年10月28日 |
ケータイ用バーコード |
- スマートフォンでこの物件を見る
- スマートフォンからもこの物件をご覧になれます。
|
※「-」と表示されている項目については、情報提供会社にご確認ください。
ここから簡単にお問い合わせをすることができます。
(SSLでの暗号化での送信を希望されるお客さまは
こちら
よりお問い合わせください)
お問い合わせを行う前に
「個人情報の取り扱いについて」を必ずお読みください。
「個人情報の取り扱いについて」に同意いただいた場合は「上記にご同意の上 確認画面へ進む」のボタンをクリックしてください。
個人情報の取り扱いについて
皆さまが送付された個人情報はアットホーム(株)のサーバを経由し、お問い合わせ先の不動産会社にメールまたはFAXにて転送されるためアットホーム(株)にも保管されます。アットホーム(株)で保管された個人情報の取り扱いについては、【こちら】をご覧ください。
また、本画面でご記入いただいた個人情報は、お問い合わせ先の不動産会社でも保管します。 お問い合わせ先の不動産会社が保管する個人情報の取り扱いについては、不動産会社に直接お問い合わせください。
東京都知事免許(1)第111282号 |
---|
- 交通:
- 東京メトロ丸ノ内線/西新宿駅 徒歩1分
- 東京都新宿区西新宿8丁目11-10 星野ビル
- TEL:
- 050-6883-9125
- 所属団体:
- (一社)全国不動産協会会員(公社)全日本不動産協会会員(公社)首都圏不動産公正取引協議会加盟
取引態様:一般媒介  - 00278672
|
- スマートフォンで
この不動産会社を見る

|
- 提携サイト等より掲載されている物件情報につきましては、不動産会社詳細情報にリンクされていないものがあります。
- 物件に関するお問合せは、物件詳細ページの「情報提供会社」に表示されている不動産会社へ直接お願いいたします。
- 間取図は、現況を優先させていただきます。
- 映像は物件の一部を撮影したものです。物件の契約にあたっての最終判断はご自身の判断に基づいて行ってください。
- 仲介手数料について

アットホームは物件情報の適正化に努めております。
内容に誤りがある場合にはこちらへご連絡ください。